|
|
|
| Larry Stein Oklahoma County Assessor (405) 713-1200 - Public Access System |
|
|
|
|
|
|
| Real Property Display - Screen Produced 4/12/2026 12:52:20 PM | ||||
|---|---|---|---|---|
| Account: R063741530 | Type: Residential | Location: |
2351 NW 21ST ST |
|
| Building Name/Occupant: |
|
OKLAHOMA CITY |
||
| Owner Name 1: | HERNANDEZ LIZA J |
Parcel PIN#: |
2717-06-374-1530 |
|
| Owner Name 2: | 1/4 section #: |
2717 |
||
| Owner Name 3: | Parent Acct: |
|
||
| Billing Address: | 2351 NW 21ST ST | Tax District: |
|
|
| City, State, Zip | OKLAHOMA CITY, OK 73107-3338 | School System: |
Oklahoma City #89 |
|
|
Country: (If noted) |
Land Size: |
0.1791 Acres |
||
|
Land Value: 33,930 |
|
|||
|
Sect 30-T12N-R3W Qtr NE |
AURORA ADDITION
Block
005
Lot
000
|
|||
| Full Legal Description: AURORA ADDITION 005 000 W52FT OF S 1/2 |
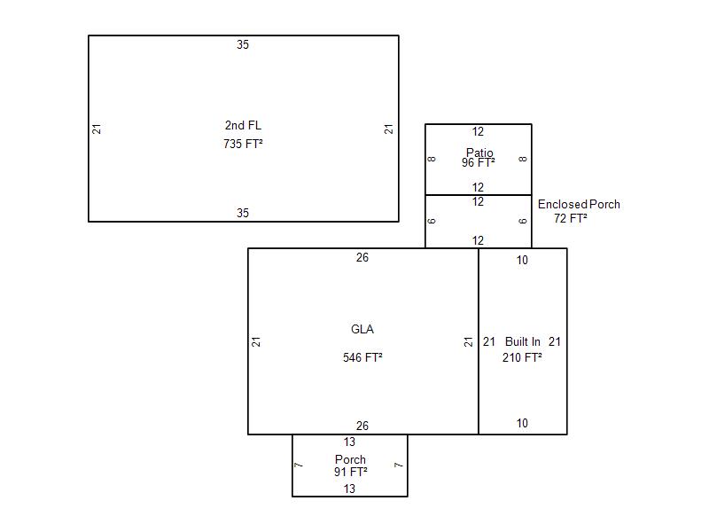
| Photo & Sketch (if available) | Comp Sales (ordered by relevancy) |
|
||||||||||||||||||
|
||||||||||||||||||||
| Value History (*The County Treasurer 405-713-1300 posts & collects actual tax amounts. Contact information HERE) | |||||||||||||
|---|---|---|---|---|---|---|---|---|---|---|---|---|---|
| Year | Market Value | Taxable Mkt Value | Gross Assessed | Exemption | Net Assessed | Millage | Est. Tax | Tax Savings | |||||
|
2026 |
169,500 |
99,179 |
10,909 |
1,000 |
9,909 |
122.90 |
$1,218 |
$1,074 |
|||||
|
2025 |
165,000 |
96,291 |
10,591 |
1,000 |
9,591 |
122.90 |
$1,179 |
$1,052 |
|||||
|
2024 |
161,500 |
93,487 |
10,283 |
1,000 |
9,283 |
123.89 |
$1,150 |
$1,051 |
|||||
|
2023 |
158,000 |
90,765 |
9,983 |
1,000 |
8,983 |
122.82 |
$1,103 |
$1,031 |
|||||
|
2022 |
122,000 |
88,122 |
9,693 |
1,000 |
8,693 |
117.63 |
$1,023 |
$556 |
|||||
| Property Account Status/Adjustments/Exemptions | ||
|---|---|---|
| Account # | Exemption Description | Amount |
|
R063741530 |
3% Cap Homestead |
0 |
|
R063741530 |
Homestead |
1,000 |
| Property Deed Transaction History (Recorded in the County Clerk's Office) | ||||||||||
|---|---|---|---|---|---|---|---|---|---|---|
| Date | Type | Book | Page | Price | Grantor | Grantee | ||||
|
2/8/1991 |
|
Historical |
$22,501 |
SECRETARY OF HOUSING |
HERNANDEZ LIZA J |
|||||
|
10/25/1990 |
|
Historical |
$0 |
GAYE CHARLES HENRI |
SECRETARY OF HOUSING |
|||||
|
3/23/1989 |
|
Historical |
$0 |
ELLIS DAVID PAUL |
GAYE CHARLES HENRI |
|||||
|
1/1/1987 |
|
Historical |
$0 |
ELLIS WILLIAM B & NADINE |
ELLIS DAVID PAUL |
|||||
|
11/1/1986 |
|
Historical |
$49,000 |
ELLIS DAVID PAUL |
ELLIS WILLIAM B & NADINE |
|||||
| Last Mailed Notice of Value (N.O.V.) Information/History | ||||||||
|---|---|---|---|---|---|---|---|---|
| Year | Date | Market Value | Taxable Market Value | Gross Assessed | Exemption | Net Assessed | ||
|
2026 |
02/23/2026 |
169,500 |
99,179 |
10,909 |
1,000 |
9,909 |
||
|
2025 |
02/14/2025 |
165,000 |
96,291 |
10,591 |
1,000 |
9,591 |
||
|
2024 |
02/13/2024 |
161,500 |
93,487 |
10,283 |
1,000 |
9,283 |
||
|
2023 |
02/14/2023 |
158,000 |
90,765 |
9,983 |
1,000 |
8,983 |
||
|
2022 |
03/15/2022 |
122,000 |
88,122 |
9,693 |
1,000 |
8,693 |
||
| Property Building Permit History | |||||||||||
|---|---|---|---|---|---|---|---|---|---|---|---|
| Issued | Permit # | Provided by | Bldg # | Description | Est Construction Cost | Status | |||||
| No Building Permit records returned. | |||||||||||
| Click button on building number to access detailed information: | ||||||
|---|---|---|---|---|---|---|
| Bldg # | Vacant/Improved Land | Bldg Description | Year Built | SqFt | # Stories | |
|
1 |
Improved |
2 Story |
1939 |
1,281 |
2 Stories |
|