|
|
|
| Larry Stein Oklahoma County Assessor (405) 713-1200 - Public Access System |
|
|
|
|
|
|
| Real Property Display - Screen Produced 4/12/2026 12:47:24 PM | ||||
|---|---|---|---|---|
| Account: R063741920 | Type: Residential | Location: |
2314 NW 22ND ST |
|
| Building Name/Occupant: |
|
OKLAHOMA CITY |
||
| Owner Name 1: | LUECKE EMMA |
Parcel PIN#: |
2717-06-374-1920 |
|
| Owner Name 2: | 1/4 section #: |
2717 |
||
| Owner Name 3: | Parent Acct: |
|
||
| Billing Address: | 2314 NW 22ND ST | Tax District: |
|
|
| City, State, Zip | OKLAHOMA CITY, OK 73107 | School System: |
Oklahoma City #89 |
|
|
Country: (If noted) |
Land Size: |
0.1722 Acres |
||
|
Land Value: 32,625 |
|
|||
|
Sect 30-T12N-R3W Qtr NE |
AURORA ADDITION
Block
000
Lot
000
|
|||
| Full Legal Description: AURORA ADDITION 000 000 LOTS 8 & 9 OF N 1/2 BLK 6 |
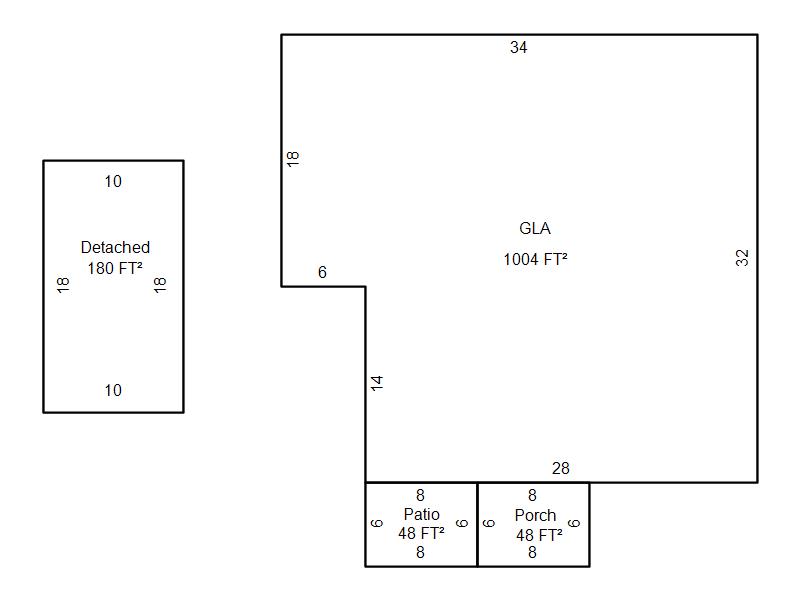
| Photo & Sketch (if available) | Comp Sales (ordered by relevancy) |
|
||||||||||||||||||
|
||||||||||||||||||||
| Value History (*The County Treasurer 405-713-1300 posts & collects actual tax amounts. Contact information HERE) | |||||||||||||
|---|---|---|---|---|---|---|---|---|---|---|---|---|---|
| Year | Market Value | Taxable Mkt Value | Gross Assessed | Exemption | Net Assessed | Millage | Est. Tax | Tax Savings | |||||
|
2026 |
156,000 |
124,776 |
13,724 |
1,000 |
12,724 |
122.90 |
$1,564 |
$545 |
|||||
|
2025 |
157,500 |
121,142 |
13,325 |
1,000 |
12,325 |
122.90 |
$1,515 |
$614 |
|||||
|
2024 |
151,500 |
117,614 |
12,936 |
1,000 |
11,936 |
123.89 |
$1,479 |
$586 |
|||||
|
2023 |
148,000 |
114,189 |
12,560 |
1,000 |
11,560 |
122.82 |
$1,420 |
$580 |
|||||
|
2022 |
118,000 |
110,864 |
12,194 |
1,000 |
11,194 |
117.63 |
$1,317 |
$210 |
|||||
| Property Account Status/Adjustments/Exemptions | ||
|---|---|---|
| Account # | Exemption Description | Amount |
|
R063741920 |
3% Cap Homestead |
0 |
|
R063741920 |
Homestead |
1,000 |
| Property Deed Transaction History (Recorded in the County Clerk's Office) | ||||||||||
|---|---|---|---|---|---|---|---|---|---|---|
| Date | Type | Book | Page | Price | Grantor | Grantee | ||||
|
6/7/2018 |
|
Deeds |
$110,000 |
ADARE LLC |
LUECKE EMMA |
|||||
|
10/31/2014 |
|
Hmstd Off & |
$0 |
STORM VAN A & JULIE |
ADARE LLC |
|||||
|
9/29/2014 |
|
Deeds |
$77,000 |
HEARN SARAH M & BRIAN |
STORM VAN A & JULIE |
|||||
|
8/15/2008 |
|
Deeds |
$0 |
WILLIAMS SARAH M |
HEARN SARAH M & BRIAN |
|||||
|
5/23/2005 |
|
Deeds |
$63,000 |
URBAN ROSE LLC |
WILLIAMS SARAH M |
|||||
| Last Mailed Notice of Value (N.O.V.) Information/History | ||||||||
|---|---|---|---|---|---|---|---|---|
| Year | Date | Market Value | Taxable Market Value | Gross Assessed | Exemption | Net Assessed | ||
|
2026 |
02/23/2026 |
156,000 |
124,776 |
13,724 |
1,000 |
12,724 |
||
|
2025 |
02/14/2025 |
157,500 |
121,142 |
13,325 |
1,000 |
12,325 |
||
|
2024 |
02/13/2024 |
151,500 |
117,614 |
12,936 |
1,000 |
11,936 |
||
|
2023 |
02/14/2023 |
148,000 |
114,189 |
12,560 |
1,000 |
11,560 |
||
|
2022 |
03/15/2022 |
118,000 |
110,864 |
12,194 |
1,000 |
11,194 |
||
| Property Building Permit History | |||||||||||
|---|---|---|---|---|---|---|---|---|---|---|---|
| Issued | Permit # | Provided by | Bldg # | Description | Est Construction Cost | Status | |||||
| No Building Permit records returned. | |||||||||||
| Click button on building number to access detailed information: | ||||||
|---|---|---|---|---|---|---|
| Bldg # | Vacant/Improved Land | Bldg Description | Year Built | SqFt | # Stories | |
|
1 |
Improved |
Ranch 1 Story |
1927 |
1,004 |
1 Stories |
|