|
|
|
| Larry Stein Oklahoma County Assessor (405) 713-1200 - Public Access System |
|
|
|
|
|
|
| Real Property Display - Screen Produced 4/12/2026 12:50:59 PM | ||||
|---|---|---|---|---|
| Account: R063742280 | Type: Residential | Location: |
2109 N YOUNGS BLVD |
|
| Building Name/Occupant: |
|
OKLAHOMA CITY |
||
| Owner Name 1: | OHAGAN DOYLE O & JENNIFER J |
Parcel PIN#: |
2717-06-374-2280 |
|
| Owner Name 2: | 1/4 section #: |
2717 |
||
| Owner Name 3: | Parent Acct: |
|
||
| Billing Address: | 10901 OLD RIVER TRL | Tax District: |
|
|
| City, State, Zip | EDMOND, OK 73013-8382 | School System: |
Oklahoma City #89 |
|
|
Country: (If noted) |
Land Size: |
0.1825 Acres |
||
|
Land Value: 34,583 |
|
|||
|
Sect 30-T12N-R3W Qtr NE |
AURORA ADDITION
Block
007
Lot
000
|
|||
| Full Legal Description: AURORA ADDITION 007 000 N75FT OF E106FT OF S 1/2 |
| Photo & Sketch (if available) | Comp Sales (ordered by relevancy) |
|
||||||||||||||||||
|
||||||||||||||||||||
| Value History (*The County Treasurer 405-713-1300 posts & collects actual tax amounts. Contact information HERE) | |||||||||||||
|---|---|---|---|---|---|---|---|---|---|---|---|---|---|
| Year | Market Value | Taxable Mkt Value | Gross Assessed | Exemption | Net Assessed | Millage | Est. Tax | Tax Savings | |||||
|
2026 |
173,500 |
96,178 |
10,578 |
0 |
10,578 |
122.90 |
$1,300 |
$1,045 |
|||||
|
2025 |
173,000 |
91,599 |
10,075 |
0 |
10,075 |
122.90 |
$1,238 |
$1,100 |
|||||
|
2024 |
167,000 |
87,238 |
9,595 |
0 |
9,595 |
123.89 |
$1,189 |
$1,087 |
|||||
|
2023 |
158,500 |
83,084 |
9,139 |
0 |
9,139 |
122.82 |
$1,122 |
$1,019 |
|||||
|
2022 |
124,500 |
79,128 |
8,702 |
0 |
8,702 |
117.63 |
$1,024 |
$587 |
|||||
| Property Account Status/Adjustments/Exemptions | ||
|---|---|---|
| Account # | Exemption Description | Amount |
|
R063742280 |
5% Capped Account |
0 |
| Property Deed Transaction History (Recorded in the County Clerk's Office) | |||||||
|---|---|---|---|---|---|---|---|
| Date | Type | Book | Page | Price | Grantor | Grantee | |
|
11/30/2012 |
|
Deeds |
$52,000 |
HUMPHREY STEVEN RAY |
OHAGAN DOYLE O & JENNIFER J |
||
|
3/1/1986 |
|
Historical |
$0 |
|
HUMPHREY STEVEN RAY |
||
| Last Mailed Notice of Value (N.O.V.) Information/History | ||||||||
|---|---|---|---|---|---|---|---|---|
| Year | Date | Market Value | Taxable Market Value | Gross Assessed | Exemption | Net Assessed | ||
|
2026 |
02/23/2026 |
173,500 |
96,178 |
10,578 |
0 |
10,578 |
||
|
2025 |
02/14/2025 |
173,000 |
91,599 |
10,075 |
0 |
10,075 |
||
|
2024 |
02/13/2024 |
167,000 |
87,238 |
9,595 |
0 |
9,595 |
||
|
2023 |
02/14/2023 |
158,500 |
83,084 |
9,139 |
0 |
9,139 |
||
|
2022 |
03/15/2022 |
124,500 |
79,128 |
8,702 |
0 |
8,702 |
||
| Property Building Permit History | |||||||||||
|---|---|---|---|---|---|---|---|---|---|---|---|
| Issued | Permit # | Provided by | Bldg # | Description | Est Construction Cost | Status | |||||
| No Building Permit records returned. | |||||||||||
| Click button on building number to access detailed information: | ||||||
|---|---|---|---|---|---|---|
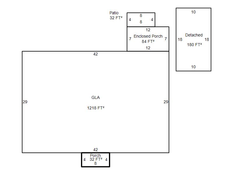
| Bldg # | Vacant/Improved Land | Bldg Description | Year Built | SqFt | # Stories | |
|
1 |
Improved |
Ranch 1 Story |
1937 |
1,218 |
1 Stories |
|