|
|
|
| Larry Stein Oklahoma County Assessor (405) 713-1200 - Public Access System |
|
|
|
|
|
|
| Real Property Display - Screen Produced 4/12/2026 12:49:15 PM | ||||
|---|---|---|---|---|
| Account: R063742640 | Type: Residential | Location: |
2346 NW 21ST ST |
|
| Building Name/Occupant: |
|
OKLAHOMA CITY |
||
| Owner Name 1: | KENNAMER JEFFREY |
Parcel PIN#: |
2717-06-374-2640 |
|
| Owner Name 2: | SCOFIELD AMANDA | 1/4 section #: |
2717 |
|
| Owner Name 3: | Parent Acct: |
|
||
| Billing Address: | 2346 NW 21ST ST | Tax District: |
|
|
| City, State, Zip | OKLAHOMA CITY, OK 73107-3337 | School System: |
Oklahoma City #89 |
|
|
Country: (If noted) |
Land Size: |
0.1492 Acres |
||
|
Land Value: 28,275 |
|
|||
|
Sect 30-T12N-R3W Qtr NE |
AURORA ADDITION
Block
008
Lot
000
|
|||
| Full Legal Description: AURORA ADDITION 008 000 E65FT OF N100FT OF NW4 |
| Photo & Sketch (if available) | Comp Sales (ordered by relevancy) |
|
||||||||||||||||||
|
||||||||||||||||||||
| Value History (*The County Treasurer 405-713-1300 posts & collects actual tax amounts. Contact information HERE) | |||||||||||||
|---|---|---|---|---|---|---|---|---|---|---|---|---|---|
| Year | Market Value | Taxable Mkt Value | Gross Assessed | Exemption | Net Assessed | Millage | Est. Tax | Tax Savings | |||||
|
2026 |
166,000 |
136,185 |
14,980 |
1,000 |
13,980 |
122.90 |
$1,718 |
$526 |
|||||
|
2025 |
168,000 |
132,219 |
14,543 |
1,000 |
13,543 |
122.90 |
$1,665 |
$607 |
|||||
|
2024 |
161,500 |
128,368 |
14,120 |
1,000 |
13,120 |
123.89 |
$1,625 |
$575 |
|||||
|
2023 |
154,000 |
124,630 |
13,709 |
1,000 |
12,709 |
122.82 |
$1,561 |
$520 |
|||||
|
2022 |
121,000 |
121,000 |
13,310 |
1,000 |
12,310 |
117.63 |
$1,448 |
$118 |
|||||
| Property Account Status/Adjustments/Exemptions | ||
|---|---|---|
| Account # | Exemption Description | Amount |
|
R063742640 |
3% Cap Homestead |
0 |
|
R063742640 |
Homestead |
1,000 |
| Property Deed Transaction History (Recorded in the County Clerk's Office) | |||||||
|---|---|---|---|---|---|---|---|
| Date | Type | Book | Page | Price | Grantor | Grantee | |
|
9/21/2020 |
|
Deeds |
$148,000 |
HORN ELIZABETH G |
KENNAMER JEFFREY |
||
|
8/7/2014 |
|
Deeds |
$81,000 |
LYON JO ANN |
HORN ELIZABETH G |
||
|
8/27/2009 |
|
Deeds |
$67,000 |
GROSS MARY FRANCES TRS GROSS MARY F LIVING TRUST |
LYON JO ANN |
||
|
3/24/1994 |
|
Historical |
$0 |
GROSS MARY FRANCES |
GROSS MARY FRANCES TRS |
||
|
12/1/1978 |
|
Historical |
$0 |
|
GROSS MARY FRANCES |
||
| Last Mailed Notice of Value (N.O.V.) Information/History | ||||||||
|---|---|---|---|---|---|---|---|---|
| Year | Date | Market Value | Taxable Market Value | Gross Assessed | Exemption | Net Assessed | ||
|
2026 |
02/23/2026 |
166,000 |
136,185 |
14,980 |
1,000 |
13,980 |
||
|
2025 |
02/14/2025 |
168,000 |
132,219 |
14,543 |
1,000 |
13,543 |
||
|
2024 |
02/13/2024 |
161,500 |
128,368 |
14,120 |
1,000 |
13,120 |
||
|
2023 |
02/14/2023 |
154,000 |
124,630 |
13,709 |
1,000 |
12,709 |
||
|
2021 |
03/19/2021 |
146,500 |
146,500 |
16,115 |
1,000 |
15,115 |
||
| Property Building Permit History | |||||||||||
|---|---|---|---|---|---|---|---|---|---|---|---|
| Issued | Permit # | Provided by | Bldg # | Description | Est Construction Cost | Status | |||||
| No Building Permit records returned. | |||||||||||
| Click button on building number to access detailed information: | ||||||
|---|---|---|---|---|---|---|
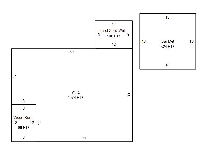
| Bldg # | Vacant/Improved Land | Bldg Description | Year Built | SqFt | # Stories | |
|
1 |
Improved |
Ranch 1 Story |
1927 |
1,074 |
1 Stories |
|