|
|
|
| Larry Stein Oklahoma County Assessor (405) 713-1200 - Public Access System |
|
|
|
|
|
|
| Real Property Display - Screen Produced 4/12/2026 12:44:45 PM | ||||
|---|---|---|---|---|
| Account: R063742760 | Type: Residential | Location: |
2343 NW 20TH ST |
|
| Building Name/Occupant: |
|
OKLAHOMA CITY |
||
| Owner Name 1: | BRAINARD RACHEL MICHELE |
Parcel PIN#: |
2717-06-374-2760 |
|
| Owner Name 2: | 1/4 section #: |
2717 |
||
| Owner Name 3: | Parent Acct: |
|
||
| Billing Address: | 2343 NW 20TH ST | Tax District: |
|
|
| City, State, Zip | OKLAHOMA CITY, OK 73107 | School System: |
Oklahoma City #89 |
|
|
Country: (If noted) |
Land Size: |
0.1309 Acres |
||
|
Land Value: 24,795 |
|
|||
|
Sect 30-T12N-R3W Qtr NE |
AURORA ADDITION
Block
008
Lot
000
|
|||
| Full Legal Description: AURORA ADDITION 008 000 W38FT OF S 1/2 OF E 1/2 |
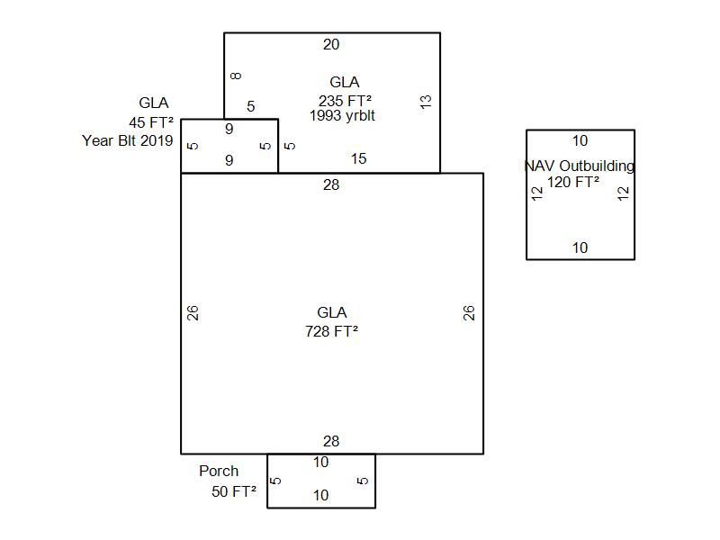
| Photo & Sketch (if available) | Comp Sales (ordered by relevancy) |
|
||||||||||||||||||
|
||||||||||||||||||||
| Value History (*The County Treasurer 405-713-1300 posts & collects actual tax amounts. Contact information HERE) | |||||||||||||
|---|---|---|---|---|---|---|---|---|---|---|---|---|---|
| Year | Market Value | Taxable Mkt Value | Gross Assessed | Exemption | Net Assessed | Millage | Est. Tax | Tax Savings | |||||
|
2026 |
218,500 |
218,500 |
24,035 |
0 |
24,035 |
122.90 |
$2,954 |
$0 |
|||||
|
2025 |
221,500 |
219,948 |
24,194 |
0 |
24,194 |
122.90 |
$2,973 |
$21 |
|||||
|
2024 |
219,000 |
209,475 |
23,042 |
0 |
23,042 |
123.89 |
$2,855 |
$130 |
|||||
|
2023 |
231,500 |
199,500 |
21,945 |
0 |
21,945 |
122.82 |
$2,695 |
$432 |
|||||
|
2022 |
190,000 |
190,000 |
20,900 |
0 |
20,900 |
117.63 |
$2,458 |
$0 |
|||||
| Property Account Status/Adjustments/Exemptions | ||
|---|---|---|
| Account # | Exemption Description | Amount |
|
R063742760 |
5% Capped Account |
0 |
| Property Deed Transaction History (Recorded in the County Clerk's Office) | ||||||||||
|---|---|---|---|---|---|---|---|---|---|---|
| Date | Type | Book | Page | Price | Grantor | Grantee | ||||
|
10/28/2021 |
|
Deeds |
$188,000 |
MCAFEE MATTHEW S & MARGARET E |
BRAINARD RACHEL MICHELE |
|||||
|
11/8/2019 |
|
Deeds |
$162,000 |
POKESHOOPS HOMES LLC |
MCAFEE MATTHEW S & MARGARET E |
|||||
|
4/16/2019 |
|
Deeds |
$50,000 |
KENDALL PERRY D JR |
S & L SOLUTIONS LLC |
|||||
|
4/16/2019 |
|
Deeds |
$63,000 |
S & L SOLUTIONS LLC |
POKESHOOPS HOMES LLC |
|||||
|
10/4/2007 |
|
Deeds |
$0 |
KENDALL JACKIE S |
KENDALL PERRY D |
|||||
| Last Mailed Notice of Value (N.O.V.) Information/History | ||||||||
|---|---|---|---|---|---|---|---|---|
| Year | Date | Market Value | Taxable Market Value | Gross Assessed | Exemption | Net Assessed | ||
|
2025 |
02/14/2025 |
221,500 |
219,948 |
24,194 |
0 |
24,194 |
||
|
2024 |
02/13/2024 |
219,000 |
209,475 |
23,042 |
0 |
23,042 |
||
|
2023 |
02/14/2023 |
231,500 |
199,500 |
21,945 |
0 |
21,945 |
||
|
2022 |
03/15/2022 |
190,000 |
190,000 |
20,900 |
0 |
20,900 |
||
|
2021 |
03/19/2021 |
175,000 |
157,075 |
17,278 |
1,000 |
16,278 |
||
| Property Building Permit History | ||||||
|---|---|---|---|---|---|---|
| Issued | Permit # | Provided by | Bldg # | Description | Est Construction Cost | Status |
|
8/7/2019 |
|
|
1 |
Remodeled |
42,000 |
Inactive |
|
11/9/1992 |
10193934 |
OKLAHOMA CITY |
1 |
Add On |
8,000 |
Inactive |
| Click button on building number to access detailed information: | ||||||
|---|---|---|---|---|---|---|
| Bldg # | Vacant/Improved Land | Bldg Description | Year Built | SqFt | # Stories | |
|
1 |
Improved |
Ranch 1 Story |
1921 |
1,008 |
1 Stories |
|