|
|
|
| Larry Stein Oklahoma County Assessor (405) 713-1200 - Public Access System |
|
|
|
|
|
|
| Real Property Display - Screen Produced 4/14/2026 4:53:16 AM | ||||
|---|---|---|---|---|
| Account: R064062050 | Type: Residential | Location: |
2200 NW 21ST ST |
|
| Building Name/Occupant: |
|
OKLAHOMA CITY |
||
| Owner Name 1: | WARD ROBERT |
Parcel PIN#: |
2717-06-406-2050 |
|
| Owner Name 2: | 1/4 section #: |
2717 |
||
| Owner Name 3: | Parent Acct: |
|
||
| Billing Address: | 2200 NW 21ST ST | Tax District: |
|
|
| City, State, Zip | OKLAHOMA CITY, OK 73107-3516 | School System: |
Oklahoma City #89 |
|
|
Country: (If noted) |
Land Size: |
0.2583 Acres |
||
|
Land Value: 48,938 |
|
|||
|
Sect 30-T12N-R3W Qtr NE |
LAS VEGAS ADDITION
Block
008
Lot
001
|
|||
| Full Legal Description: LAS VEGAS ADDITION 008 001 |
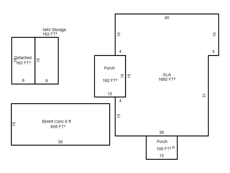
| Photo & Sketch (if available) | Comp Sales (ordered by relevancy) |
|
||||||||||||||||||
|
||||||||||||||||||||
| Value History (*The County Treasurer 405-713-1300 posts & collects actual tax amounts. Contact information HERE) | |||||||||||||
|---|---|---|---|---|---|---|---|---|---|---|---|---|---|
| Year | Market Value | Taxable Mkt Value | Gross Assessed | Exemption | Net Assessed | Millage | Est. Tax | Tax Savings | |||||
|
2026 |
245,500 |
237,022 |
26,071 |
0 |
26,071 |
122.90 |
$3,204 |
$115 |
|||||
|
2025 |
252,000 |
225,736 |
24,830 |
0 |
24,830 |
122.90 |
$3,052 |
$355 |
|||||
|
2024 |
247,500 |
214,987 |
23,648 |
0 |
23,648 |
123.89 |
$2,930 |
$443 |
|||||
|
2023 |
241,500 |
204,750 |
22,522 |
0 |
22,522 |
122.82 |
$2,766 |
$496 |
|||||
|
2022 |
195,000 |
195,000 |
21,450 |
0 |
21,450 |
117.63 |
$2,523 |
$0 |
|||||
| Property Account Status/Adjustments/Exemptions | ||
|---|---|---|
| Account # | Exemption Description | Amount |
|
R064062050 |
5% Capped Account |
0 |
| Property Deed Transaction History (Recorded in the County Clerk's Office) | ||||||||||
|---|---|---|---|---|---|---|---|---|---|---|
| Date | Type | Book | Page | Price | Grantor | Grantee | ||||
|
12/13/2018 |
|
Deeds |
$235,000 |
CLAY JANELLE MARIE |
WARD ROBERT |
|||||
|
4/28/2017 |
|
Deeds |
$206,000 |
HENDERSON SCOTT |
CLAY JANELLE MARIE |
|||||
|
3/17/2014 |
|
Deeds |
$80,000 |
SECRETARY OF HOUSING & URBAN DEV |
HENDERSON SCOTT |
|||||
|
5/28/2013 |
|
Hmstd Off & |
$0 |
STALLWORTH DARLISE |
SECRETARY OF HOUSING & URBAN DEV |
|||||
|
10/17/2003 |
|
Deeds |
$102,000 |
DAVIS JAMES A |
STALLWORTH DARLISE |
|||||
| Last Mailed Notice of Value (N.O.V.) Information/History | ||||||||
|---|---|---|---|---|---|---|---|---|
| Year | Date | Market Value | Taxable Market Value | Gross Assessed | Exemption | Net Assessed | ||
|
2026 |
02/23/2026 |
245,500 |
237,022 |
26,071 |
0 |
26,071 |
||
|
2025 |
02/14/2025 |
252,000 |
225,736 |
24,830 |
0 |
24,830 |
||
|
2024 |
02/13/2024 |
247,500 |
214,987 |
23,648 |
0 |
23,648 |
||
|
2023 |
02/14/2023 |
241,500 |
204,750 |
22,522 |
0 |
22,522 |
||
|
2022 |
03/15/2022 |
195,000 |
195,000 |
21,450 |
0 |
21,450 |
||
| Property Building Permit History | |||||||||||
|---|---|---|---|---|---|---|---|---|---|---|---|
| Issued | Permit # | Provided by | Bldg # | Description | Est Construction Cost | Status | |||||
| No Building Permit records returned. | |||||||||||
| Click button on building number to access detailed information: | ||||||
|---|---|---|---|---|---|---|
| Bldg # | Vacant/Improved Land | Bldg Description | Year Built | SqFt | # Stories | |
|
1 |
Improved |
Ranch 1 Story |
1915 |
1,692 |
1 Stories |
|