|
|
|
| Larry Stein Oklahoma County Assessor (405) 713-1200 - Public Access System |
|
|
|
|
|
|
| Real Property Display - Screen Produced 4/12/2026 6:18:26 PM | ||||
|---|---|---|---|---|
| Account: R064064450 | Type: Residential | Location: |
2118 NW 19TH ST |
|
| Building Name/Occupant: |
|
OKLAHOMA CITY |
||
| Owner Name 1: | KELLEY JAMES MARION |
Parcel PIN#: |
2717-06-406-4450 |
|
| Owner Name 2: | JARVIS JANA SUE | 1/4 section #: |
2717 |
|
| Owner Name 3: | Parent Acct: |
|
||
| Billing Address: | 2118 NW 19TH ST | Tax District: |
|
|
| City, State, Zip | OKLAHOMA CITY, OK 73107-3506 | School System: |
Oklahoma City #89 |
|
|
Country: (If noted) |
Land Size: |
0.2479 Acres |
||
|
Land Value: 46,980 |
|
|||
|
Sect 30-T12N-R3W Qtr NE |
LAS VEGAS ADDITION
Block
013
Lot
000
|
|||
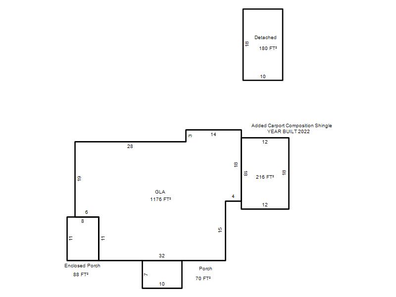
| Full Legal Description: LAS VEGAS ADDITION 013 000 LOT 4 EX E3FT |
| Photo & Sketch (if available) | Comp Sales (ordered by relevancy) |
|
||||||||||||||||||
|
||||||||||||||||||||
| Value History (*The County Treasurer 405-713-1300 posts & collects actual tax amounts. Contact information HERE) | |||||||||||||
|---|---|---|---|---|---|---|---|---|---|---|---|---|---|
| Year | Market Value | Taxable Mkt Value | Gross Assessed | Exemption | Net Assessed | Millage | Est. Tax | Tax Savings | |||||
|
2026 |
157,500 |
112,106 |
12,331 |
1,000 |
11,331 |
122.90 |
$1,393 |
$737 |
|||||
|
2025 |
152,000 |
108,841 |
11,971 |
1,000 |
10,971 |
122.90 |
$1,349 |
$706 |
|||||
|
2024 |
148,000 |
105,671 |
11,623 |
1,000 |
10,623 |
123.89 |
$1,316 |
$701 |
|||||
|
2023 |
144,500 |
102,594 |
11,284 |
1,000 |
10,284 |
122.82 |
$1,263 |
$689 |
|||||
|
2022 |
115,000 |
99,606 |
10,955 |
1,000 |
9,955 |
117.63 |
$1,171 |
$317 |
|||||
| Property Account Status/Adjustments/Exemptions | ||
|---|---|---|
| Account # | Exemption Description | Amount |
|
R064064450 |
3% Cap Homestead |
0 |
|
R064064450 |
Homestead |
1,000 |
| Property Deed Transaction History (Recorded in the County Clerk's Office) | ||||||||||
|---|---|---|---|---|---|---|---|---|---|---|
| Date | Type | Book | Page | Price | Grantor | Grantee | ||||
|
3/19/2025 |
|
Deeds |
$0 |
KELLY JAMES MARION |
KELLEY JAMES MARION |
|||||
|
12/7/2016 |
|
Deeds |
$0 |
KELLEY JAMES MARION JARVIS JANA |
KELLY JAMES MARION |
|||||
|
8/27/2010 |
|
Deeds |
$0 |
JARVIS JANA |
KELLEY JAMES MARION JARVIS JANA |
|||||
|
5/1/2008 |
|
Deeds |
$94,500 |
OYLER TIM |
JARVIS JANA |
|||||
|
12/21/2007 |
|
Deeds |
$25,000 |
GORDON GAIL & JOE |
EDWARDS REBECCA |
|||||
| Last Mailed Notice of Value (N.O.V.) Information/History | ||||||||
|---|---|---|---|---|---|---|---|---|
| Year | Date | Market Value | Taxable Market Value | Gross Assessed | Exemption | Net Assessed | ||
|
2026 |
02/23/2026 |
157,500 |
112,106 |
12,331 |
1,000 |
11,331 |
||
|
2025 |
02/14/2025 |
152,000 |
108,841 |
11,971 |
1,000 |
10,971 |
||
|
2024 |
02/13/2024 |
148,000 |
105,671 |
11,623 |
1,000 |
10,623 |
||
|
2023 |
02/14/2023 |
144,500 |
102,594 |
11,284 |
1,000 |
10,284 |
||
|
2022 |
03/15/2022 |
115,000 |
99,606 |
10,955 |
1,000 |
9,955 |
||
| Property Building Permit History | |||||||||||
|---|---|---|---|---|---|---|---|---|---|---|---|
| Issued | Permit # | Provided by | Bldg # | Description | Est Construction Cost | Status | |||||
| No Building Permit records returned. | |||||||||||
| Click button on building number to access detailed information: | ||||||
|---|---|---|---|---|---|---|
| Bldg # | Vacant/Improved Land | Bldg Description | Year Built | SqFt | # Stories | |
|
1 |
Improved |
Ranch 1 Story |
1924 |
1,176 |
1 Stories |
|