|
|
|
| Larry Stein Oklahoma County Assessor (405) 713-1200 - Public Access System |
|
|
|
|
|
|
| Real Property Display - Screen Produced 4/14/2026 4:53:40 AM | ||||
|---|---|---|---|---|
| Account: R064066500 | Type: Residential | Location: |
2224 NW 18TH ST |
|
| Building Name/Occupant: |
|
OKLAHOMA CITY |
||
| Owner Name 1: | KARLIN JOHN WESLEY |
Parcel PIN#: |
2717-06-406-6500 |
|
| Owner Name 2: | 1/4 section #: |
2717 |
||
| Owner Name 3: | Parent Acct: |
|
||
| Billing Address: | 2224 NW 18TH ST | Tax District: |
|
|
| City, State, Zip | OKLAHOMA CITY, OK 73107-4023 | School System: |
Oklahoma City #89 |
|
|
Country: (If noted) |
Land Size: |
0.2583 Acres |
||
|
Land Value: 48,938 |
|
|||
|
Sect 30-T12N-R3W Qtr NE |
LAS VEGAS ADDITION
Block
017
Lot
005
|
|||
| Full Legal Description: LAS VEGAS ADDITION 017 005 |
| Photo & Sketch (if available) | Comp Sales (ordered by relevancy) |
|
||||||||||||||||||
|
||||||||||||||||||||
| Value History (*The County Treasurer 405-713-1300 posts & collects actual tax amounts. Contact information HERE) | |||||||||||||
|---|---|---|---|---|---|---|---|---|---|---|---|---|---|
| Year | Market Value | Taxable Mkt Value | Gross Assessed | Exemption | Net Assessed | Millage | Est. Tax | Tax Savings | |||||
|
2026 |
252,000 |
213,489 |
23,483 |
0 |
23,483 |
122.90 |
$2,886 |
$521 |
|||||
|
2025 |
253,500 |
203,323 |
22,365 |
0 |
22,365 |
122.90 |
$2,749 |
$678 |
|||||
|
2024 |
247,500 |
193,641 |
21,300 |
0 |
21,300 |
123.89 |
$2,639 |
$734 |
|||||
|
2023 |
240,000 |
184,420 |
20,286 |
0 |
20,286 |
122.82 |
$2,492 |
$751 |
|||||
|
2022 |
194,000 |
175,639 |
19,320 |
0 |
19,320 |
117.63 |
$2,273 |
$238 |
|||||
| Property Account Status/Adjustments/Exemptions | ||
|---|---|---|
| Account # | Exemption Description | Amount |
|
R064066500 |
5% Capped Account |
0 |
| Property Deed Transaction History (Recorded in the County Clerk's Office) | ||||||||||
|---|---|---|---|---|---|---|---|---|---|---|
| Date | Type | Book | Page | Price | Grantor | Grantee | ||||
|
5/21/2003 |
|
Deeds |
$88,000 |
JOHNSON DUSTIN M & SIRESE HETRICK |
KARLIN JOHN WESLEY |
|||||
|
12/14/1999 |
|
Deeds |
$76,000 |
SHARP TRACY L & SCOTT A |
HETRICK DUSTON M & SIRESE |
|||||
|
12/1/1998 |
|
Historical |
$0 |
WEAVER TRACY LYNN |
SHARP TRACY L & SCOTT A |
|||||
|
8/10/1995 |
|
Historical |
$0 |
WEAVER TRACY LYNN |
WEAVER TRACY LYNN |
|||||
|
12/27/1994 |
|
Historical |
$52,500 |
MAJORS DANIEL R |
WEAVER TRACY LYNN |
|||||
| Last Mailed Notice of Value (N.O.V.) Information/History | ||||||||
|---|---|---|---|---|---|---|---|---|
| Year | Date | Market Value | Taxable Market Value | Gross Assessed | Exemption | Net Assessed | ||
|
2026 |
02/23/2026 |
252,000 |
213,489 |
23,483 |
0 |
23,483 |
||
|
2025 |
02/14/2025 |
253,500 |
203,323 |
22,365 |
0 |
22,365 |
||
|
2024 |
02/13/2024 |
247,500 |
193,641 |
21,300 |
0 |
21,300 |
||
|
2023 |
02/14/2023 |
240,000 |
184,420 |
20,286 |
0 |
20,286 |
||
|
2022 |
03/15/2022 |
194,000 |
175,639 |
19,320 |
0 |
19,320 |
||
| Property Building Permit History | |||||||||||
|---|---|---|---|---|---|---|---|---|---|---|---|
| Issued | Permit # | Provided by | Bldg # | Description | Est Construction Cost | Status | |||||
| No Building Permit records returned. | |||||||||||
| Click button on building number to access detailed information: | ||||||
|---|---|---|---|---|---|---|
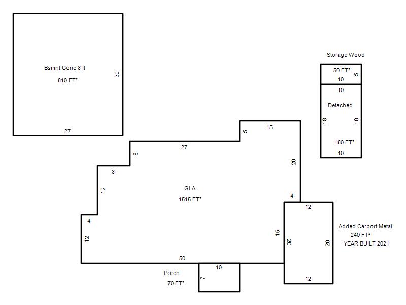
| Bldg # | Vacant/Improved Land | Bldg Description | Year Built | SqFt | # Stories | |
|
1 |
Improved |
Ranch 1 Story |
1927 |
1,515 |
1 Stories |
|