|
|
|
| Larry Stein Oklahoma County Assessor (405) 713-1200 - Public Access System |
|
|
|
|
|
|
| Real Property Display - Screen Produced 4/14/2026 5:01:55 AM | ||||
|---|---|---|---|---|
| Account: R064067200 | Type: Residential | Location: |
2131 NW 17TH ST |
|
| Building Name/Occupant: |
|
OKLAHOMA CITY |
||
| Owner Name 1: | CLOUD9 INVESTMENTS LLC |
Parcel PIN#: |
2717-06-406-7200 |
|
| Owner Name 2: | 1/4 section #: |
2717 |
||
| Owner Name 3: | Parent Acct: |
|
||
| Billing Address: | 12800 S MERIDIAN AVE | Tax District: |
|
|
| City, State, Zip | OKLAHOMA CITY, OK 73173-8895 | School System: |
Oklahoma City #89 |
|
|
Country: (If noted) |
Land Size: |
0.2583 Acres |
||
|
Land Value: 48,938 |
|
|||
|
Sect 30-T12N-R3W Qtr NE |
LAS VEGAS ADDITION
Block
018
Lot
007
|
|||
| Full Legal Description: LAS VEGAS ADDITION 018 007 |
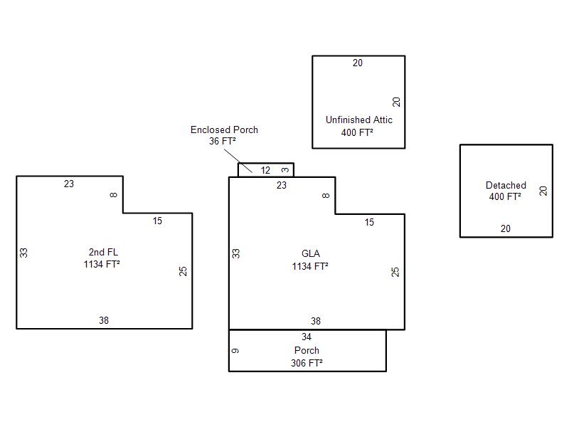
| Photo & Sketch (if available) | Comp Sales (ordered by relevancy) |
|
||||||||||||||||||
|
||||||||||||||||||||
| Value History (*The County Treasurer 405-713-1300 posts & collects actual tax amounts. Contact information HERE) | |||||||||||||
|---|---|---|---|---|---|---|---|---|---|---|---|---|---|
| Year | Market Value | Taxable Mkt Value | Gross Assessed | Exemption | Net Assessed | Millage | Est. Tax | Tax Savings | |||||
|
2026 |
388,500 |
388,500 |
42,735 |
0 |
42,735 |
122.90 |
$5,252 |
$0 |
|||||
|
2025 |
377,000 |
377,000 |
41,470 |
0 |
41,470 |
122.90 |
$5,097 |
$0 |
|||||
|
2024 |
375,000 |
375,000 |
41,250 |
0 |
41,250 |
123.89 |
$5,110 |
$0 |
|||||
|
2023 |
60,278 |
60,278 |
6,630 |
0 |
6,630 |
122.82 |
$814 |
$0 |
|||||
|
2022 |
184,500 |
184,500 |
20,295 |
0 |
20,295 |
117.63 |
$2,387 |
$0 |
|||||
| Property Account Status/Adjustments/Exemptions | ||
|---|---|---|
| Account # | Exemption Description | Amount |
|
R064067200 |
5% Capped Account |
0 |
| Property Deed Transaction History (Recorded in the County Clerk's Office) | ||||||||||
|---|---|---|---|---|---|---|---|---|---|---|
| Date | Type | Book | Page | Price | Grantor | Grantee | ||||
|
5/26/2023 |
|
Deeds |
$255,000 |
OASIS REAL ESTATE LLC |
CLOUD9 INVESTMENTS LLC |
|||||
|
3/5/2021 |
|
Deeds |
$180,000 |
LAWSON WILLIAM J & LOUISE A |
OASIS REAL ESTATE LLC |
|||||
|
4/5/1994 |
|
Historical |
$36,500 |
PEARSON MARSHALL |
LAWSON WILLIAM J & LOUISE A |
|||||
|
8/15/1991 |
|
Historical |
$13,000 |
MONROE SAVINGS BANK FSB |
PEARSON MARSHALL |
|||||
|
12/11/1989 |
|
Historical |
$0 |
CAIN CHRIS O & CYNTHIA A |
MONROE SAVINGS BANK FSB |
|||||
| Last Mailed Notice of Value (N.O.V.) Information/History | ||||||||
|---|---|---|---|---|---|---|---|---|
| Year | Date | Market Value | Taxable Market Value | Gross Assessed | Exemption | Net Assessed | ||
|
2026 |
02/23/2026 |
388,500 |
388,500 |
42,735 |
0 |
42,735 |
||
|
2025 |
02/14/2025 |
377,000 |
377,000 |
41,470 |
0 |
41,470 |
||
|
2024 |
03/01/2024 |
375,000 |
375,000 |
41,250 |
0 |
41,250 |
||
|
2022 |
03/15/2022 |
184,500 |
184,500 |
20,295 |
0 |
20,295 |
||
|
2021 |
03/19/2021 |
171,000 |
76,009 |
8,360 |
1,000 |
7,360 |
||
| Property Building Permit History | ||||||
|---|---|---|---|---|---|---|
| Issued | Permit # | Provided by | Bldg # | Description | Est Construction Cost | Status |
|
12/4/2023 |
BLDR-2023-0553 |
|
1 |
Storage Buil |
1,000 |
Inactive |
|
8/16/2023 |
BLDR-2023-04277 |
|
1 |
Remodeled |
95,000 |
Inactive |
|
12/14/2022 |
|
|
1 |
Remodeled |
|
Inactive |
| Click button on building number to access detailed information: | ||||||
|---|---|---|---|---|---|---|
| Bldg # | Vacant/Improved Land | Bldg Description | Year Built | SqFt | # Stories | |
|
1 |
Improved |
2 Story |
1905 |
2,268 |
2 Stories |
|