|
|
|
| Larry Stein Oklahoma County Assessor (405) 713-1200 - Public Access System |
|
|
|
|
|
|
| Real Property Display - Screen Produced 4/14/2026 5:01:56 AM | ||||
|---|---|---|---|---|
| Account: R064067400 | Type: Residential | Location: |
2105 NW 17TH ST |
|
| Building Name/Occupant: |
|
OKLAHOMA CITY |
||
| Owner Name 1: | SABIN JEFFREY & MARY |
Parcel PIN#: |
2717-06-406-7400 |
|
| Owner Name 2: | 1/4 section #: |
2717 |
||
| Owner Name 3: | Parent Acct: |
|
||
| Billing Address: | 2105 NW 17TH ST | Tax District: |
|
|
| City, State, Zip | OKLAHOMA CITY, OK 73107-4062 | School System: |
Oklahoma City #89 |
|
|
Country: (If noted) |
Land Size: |
0.2583 Acres |
||
|
Land Value: 48,938 |
|
|||
|
Sect 30-T12N-R3W Qtr NE |
LAS VEGAS ADDITION
Block
018
Lot
011
|
|||
| Full Legal Description: LAS VEGAS ADDITION 018 011 |
| Photo & Sketch (if available) | Comp Sales (ordered by relevancy) |
|
||||||||||||||||||
|
||||||||||||||||||||
| Value History (*The County Treasurer 405-713-1300 posts & collects actual tax amounts. Contact information HERE) | |||||||||||||
|---|---|---|---|---|---|---|---|---|---|---|---|---|---|
| Year | Market Value | Taxable Mkt Value | Gross Assessed | Exemption | Net Assessed | Millage | Est. Tax | Tax Savings | |||||
|
2026 |
242,000 |
213,320 |
23,464 |
0 |
23,464 |
122.90 |
$2,884 |
$388 |
|||||
|
2025 |
244,000 |
203,162 |
22,347 |
0 |
22,347 |
122.90 |
$2,747 |
$552 |
|||||
|
2024 |
236,500 |
193,488 |
21,283 |
0 |
21,283 |
123.89 |
$2,637 |
$586 |
|||||
|
2023 |
225,500 |
184,275 |
20,270 |
0 |
20,270 |
122.82 |
$2,490 |
$557 |
|||||
|
2022 |
175,500 |
175,500 |
19,305 |
0 |
19,305 |
117.63 |
$2,271 |
$0 |
|||||
| Property Account Status/Adjustments/Exemptions | ||
|---|---|---|
| Account # | Exemption Description | Amount |
|
R064067400 |
5% Capped Account |
0 |
| Property Deed Transaction History (Recorded in the County Clerk's Office) | ||||||||||
|---|---|---|---|---|---|---|---|---|---|---|
| Date | Type | Book | Page | Price | Grantor | Grantee | ||||
|
3/14/2018 |
|
Deeds |
$166,000 |
SMITH MICHAEL C & AMY J |
SABIN JEFFREY & MARY |
|||||
|
8/16/2011 |
|
Deeds |
$141,000 |
JOHNSON BEN |
SMITH MICHAEL C & AMY J |
|||||
|
8/5/2005 |
|
Deeds |
$135,000 |
HISSEY DAVID JOHN A & CAREY A |
JOHNSON BEN |
|||||
|
11/9/1992 |
|
Historical |
$65,000 |
RUSCHA EDWARD J IV |
HISSEY DAVID JOHN A & CAREY A |
|||||
|
8/1/1986 |
|
Historical |
$0 |
RUSCHA DOROTHY |
RUSCHA EDWARD J IV |
|||||
| Last Mailed Notice of Value (N.O.V.) Information/History | ||||||||
|---|---|---|---|---|---|---|---|---|
| Year | Date | Market Value | Taxable Market Value | Gross Assessed | Exemption | Net Assessed | ||
|
2026 |
02/23/2026 |
242,000 |
213,320 |
23,464 |
0 |
23,464 |
||
|
2025 |
02/14/2025 |
244,000 |
203,162 |
22,347 |
0 |
22,347 |
||
|
2024 |
02/13/2024 |
236,500 |
193,488 |
21,283 |
0 |
21,283 |
||
|
2023 |
02/14/2023 |
225,500 |
184,275 |
20,270 |
0 |
20,270 |
||
|
2021 |
03/19/2021 |
199,000 |
190,732 |
20,980 |
0 |
20,980 |
||
| Property Building Permit History | ||||||
|---|---|---|---|---|---|---|
| Issued | Permit # | Provided by | Bldg # | Description | Est Construction Cost | Status |
|
3/21/2024 |
24019731 |
|
1 |
Burn - Trip |
3,000 |
Inactive |
| Click button on building number to access detailed information: | ||||||
|---|---|---|---|---|---|---|
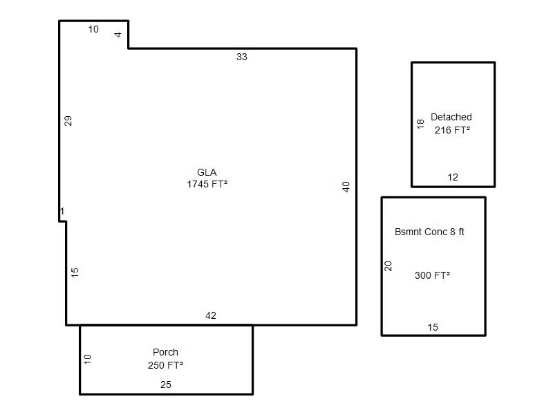
| Bldg # | Vacant/Improved Land | Bldg Description | Year Built | SqFt | # Stories | |
|
1 |
Improved |
Ranch 1 Story |
1920 |
1,745 |
1 Stories |
|