|
|
|
| Larry Stein Oklahoma County Assessor (405) 713-1200 - Public Access System |
|
|
|
|
|
|
| Real Property Display - Screen Produced 4/12/2026 6:30:27 PM | ||||
|---|---|---|---|---|
| Account: R060030750 | Type: Residential | Location: |
2521 NW 13TH ST |
|
| Building Name/Occupant: |
|
OKLAHOMA CITY |
||
| Owner Name 1: | BONILLA MISAEL |
Parcel PIN#: |
2719-06-003-0750 |
|
| Owner Name 2: | 1/4 section #: |
2719 |
||
| Owner Name 3: | Parent Acct: |
|
||
| Billing Address: | 2521 NW 13TH ST | Tax District: |
|
|
| City, State, Zip | OKLAHOMA CITY, OK 73107-4809 | School System: |
Oklahoma City #89 |
|
|
Country: (If noted) |
Land Size: |
0.1722 Acres |
||
|
Land Value: 32,625 |
|
|||
|
Sect 30-T12N-R3W Qtr SW |
MILLER BLVD RESUB N 1/2
Block
003
Lot
019
|
|||
| Full Legal Description: MILLER BLVD RESUB N 1/2 003 019 |
| Photo & Sketch (if available) | Comp Sales (ordered by relevancy) |
|
||||||||||||||||||
|
||||||||||||||||||||
| Value History (*The County Treasurer 405-713-1300 posts & collects actual tax amounts. Contact information HERE) | |||||||||||||
|---|---|---|---|---|---|---|---|---|---|---|---|---|---|
| Year | Market Value | Taxable Mkt Value | Gross Assessed | Exemption | Net Assessed | Millage | Est. Tax | Tax Savings | |||||
|
2026 |
193,000 |
119,237 |
13,116 |
1,000 |
12,116 |
122.90 |
$1,489 |
$1,120 |
|||||
|
2025 |
194,500 |
115,765 |
12,733 |
1,000 |
11,733 |
122.90 |
$1,442 |
$1,187 |
|||||
|
2024 |
188,500 |
112,394 |
12,363 |
1,000 |
11,363 |
123.89 |
$1,408 |
$1,161 |
|||||
|
2023 |
180,500 |
109,121 |
12,002 |
1,000 |
11,002 |
122.82 |
$1,351 |
$1,087 |
|||||
|
2022 |
141,000 |
105,943 |
11,652 |
1,000 |
10,652 |
117.63 |
$1,253 |
$571 |
|||||
| Property Account Status/Adjustments/Exemptions | ||
|---|---|---|
| Account # | Exemption Description | Amount |
|
R060030750 |
3% Cap Homestead |
0 |
|
R060030750 |
Homestead |
1,000 |
| Property Deed Transaction History (Recorded in the County Clerk's Office) | |||||||
|---|---|---|---|---|---|---|---|
| Date | Type | Book | Page | Price | Grantor | Grantee | |
|
12/8/2003 |
|
Deeds |
$68,500 |
MILLER MARRS LLC C/O S TWILA L WELDON |
BONILLA MISAEL |
||
|
5/12/2002 |
|
|
$0 |
REED LOWELL WELDON TWILA |
MILLER MARRS LLC |
||
|
3/6/1989 |
|
Historical |
$0 |
REED RUBY P |
REED LOWELL |
||
|
11/11/1911 |
|
Historical |
$0 |
|
REED RUBY P |
||
| Last Mailed Notice of Value (N.O.V.) Information/History | ||||||||
|---|---|---|---|---|---|---|---|---|
| Year | Date | Market Value | Taxable Market Value | Gross Assessed | Exemption | Net Assessed | ||
|
2026 |
02/23/2026 |
193,000 |
119,237 |
13,116 |
1,000 |
12,116 |
||
|
2025 |
02/14/2025 |
194,500 |
115,765 |
12,733 |
1,000 |
11,733 |
||
|
2024 |
02/13/2024 |
188,500 |
112,394 |
12,363 |
1,000 |
11,363 |
||
|
2023 |
02/14/2023 |
180,500 |
109,121 |
12,002 |
1,000 |
11,002 |
||
|
2022 |
03/15/2022 |
141,000 |
105,943 |
11,652 |
1,000 |
10,652 |
||
| Property Building Permit History | |||||||||||
|---|---|---|---|---|---|---|---|---|---|---|---|
| Issued | Permit # | Provided by | Bldg # | Description | Est Construction Cost | Status | |||||
| No Building Permit records returned. | |||||||||||
| Click button on building number to access detailed information: | ||||||
|---|---|---|---|---|---|---|
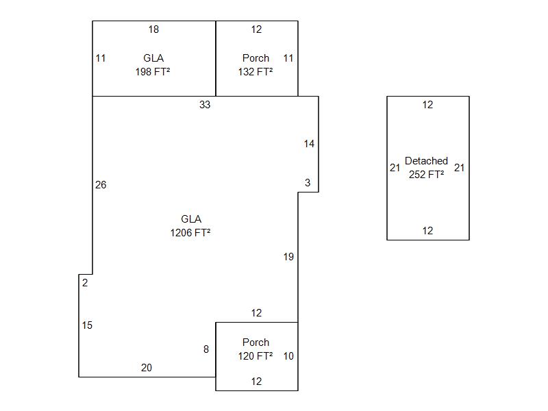
| Bldg # | Vacant/Improved Land | Bldg Description | Year Built | SqFt | # Stories | |
|
1 |
Improved |
Ranch 1 Story |
1926 |
1,404 |
1 Stories |
|