|
|
|
| Larry Stein Oklahoma County Assessor (405) 713-1200 - Public Access System |
|
|
|
|
|
|
| Real Property Display - Screen Produced 4/12/2026 6:30:44 PM | ||||
|---|---|---|---|---|
| Account: R060030780 | Type: Residential | Location: |
2509 NW 13TH ST |
|
| Building Name/Occupant: |
|
OKLAHOMA CITY |
||
| Owner Name 1: | HAWKINS PAULA SUE |
Parcel PIN#: |
2719-06-003-0780 |
|
| Owner Name 2: | 1/4 section #: |
2719 |
||
| Owner Name 3: | Parent Acct: |
|
||
| Billing Address: | 2509 NW 13TH ST | Tax District: |
|
|
| City, State, Zip | OKLAHOMA CITY, OK 73107-4809 | School System: |
Oklahoma City #89 |
|
|
Country: (If noted) |
Land Size: |
0.1722 Acres |
||
|
Land Value: 32,625 |
|
|||
|
Sect 30-T12N-R3W Qtr SW |
MILLER BLVD RESUB N 1/2
Block
003
Lot
022
|
|||
| Full Legal Description: MILLER BLVD RESUB N 1/2 003 022 |
| Photo & Sketch (if available) | Comp Sales (ordered by relevancy) |
|
||||||||||||||||||
|
||||||||||||||||||||
| Value History (*The County Treasurer 405-713-1300 posts & collects actual tax amounts. Contact information HERE) | |||||||||||||
|---|---|---|---|---|---|---|---|---|---|---|---|---|---|
| Year | Market Value | Taxable Mkt Value | Gross Assessed | Exemption | Net Assessed | Millage | Est. Tax | Tax Savings | |||||
|
2026 |
156,000 |
53,596 |
5,895 |
2,000 |
3,895 |
122.90 |
$479 |
$1,630 |
|||||
|
2025 |
153,000 |
53,596 |
5,895 |
2,000 |
3,895 |
122.90 |
$479 |
$1,590 |
|||||
|
2024 |
146,000 |
53,596 |
5,895 |
2,000 |
3,895 |
123.89 |
$483 |
$1,507 |
|||||
|
2023 |
143,500 |
53,596 |
5,895 |
2,000 |
3,895 |
122.82 |
$478 |
$1,460 |
|||||
|
2022 |
111,500 |
53,596 |
5,895 |
2,000 |
3,895 |
117.63 |
$458 |
$984 |
|||||
| Property Account Status/Adjustments/Exemptions | ||
|---|---|---|
| Account # | Exemption Description | Amount |
|
R060030780 |
Freeze Senior Valuation |
0 |
|
R060030780 |
Senior Additional Homestead |
1,000 |
|
R060030780 |
3% Cap Homestead |
0 |
|
R060030780 |
Homestead |
1,000 |
| Property Deed Transaction History (Recorded in the County Clerk's Office) | |||||||
|---|---|---|---|---|---|---|---|
| Date | Type | Book | Page | Price | Grantor | Grantee | |
|
7/28/2017 |
|
Deeds |
$0 |
HAWKINS EUGENE & PAULA SUE |
HAWKINS PAULA SUE |
||
|
8/2/1993 |
|
Historical |
$24,000 |
BEALL BARRY |
HAWKINS EUGENE & PAULA SUE |
||
|
8/1/1982 |
|
Historical |
$0 |
|
BEALL BARRY |
||
| Last Mailed Notice of Value (N.O.V.) Information/History | ||||||||
|---|---|---|---|---|---|---|---|---|
| Year | Date | Market Value | Taxable Market Value | Gross Assessed | Exemption | Net Assessed | ||
|
2026 |
02/23/2026 |
156,000 |
53,596 |
5,895 |
2,000 |
3,895 |
||
|
2025 |
02/14/2025 |
153,000 |
53,596 |
5,895 |
2,000 |
3,895 |
||
|
2024 |
02/13/2024 |
146,000 |
53,596 |
5,895 |
2,000 |
3,895 |
||
|
2023 |
02/14/2023 |
143,500 |
53,596 |
5,895 |
2,000 |
3,895 |
||
|
2022 |
03/15/2022 |
111,500 |
53,596 |
5,895 |
2,000 |
3,895 |
||
| Property Building Permit History | |||||||||||
|---|---|---|---|---|---|---|---|---|---|---|---|
| Issued | Permit # | Provided by | Bldg # | Description | Est Construction Cost | Status | |||||
| No Building Permit records returned. | |||||||||||
| Click button on building number to access detailed information: | ||||||
|---|---|---|---|---|---|---|
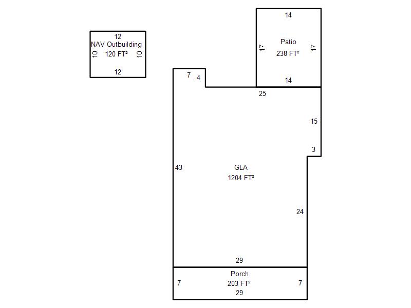
| Bldg # | Vacant/Improved Land | Bldg Description | Year Built | SqFt | # Stories | |
|
1 |
Improved |
Ranch 1 Story |
1926 |
1,204 |
1 Stories |
|