|
|
|
| Larry Stein Oklahoma County Assessor (405) 713-1200 - Public Access System |
|
|
|
|
|
|
| Real Property Display - Screen Produced 4/14/2026 4:32:26 AM | ||||
|---|---|---|---|---|
| Account: R060042540 | Type: Residential | Location: |
2604 NW 14TH ST |
|
| Building Name/Occupant: |
|
OKLAHOMA CITY |
||
| Owner Name 1: | SHERWOOD NANCY L |
Parcel PIN#: |
2719-06-004-2540 |
|
| Owner Name 2: | 1/4 section #: |
2719 |
||
| Owner Name 3: | Parent Acct: |
|
||
| Billing Address: | 2604 NW 14TH ST | Tax District: |
|
|
| City, State, Zip | OKLAHOMA CITY, OK 73107-4818 | School System: |
Oklahoma City #89 |
|
|
Country: (If noted) |
Land Size: |
0.1722 Acres |
||
|
Land Value: 32,625 |
|
|||
|
Sect 30-T12N-R3W Qtr SW |
MILLERS BOULEVARD AMD
Block
012
Lot
002
|
|||
| Full Legal Description: MILLERS BOULEVARD AMD 012 002 |
| Photo & Sketch (if available) | Comp Sales (ordered by relevancy) |
|
||||||||||||||||||
|
||||||||||||||||||||
| Value History (*The County Treasurer 405-713-1300 posts & collects actual tax amounts. Contact information HERE) | |||||||||||||
|---|---|---|---|---|---|---|---|---|---|---|---|---|---|
| Year | Market Value | Taxable Mkt Value | Gross Assessed | Exemption | Net Assessed | Millage | Est. Tax | Tax Savings | |||||
|
2026 |
195,000 |
110,299 |
12,132 |
1,000 |
11,132 |
122.90 |
$1,368 |
$1,268 |
|||||
|
2025 |
196,500 |
110,299 |
12,132 |
1,000 |
11,132 |
122.90 |
$1,368 |
$1,288 |
|||||
|
2024 |
190,000 |
110,299 |
12,132 |
1,000 |
11,132 |
123.89 |
$1,379 |
$1,210 |
|||||
|
2023 |
181,500 |
110,299 |
12,132 |
1,000 |
11,132 |
122.82 |
$1,367 |
$1,085 |
|||||
|
2022 |
142,000 |
110,299 |
12,132 |
1,000 |
11,132 |
117.63 |
$1,310 |
$528 |
|||||
| Property Account Status/Adjustments/Exemptions | ||
|---|---|---|
| Account # | Exemption Description | Amount |
|
R060042540 |
Freeze Senior Valuation |
0 |
|
R060042540 |
3% Cap Homestead |
0 |
|
R060042540 |
Homestead |
1,000 |
| Property Deed Transaction History (Recorded in the County Clerk's Office) | |||||||
|---|---|---|---|---|---|---|---|
| Date | Type | Book | Page | Price | Grantor | Grantee | |
|
7/21/2000 |
|
Deeds |
$69,000 |
NEAL WAYNE W & BLANCA E |
SHERWOOD NANCY L |
||
|
10/13/1994 |
|
Historical |
$39,000 |
KENNEY SUZANNE |
NEAL WAYNE W & BLANCA E |
||
|
6/22/1992 |
|
Historical |
$33,000 |
MURRAY GENEVA B & DON P CO TRS |
KENNEY SUZANNE |
||
|
5/1/1992 |
|
Historical |
$0 |
MIRRAY DON P & GENEVA B |
MURRAY GENEVA B & DON P CO TRS |
||
|
5/1/1979 |
|
Historical |
$0 |
|
MIRRAY DON P & GENEVA B |
||
| Last Mailed Notice of Value (N.O.V.) Information/History | ||||||||
|---|---|---|---|---|---|---|---|---|
| Year | Date | Market Value | Taxable Market Value | Gross Assessed | Exemption | Net Assessed | ||
|
2025 |
02/14/2025 |
196,500 |
110,299 |
12,132 |
1,000 |
11,132 |
||
|
2024 |
02/13/2024 |
190,000 |
110,299 |
12,132 |
1,000 |
11,132 |
||
|
2023 |
02/14/2023 |
181,500 |
110,299 |
12,132 |
1,000 |
11,132 |
||
|
2022 |
03/15/2022 |
142,000 |
110,299 |
12,132 |
1,000 |
11,132 |
||
|
2021 |
03/19/2021 |
130,000 |
110,299 |
12,132 |
1,000 |
11,132 |
||
| Property Building Permit History | |||||||||||
|---|---|---|---|---|---|---|---|---|---|---|---|
| Issued | Permit # | Provided by | Bldg # | Description | Est Construction Cost | Status | |||||
| No Building Permit records returned. | |||||||||||
| Click button on building number to access detailed information: | ||||||
|---|---|---|---|---|---|---|
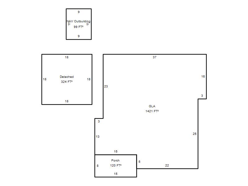
| Bldg # | Vacant/Improved Land | Bldg Description | Year Built | SqFt | # Stories | |
|
1 |
Improved |
Ranch 1 Story |
1936 |
1,421 |
1 Stories |
|