|
|
|
| Larry Stein Oklahoma County Assessor (405) 713-1200 - Public Access System |
|
|
|
|
|
|
| Real Property Display - Screen Produced 4/12/2026 6:07:40 PM | ||||
|---|---|---|---|---|
| Account: R060042550 | Type: Residential | Location: |
2608 NW 14TH ST |
|
| Building Name/Occupant: |
|
OKLAHOMA CITY |
||
| Owner Name 1: | LOFTY LIVING LLC |
Parcel PIN#: |
2719-06-004-2550 |
|
| Owner Name 2: | 1/4 section #: |
2719 |
||
| Owner Name 3: | Parent Acct: |
|
||
| Billing Address: | 3433 NW 69TH ST | Tax District: |
|
|
| City, State, Zip | OKLAHOMA CITY , OK 73116 | School System: |
Oklahoma City #89 |
|
|
Country: (If noted) |
Land Size: |
0.1722 Acres |
||
|
Land Value: 32,625 |
|
|||
|
Sect 30-T12N-R3W Qtr SW |
MILLERS BOULEVARD AMD
Block
012
Lot
003
|
|||
| Full Legal Description: MILLERS BOULEVARD AMD 012 003 |
| Photo & Sketch (if available) | Comp Sales (ordered by relevancy) |
|
||||||||||||||||||
|
||||||||||||||||||||
| Value History (*The County Treasurer 405-713-1300 posts & collects actual tax amounts. Contact information HERE) | |||||||||||||
|---|---|---|---|---|---|---|---|---|---|---|---|---|---|
| Year | Market Value | Taxable Mkt Value | Gross Assessed | Exemption | Net Assessed | Millage | Est. Tax | Tax Savings | |||||
|
2026 |
240,000 |
186,156 |
20,477 |
0 |
20,477 |
122.90 |
$2,517 |
$728 |
|||||
|
2025 |
242,000 |
177,292 |
19,501 |
0 |
19,501 |
122.90 |
$2,397 |
$875 |
|||||
|
2024 |
234,000 |
168,850 |
18,573 |
0 |
18,573 |
123.89 |
$2,301 |
$888 |
|||||
|
2023 |
224,000 |
160,810 |
17,688 |
0 |
17,688 |
122.82 |
$2,173 |
$854 |
|||||
|
2022 |
175,500 |
153,153 |
16,846 |
0 |
16,846 |
117.63 |
$1,982 |
$289 |
|||||
| Property Account Status/Adjustments/Exemptions | ||
|---|---|---|
| Account # | Exemption Description | Amount |
|
R060042550 |
5% Capped Account |
0 |
| Property Deed Transaction History (Recorded in the County Clerk's Office) | |||||||
|---|---|---|---|---|---|---|---|
| Date | Type | Book | Page | Price | Grantor | Grantee | |
|
1/23/2015 |
|
Deeds |
$54,500 |
KAPP MAXINE |
LOFTY LIVING LLC |
||
|
1/7/2015 |
|
Deeds |
$0 |
KAPP MELVIN P JR & A MAXINE |
KAPP MAXINE |
||
|
1/24/1989 |
|
Historical |
$0 |
KAPP MELVIN P JR |
KAPP MELVIN P JR & A MAXINE |
||
|
1/20/1989 |
|
Historical |
$0 |
THOM JACK B E & EULA |
KAPP MELVIN P JR |
||
|
11/11/1911 |
|
Historical |
$0 |
|
THOM JACK B E & EULA |
||
| Last Mailed Notice of Value (N.O.V.) Information/History | ||||||||
|---|---|---|---|---|---|---|---|---|
| Year | Date | Market Value | Taxable Market Value | Gross Assessed | Exemption | Net Assessed | ||
|
2026 |
02/23/2026 |
240,000 |
186,156 |
20,477 |
0 |
20,477 |
||
|
2025 |
02/14/2025 |
242,000 |
177,292 |
19,501 |
0 |
19,501 |
||
|
2024 |
02/13/2024 |
234,000 |
168,850 |
18,573 |
0 |
18,573 |
||
|
2023 |
02/14/2023 |
224,000 |
160,810 |
17,688 |
0 |
17,688 |
||
|
2022 |
03/15/2022 |
175,500 |
153,153 |
16,846 |
0 |
16,846 |
||
| Property Building Permit History | |||||||||||
|---|---|---|---|---|---|---|---|---|---|---|---|
| Issued | Permit # | Provided by | Bldg # | Description | Est Construction Cost | Status | |||||
| No Building Permit records returned. | |||||||||||
| Click button on building number to access detailed information: | ||||||
|---|---|---|---|---|---|---|
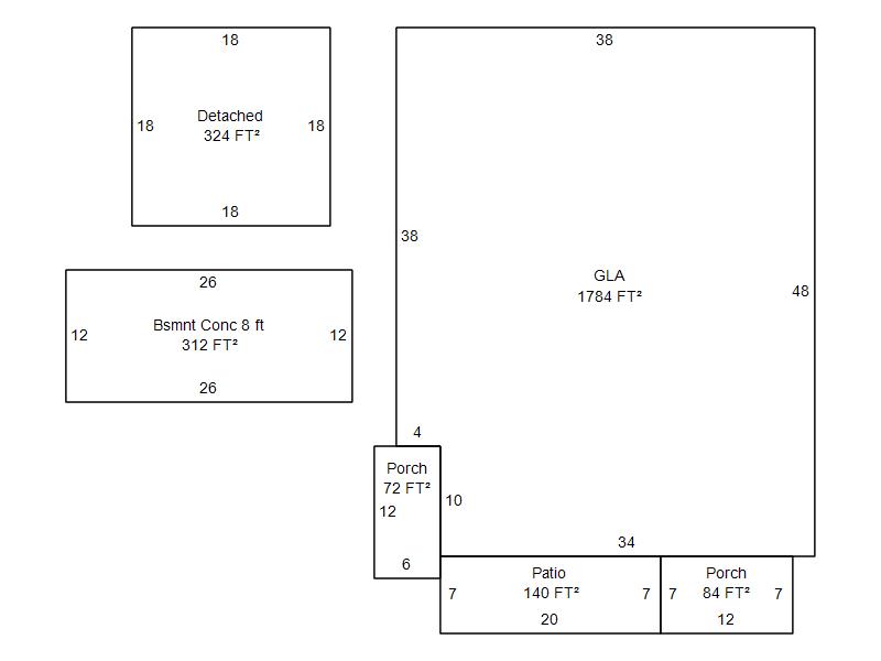
| Bldg # | Vacant/Improved Land | Bldg Description | Year Built | SqFt | # Stories | |
|
1 |
Improved |
Ranch 1 Story |
1928 |
1,784 |
1 Stories |
|