|
|
|
| Larry Stein Oklahoma County Assessor (405) 713-1200 - Public Access System |
|
|
|
|
|
|
| Real Property Display - Screen Produced 4/12/2026 6:10:02 PM | ||||
|---|---|---|---|---|
| Account: R060042780 | Type: Residential | Location: |
2601 NW 13TH ST |
|
| Building Name/Occupant: |
|
OKLAHOMA CITY |
||
| Owner Name 1: | KING MURRAY W JR & GAYLENE |
Parcel PIN#: |
2719-06-004-2780 |
|
| Owner Name 2: | 1/4 section #: |
2719 |
||
| Owner Name 3: | Parent Acct: |
|
||
| Billing Address: | 2601 NW 13TH ST | Tax District: |
|
|
| City, State, Zip | OKLAHOMA CITY, OK 73107-4811 | School System: |
Oklahoma City #89 |
|
|
Country: (If noted) |
Land Size: |
0.1722 Acres |
||
|
Land Value: 32,625 |
|
|||
|
Sect 30-T12N-R3W Qtr SW |
MILLERS BOULEVARD AMD
Block
012
Lot
026
|
|||
| Full Legal Description: MILLERS BOULEVARD AMD 012 026 |
| Photo & Sketch (if available) | Comp Sales (ordered by relevancy) |
|
||||||||||||||||||
|
||||||||||||||||||||
| Value History (*The County Treasurer 405-713-1300 posts & collects actual tax amounts. Contact information HERE) | |||||||||||||
|---|---|---|---|---|---|---|---|---|---|---|---|---|---|
| Year | Market Value | Taxable Mkt Value | Gross Assessed | Exemption | Net Assessed | Millage | Est. Tax | Tax Savings | |||||
|
2026 |
219,500 |
145,674 |
16,023 |
1,000 |
15,023 |
122.90 |
$1,846 |
$1,121 |
|||||
|
2025 |
221,500 |
141,432 |
15,557 |
1,000 |
14,557 |
122.90 |
$1,789 |
$1,205 |
|||||
|
2024 |
213,000 |
137,313 |
15,103 |
1,000 |
14,103 |
123.89 |
$1,747 |
$1,155 |
|||||
|
2023 |
204,500 |
133,314 |
14,664 |
1,000 |
13,664 |
122.82 |
$1,678 |
$1,085 |
|||||
|
2022 |
161,000 |
129,432 |
14,236 |
1,000 |
13,236 |
117.63 |
$1,557 |
$526 |
|||||
| Property Account Status/Adjustments/Exemptions | ||
|---|---|---|
| Account # | Exemption Description | Amount |
|
R060042780 |
Homestead |
1,000 |
|
R060042780 |
3% Cap Homestead |
0 |
| Property Deed Transaction History (Recorded in the County Clerk's Office) | |||||||
|---|---|---|---|---|---|---|---|
| Date | Type | Book | Page | Price | Grantor | Grantee | |
|
12/6/2011 |
|
Deeds |
$0 |
KING MURRAY W JR |
KING MURRAY W JR & GAYLENE |
||
|
10/19/2007 |
|
Deeds |
$114,000 |
HOWELL JABREY |
KING MURRAY W JR |
||
|
6/9/2003 |
|
Deeds |
$81,000 |
CAWIEZELL ELISSA JANE |
HOWELL JABREY |
||
|
9/13/1995 |
|
Historical |
$51,500 |
STUBBLEFIELD DAVID L & DIANA L |
CAWIEZELL ELISSA JANE |
||
|
2/1/1980 |
|
Historical |
$0 |
|
STUBBLEFIELD DAVID L & DIANA L |
||
| Last Mailed Notice of Value (N.O.V.) Information/History | ||||||||
|---|---|---|---|---|---|---|---|---|
| Year | Date | Market Value | Taxable Market Value | Gross Assessed | Exemption | Net Assessed | ||
|
2026 |
02/23/2026 |
219,500 |
145,674 |
16,023 |
1,000 |
15,023 |
||
|
2025 |
02/14/2025 |
221,500 |
141,432 |
15,557 |
1,000 |
14,557 |
||
|
2024 |
02/13/2024 |
213,000 |
137,313 |
15,103 |
1,000 |
14,103 |
||
|
2023 |
02/14/2023 |
204,500 |
133,314 |
14,664 |
1,000 |
13,664 |
||
|
2022 |
03/15/2022 |
161,000 |
129,432 |
14,236 |
1,000 |
13,236 |
||
| Property Building Permit History | |||||||||||
|---|---|---|---|---|---|---|---|---|---|---|---|
| Issued | Permit # | Provided by | Bldg # | Description | Est Construction Cost | Status | |||||
| No Building Permit records returned. | |||||||||||
| Click button on building number to access detailed information: | ||||||
|---|---|---|---|---|---|---|
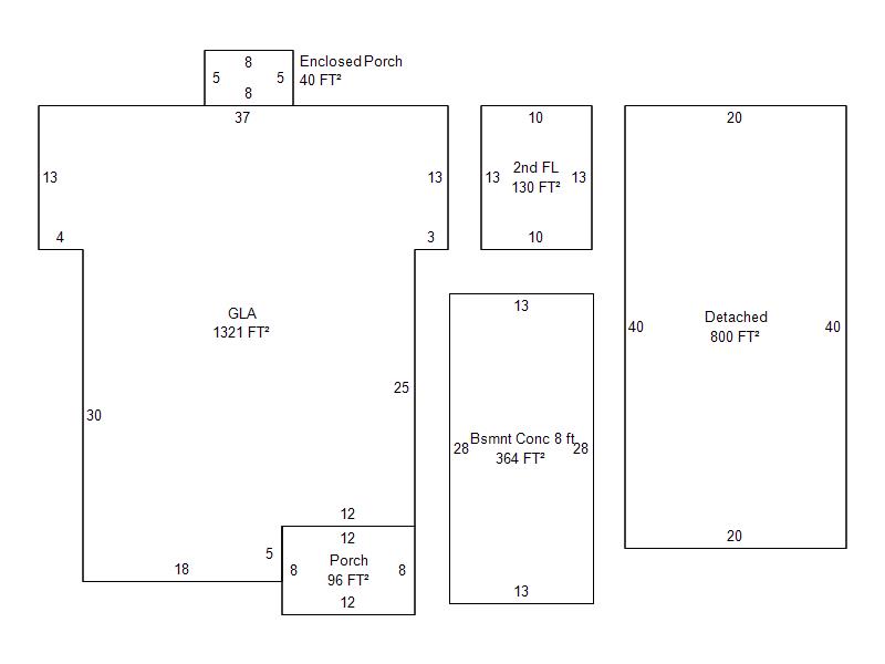
| Bldg # | Vacant/Improved Land | Bldg Description | Year Built | SqFt | # Stories | |
|
1 |
Improved |
1½ Story Fin |
1928 |
1,451 |
1.5 Stories |
|