|
|
|
| Larry Stein Oklahoma County Assessor (405) 713-1200 - Public Access System |
|
|
|
|
|
|
| Real Property Display - Screen Produced 4/14/2026 4:32:26 AM | ||||
|---|---|---|---|---|
| Account: R060042800 | Type: Residential | Location: |
2604 NW 15TH ST |
|
| Building Name/Occupant: |
|
OKLAHOMA CITY |
||
| Owner Name 1: | WODRASKA VICKI |
Parcel PIN#: |
2719-06-004-2800 |
|
| Owner Name 2: | 1/4 section #: |
2719 |
||
| Owner Name 3: | Parent Acct: |
|
||
| Billing Address: | 2604 NW 15TH ST | Tax District: |
|
|
| City, State, Zip | OKLAHOMA CITY, OK 73107-4824 | School System: |
Oklahoma City #89 |
|
|
Country: (If noted) |
Land Size: |
0.1722 Acres |
||
|
Land Value: 32,625 |
|
|||
|
Sect 30-T12N-R3W Qtr SW |
MILLERS BOULEVARD AMD
Block
013
Lot
002
|
|||
| Full Legal Description: MILLERS BOULEVARD AMD 013 002 |
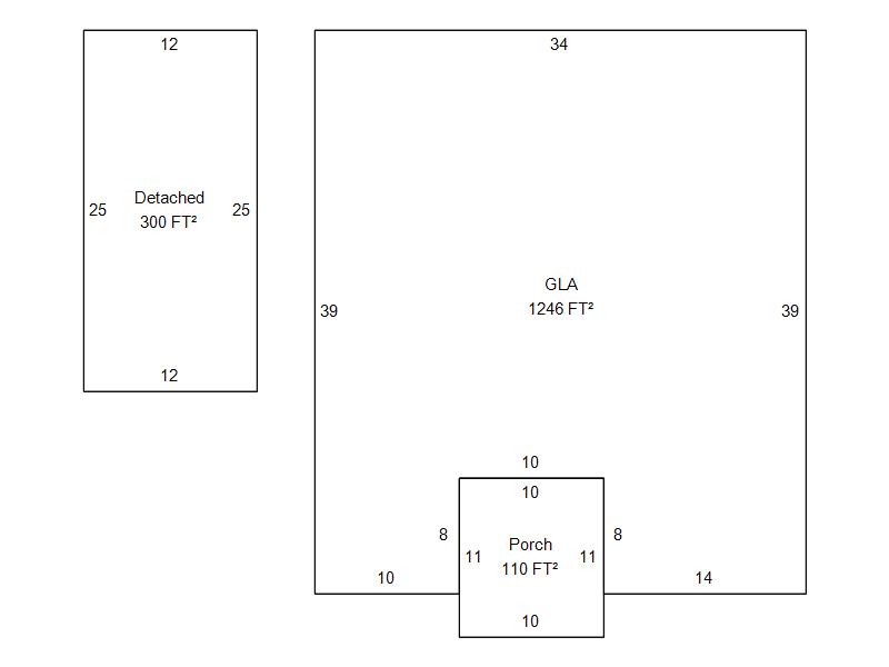
| Photo & Sketch (if available) | Comp Sales (ordered by relevancy) |
|
||||||||||||||||||
|
||||||||||||||||||||
| Value History (*The County Treasurer 405-713-1300 posts & collects actual tax amounts. Contact information HERE) | |||||||||||||
|---|---|---|---|---|---|---|---|---|---|---|---|---|---|
| Year | Market Value | Taxable Mkt Value | Gross Assessed | Exemption | Net Assessed | Millage | Est. Tax | Tax Savings | |||||
|
2026 |
162,000 |
126,319 |
13,894 |
0 |
13,894 |
122.90 |
$1,708 |
$482 |
|||||
|
2025 |
158,500 |
120,304 |
13,233 |
0 |
13,233 |
122.90 |
$1,626 |
$516 |
|||||
|
2024 |
153,500 |
114,576 |
12,603 |
0 |
12,603 |
123.89 |
$1,561 |
$530 |
|||||
|
2023 |
151,500 |
109,120 |
12,002 |
0 |
12,002 |
122.82 |
$1,474 |
$573 |
|||||
|
2022 |
118,000 |
103,924 |
11,430 |
0 |
11,430 |
117.63 |
$1,345 |
$182 |
|||||
| Property Account Status/Adjustments/Exemptions | ||
|---|---|---|
| Account # | Exemption Description | Amount |
|
R060042800 |
5% Capped Account |
0 |
| Property Deed Transaction History (Recorded in the County Clerk's Office) | ||||||||||
|---|---|---|---|---|---|---|---|---|---|---|
| Date | Type | Book | Page | Price | Grantor | Grantee | ||||
|
10/26/2010 |
|
Deeds |
$63,000 |
ARLINGTON REALTY LLC |
WODRASKA VICKI |
|||||
|
3/3/2008 |
|
Hmstd Off & |
$0 |
KELLS RICHARD B |
ARLINGTON REALTY LLC |
|||||
|
7/7/1995 |
|
Historical |
$0 |
AVANT JAMES W JR & MARY E |
KELLS RICHARD B |
|||||
|
5/16/1990 |
|
Historical |
$36,000 |
VOWELL MARY HELLEN |
AVANT JAMES W JR & MARY E |
|||||
|
9/7/1989 |
|
Historical |
$0 |
VOWELL NAYMOND BURVIN |
VOWELL MARY HELLEN |
|||||
| Last Mailed Notice of Value (N.O.V.) Information/History | ||||||||
|---|---|---|---|---|---|---|---|---|
| Year | Date | Market Value | Taxable Market Value | Gross Assessed | Exemption | Net Assessed | ||
|
2026 |
02/23/2026 |
162,000 |
126,319 |
13,894 |
0 |
13,894 |
||
|
2025 |
02/14/2025 |
158,500 |
120,304 |
13,233 |
0 |
13,233 |
||
|
2024 |
02/13/2024 |
153,500 |
114,576 |
12,603 |
0 |
12,603 |
||
|
2023 |
02/14/2023 |
151,500 |
109,120 |
12,002 |
0 |
12,002 |
||
|
2022 |
03/15/2022 |
118,000 |
103,924 |
11,430 |
0 |
11,430 |
||
| Property Building Permit History | |||||||||||
|---|---|---|---|---|---|---|---|---|---|---|---|
| Issued | Permit # | Provided by | Bldg # | Description | Est Construction Cost | Status | |||||
| No Building Permit records returned. | |||||||||||
| Click button on building number to access detailed information: | ||||||
|---|---|---|---|---|---|---|
| Bldg # | Vacant/Improved Land | Bldg Description | Year Built | SqFt | # Stories | |
|
1 |
Improved |
Ranch 1 Story |
1930 |
1,246 |
1 Stories |
|