|
|
|
| Larry Stein Oklahoma County Assessor (405) 713-1200 - Public Access System |
|
|
|
|
|
|
| Real Property Display - Screen Produced 4/14/2026 5:21:01 AM | ||||
|---|---|---|---|---|
| Account: R060042820 | Type: Residential | Location: |
2612 NW 15TH ST |
|
| Building Name/Occupant: |
|
OKLAHOMA CITY |
||
| Owner Name 1: | WYATT KARIN S |
Parcel PIN#: |
2719-06-004-2820 |
|
| Owner Name 2: | 1/4 section #: |
2719 |
||
| Owner Name 3: | Parent Acct: |
|
||
| Billing Address: | 2612 NW 15TH ST | Tax District: |
|
|
| City, State, Zip | OKLAHOMA CITY, OK 73107-4824 | School System: |
Oklahoma City #89 |
|
|
Country: (If noted) |
Land Size: |
0.1722 Acres |
||
|
Land Value: 32,625 |
|
|||
|
Sect 30-T12N-R3W Qtr SW |
MILLERS BOULEVARD AMD
Block
013
Lot
004
|
|||
| Full Legal Description: MILLERS BOULEVARD AMD 013 004 |
| Photo & Sketch (if available) | Comp Sales (ordered by relevancy) |
|
||||||||||||||||||
|
||||||||||||||||||||
| Value History (*The County Treasurer 405-713-1300 posts & collects actual tax amounts. Contact information HERE) | |||||||||||||
|---|---|---|---|---|---|---|---|---|---|---|---|---|---|
| Year | Market Value | Taxable Mkt Value | Gross Assessed | Exemption | Net Assessed | Millage | Est. Tax | Tax Savings | |||||
|
2026 |
168,500 |
87,035 |
9,573 |
1,000 |
8,573 |
122.90 |
$1,054 |
$1,224 |
|||||
|
2025 |
165,000 |
87,035 |
9,573 |
1,000 |
8,573 |
122.90 |
$1,054 |
$1,177 |
|||||
|
2024 |
160,500 |
87,035 |
9,573 |
1,000 |
8,573 |
123.89 |
$1,062 |
$1,125 |
|||||
|
2023 |
158,000 |
87,035 |
9,573 |
1,000 |
8,573 |
122.82 |
$1,053 |
$1,082 |
|||||
|
2022 |
123,000 |
87,035 |
9,573 |
1,000 |
8,573 |
117.63 |
$1,009 |
$583 |
|||||
| Property Account Status/Adjustments/Exemptions | ||
|---|---|---|
| Account # | Exemption Description | Amount |
|
R060042820 |
Freeze Senior Valuation |
0 |
|
R060042820 |
3% Cap Homestead |
0 |
|
R060042820 |
Homestead |
1,000 |
| Property Deed Transaction History (Recorded in the County Clerk's Office) | |||||||
|---|---|---|---|---|---|---|---|
| Date | Type | Book | Page | Price | Grantor | Grantee | |
|
12/1/1995 |
|
Historical |
$23,000 |
GLIDEWELL DONNIE D |
WYATT KARIN S |
||
|
4/1/1986 |
|
Historical |
$0 |
|
GLIDEWELL DONNIE D |
||
| Last Mailed Notice of Value (N.O.V.) Information/History | ||||||||
|---|---|---|---|---|---|---|---|---|
| Year | Date | Market Value | Taxable Market Value | Gross Assessed | Exemption | Net Assessed | ||
|
2026 |
02/23/2026 |
168,500 |
87,035 |
9,573 |
1,000 |
8,573 |
||
|
2025 |
02/14/2025 |
165,000 |
87,035 |
9,573 |
1,000 |
8,573 |
||
|
2024 |
02/13/2024 |
160,500 |
87,035 |
9,573 |
1,000 |
8,573 |
||
|
2023 |
02/14/2023 |
158,000 |
87,035 |
9,573 |
1,000 |
8,573 |
||
|
2022 |
03/15/2022 |
123,000 |
87,035 |
9,573 |
1,000 |
8,573 |
||
| Property Building Permit History | |||||||||||
|---|---|---|---|---|---|---|---|---|---|---|---|
| Issued | Permit # | Provided by | Bldg # | Description | Est Construction Cost | Status | |||||
| No Building Permit records returned. | |||||||||||
| Click button on building number to access detailed information: | ||||||
|---|---|---|---|---|---|---|
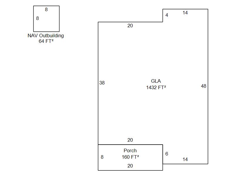
| Bldg # | Vacant/Improved Land | Bldg Description | Year Built | SqFt | # Stories | |
|
1 |
Improved |
Ranch 1 Story |
1930 |
1,432 |
1 Stories |
|