|
|
|
| Larry Stein Oklahoma County Assessor (405) 713-1200 - Public Access System |
|
|
|
|
|
|
| Real Property Display - Screen Produced 4/14/2026 6:14:34 AM | ||||
|---|---|---|---|---|
| Account: R060042880 | Type: Residential | Location: |
2636 NW 15TH ST |
|
| Building Name/Occupant: |
|
OKLAHOMA CITY |
||
| Owner Name 1: | PHILLIPS NEELY A |
Parcel PIN#: |
2719-06-004-2880 |
|
| Owner Name 2: | 1/4 section #: |
2719 |
||
| Owner Name 3: | Parent Acct: |
|
||
| Billing Address: | 2636 NW 15TH ST | Tax District: |
|
|
| City, State, Zip | OKLAHOMA CITY, OK 73107-4824 | School System: |
Oklahoma City #89 |
|
|
Country: (If noted) |
Land Size: |
0.1722 Acres |
||
|
Land Value: 32,625 |
|
|||
|
Sect 30-T12N-R3W Qtr SW |
MILLERS BOULEVARD AMD
Block
013
Lot
010
|
|||
| Full Legal Description: MILLERS BOULEVARD AMD 013 010 |
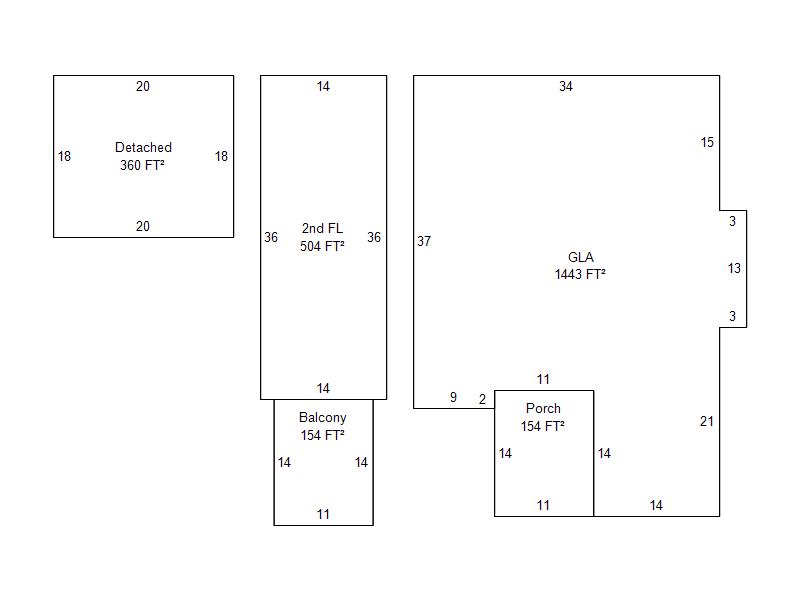
| Photo & Sketch (if available) | Comp Sales (ordered by relevancy) |
|
||||||||||||||||||
|
||||||||||||||||||||
| Value History (*The County Treasurer 405-713-1300 posts & collects actual tax amounts. Contact information HERE) | |||||||||||||
|---|---|---|---|---|---|---|---|---|---|---|---|---|---|
| Year | Market Value | Taxable Mkt Value | Gross Assessed | Exemption | Net Assessed | Millage | Est. Tax | Tax Savings | |||||
|
2026 |
310,000 |
233,550 |
25,690 |
1,000 |
24,690 |
122.90 |
$3,034 |
$1,156 |
|||||
|
2025 |
310,000 |
226,748 |
24,941 |
1,000 |
23,941 |
122.90 |
$2,943 |
$1,248 |
|||||
|
2024 |
304,500 |
220,144 |
24,215 |
1,000 |
23,215 |
123.89 |
$2,876 |
$1,273 |
|||||
|
2023 |
301,000 |
213,733 |
23,509 |
1,000 |
22,509 |
122.82 |
$2,765 |
$1,302 |
|||||
|
2022 |
247,000 |
207,508 |
22,824 |
1,000 |
21,824 |
117.63 |
$2,567 |
$629 |
|||||
| Property Account Status/Adjustments/Exemptions | ||
|---|---|---|
| Account # | Exemption Description | Amount |
|
R060042880 |
3% Cap Homestead |
0 |
|
R060042880 |
Homestead |
1,000 |
| Property Deed Transaction History (Recorded in the County Clerk's Office) | ||||||||||
|---|---|---|---|---|---|---|---|---|---|---|
| Date | Type | Book | Page | Price | Grantor | Grantee | ||||
|
4/30/2008 |
|
Deeds |
$175,000 |
TASSELES ETC LLC |
PHILLIPS NEELY A |
|||||
|
10/18/2007 |
|
Deeds |
$78,000 |
BYERLY DONALD R & GLORIA A |
TASSELES ETC LLC |
|||||
|
10/12/2007 |
|
Deeds |
$0 |
BYERLY DONALD |
BYERLY DONALD R & GLORIA A |
|||||
|
1/8/1993 |
|
Historical |
$0 |
BANK OF OKLAHOMA |
BYERLY DONALD R & GLORIA |
|||||
|
8/30/1989 |
|
Historical |
$0 |
DECORDOVA SAMUEL D |
BANK OF OKLAHOMA |
|||||
| Last Mailed Notice of Value (N.O.V.) Information/History | ||||||||
|---|---|---|---|---|---|---|---|---|
| Year | Date | Market Value | Taxable Market Value | Gross Assessed | Exemption | Net Assessed | ||
|
2026 |
02/23/2026 |
310,000 |
233,550 |
25,690 |
1,000 |
24,690 |
||
|
2025 |
02/14/2025 |
310,000 |
226,748 |
24,941 |
1,000 |
23,941 |
||
|
2024 |
02/13/2024 |
304,500 |
220,144 |
24,215 |
1,000 |
23,215 |
||
|
2023 |
02/14/2023 |
301,000 |
213,733 |
23,509 |
1,000 |
22,509 |
||
|
2022 |
03/15/2022 |
247,000 |
207,508 |
22,824 |
1,000 |
21,824 |
||
| Property Building Permit History | |||||||||||
|---|---|---|---|---|---|---|---|---|---|---|---|
| Issued | Permit # | Provided by | Bldg # | Description | Est Construction Cost | Status | |||||
| No Building Permit records returned. | |||||||||||
| Click button on building number to access detailed information: | ||||||
|---|---|---|---|---|---|---|
| Bldg # | Vacant/Improved Land | Bldg Description | Year Built | SqFt | # Stories | |
|
1 |
Improved |
1½ Story Fin |
1928 |
1,947 |
1.5 Stories |
|