|
|
|
| Larry Stein Oklahoma County Assessor (405) 713-1200 - Public Access System |
|
|
|
|
|
|
| Real Property Display - Screen Produced 4/12/2026 6:08:44 PM | ||||
|---|---|---|---|---|
| Account: R060042930 | Type: Residential | Location: |
2645 NW 14TH ST |
|
| Building Name/Occupant: |
|
OKLAHOMA CITY |
||
| Owner Name 1: | CASTILLE DEMETRA L |
Parcel PIN#: |
2719-06-004-2930 |
|
| Owner Name 2: | 1/4 section #: |
2719 |
||
| Owner Name 3: | Parent Acct: |
|
||
| Billing Address: | 2645 NW 14TH ST | Tax District: |
|
|
| City, State, Zip | OKLAHOMA CITY, OK 73107-4817 | School System: |
Oklahoma City #89 |
|
|
Country: (If noted) |
Land Size: |
0.1722 Acres |
||
|
Land Value: 32,625 |
|
|||
|
Sect 30-T12N-R3W Qtr SW |
MILLERS BOULEVARD AMD
Block
013
Lot
015
|
|||
| Full Legal Description: MILLERS BOULEVARD AMD 013 015 |
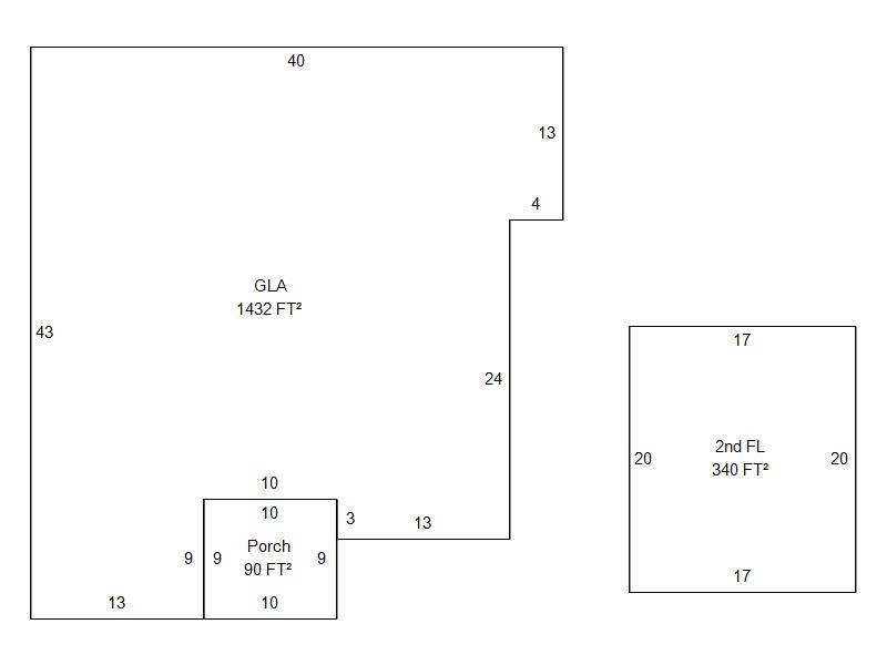
| Photo & Sketch (if available) | Comp Sales (ordered by relevancy) |
|
||||||||||||||||||
|
||||||||||||||||||||
| Value History (*The County Treasurer 405-713-1300 posts & collects actual tax amounts. Contact information HERE) | |||||||||||||
|---|---|---|---|---|---|---|---|---|---|---|---|---|---|
| Year | Market Value | Taxable Mkt Value | Gross Assessed | Exemption | Net Assessed | Millage | Est. Tax | Tax Savings | |||||
|
2026 |
212,500 |
122,606 |
13,485 |
1,000 |
12,485 |
122.90 |
$1,535 |
$1,338 |
|||||
|
2025 |
214,500 |
119,035 |
13,093 |
1,000 |
12,093 |
122.90 |
$1,486 |
$1,413 |
|||||
|
2024 |
208,000 |
115,568 |
12,712 |
1,000 |
11,712 |
123.89 |
$1,451 |
$1,384 |
|||||
|
2023 |
198,000 |
112,202 |
12,341 |
1,000 |
11,341 |
122.82 |
$1,393 |
$1,282 |
|||||
|
2022 |
155,500 |
108,934 |
11,981 |
1,000 |
10,981 |
117.63 |
$1,292 |
$720 |
|||||
| Property Account Status/Adjustments/Exemptions | ||
|---|---|---|
| Account # | Exemption Description | Amount |
|
R060042930 |
Homestead |
1,000 |
|
R060042930 |
3% Cap Homestead |
0 |
| Property Deed Transaction History (Recorded in the County Clerk's Office) | ||||||||||
|---|---|---|---|---|---|---|---|---|---|---|
| Date | Type | Book | Page | Price | Grantor | Grantee | ||||
|
6/24/2013 |
|
Deeds |
$0 |
JEMISON DEMETRA |
CASTILLE DEMETRA L |
|||||
|
2/15/2013 |
|
Deeds |
$0 |
JEMISON DEMETRA L |
CASTILLE DEMETRA L |
|||||
|
12/13/2000 |
|
Deeds |
$0 |
SMITH JAMES S |
JEMISON DEMETRA L |
|||||
|
7/11/2000 |
|
Deeds |
$0 |
JEMISON DEMETRA L SMITH JAMES S |
JEMISON DEMETRA L |
|||||
|
11/14/1996 |
|
Historical |
$55,000 |
ROGERS STEVEN |
JEMISON DEMETRA L |
|||||
| Last Mailed Notice of Value (N.O.V.) Information/History | ||||||||
|---|---|---|---|---|---|---|---|---|
| Year | Date | Market Value | Taxable Market Value | Gross Assessed | Exemption | Net Assessed | ||
|
2026 |
02/23/2026 |
212,500 |
122,606 |
13,485 |
1,000 |
12,485 |
||
|
2025 |
02/14/2025 |
214,500 |
119,035 |
13,093 |
1,000 |
12,093 |
||
|
2024 |
02/13/2024 |
208,000 |
115,568 |
12,712 |
1,000 |
11,712 |
||
|
2023 |
02/14/2023 |
198,000 |
112,202 |
12,341 |
1,000 |
11,341 |
||
|
2022 |
03/15/2022 |
155,500 |
108,934 |
11,981 |
1,000 |
10,981 |
||
| Property Building Permit History | ||||||
|---|---|---|---|---|---|---|
| Issued | Permit # | Provided by | Bldg # | Description | Est Construction Cost | Status |
|
9/10/2020 |
BLDD-2020-06018 |
|
1 |
Demolish |
0 |
Inactive |
| Click button on building number to access detailed information: | ||||||
|---|---|---|---|---|---|---|
| Bldg # | Vacant/Improved Land | Bldg Description | Year Built | SqFt | # Stories | |
|
1 |
Improved |
1½ Story Fin |
1930 |
1,772 |
1.5 Stories |
|