|
|
|
| Larry Stein Oklahoma County Assessor (405) 713-1200 - Public Access System |
|
|
|
|
|
|
| Real Property Display - Screen Produced 4/14/2026 5:01:55 AM | ||||
|---|---|---|---|---|
| Account: R060043270 | Type: Residential | Location: |
2621 NW 15TH ST |
|
| Building Name/Occupant: |
|
OKLAHOMA CITY |
||
| Owner Name 1: | DOUTHIT DANIEL JOHN |
Parcel PIN#: |
2719-06-004-3270 |
|
| Owner Name 2: | 1/4 section #: |
2719 |
||
| Owner Name 3: | Parent Acct: |
|
||
| Billing Address: | 2621 NW 15TH ST | Tax District: |
|
|
| City, State, Zip | OKLAHOMA CITY , OK 73107-4823 | School System: |
Oklahoma City #89 |
|
|
Country: (If noted) |
Land Size: |
0.1722 Acres |
||
|
Land Value: 32,625 |
|
|||
|
Sect 30-T12N-R3W Qtr SW |
MILLERS BOULEVARD AMD
Block
014
Lot
017
|
|||
| Full Legal Description: MILLERS BOULEVARD AMD 014 017 |
| Photo & Sketch (if available) | Comp Sales (ordered by relevancy) |
|
||||||||||||||||||
|
||||||||||||||||||||
| Value History (*The County Treasurer 405-713-1300 posts & collects actual tax amounts. Contact information HERE) | |||||||||||||
|---|---|---|---|---|---|---|---|---|---|---|---|---|---|
| Year | Market Value | Taxable Mkt Value | Gross Assessed | Exemption | Net Assessed | Millage | Est. Tax | Tax Savings | |||||
|
2026 |
232,000 |
199,451 |
21,938 |
0 |
21,938 |
122.90 |
$2,696 |
$440 |
|||||
|
2025 |
237,500 |
189,954 |
20,893 |
0 |
20,893 |
122.90 |
$2,568 |
$643 |
|||||
|
2024 |
232,500 |
180,909 |
19,899 |
0 |
19,899 |
123.89 |
$2,465 |
$703 |
|||||
|
2023 |
225,000 |
172,295 |
18,952 |
0 |
18,952 |
122.82 |
$2,328 |
$712 |
|||||
|
2022 |
183,000 |
164,091 |
18,049 |
0 |
18,049 |
117.63 |
$2,123 |
$245 |
|||||
| Property Account Status/Adjustments/Exemptions | ||
|---|---|---|
| Account # | Exemption Description | Amount |
|
R060043270 |
5% Capped Account |
0 |
| Property Deed Transaction History (Recorded in the County Clerk's Office) | ||||||||||
|---|---|---|---|---|---|---|---|---|---|---|
| Date | Type | Book | Page | Price | Grantor | Grantee | ||||
|
6/20/2012 |
|
Deeds |
$130,000 |
BRYCE NICOLE D |
DOUTHIT DANIEL JOHN |
|||||
|
2/28/2008 |
|
Deeds |
$125,000 |
WILLIAMS CHRISTINA M |
BRYCE NICOLE D |
|||||
|
7/15/2005 |
|
Deeds |
$110,000 |
MCMURRAY JANIE |
WILLIAMS CHRISTINA M |
|||||
|
4/15/2004 |
|
Deeds |
$83,500 |
MANDEVILLE THERESA E HEEZEN LISA |
MCMURRAY JANIE |
|||||
|
4/25/2003 |
|
Deeds |
$67,500 |
JOHNSON RICHARD R |
MANDEVILLE THERESA E HEEZEN LISA |
|||||
| Last Mailed Notice of Value (N.O.V.) Information/History | ||||||||
|---|---|---|---|---|---|---|---|---|
| Year | Date | Market Value | Taxable Market Value | Gross Assessed | Exemption | Net Assessed | ||
|
2026 |
02/23/2026 |
232,000 |
199,451 |
21,938 |
0 |
21,938 |
||
|
2025 |
02/14/2025 |
237,500 |
189,954 |
20,893 |
0 |
20,893 |
||
|
2024 |
02/13/2024 |
232,500 |
180,909 |
19,899 |
0 |
19,899 |
||
|
2023 |
02/14/2023 |
225,000 |
172,295 |
18,952 |
0 |
18,952 |
||
|
2022 |
03/15/2022 |
183,000 |
164,091 |
18,049 |
0 |
18,049 |
||
| Property Building Permit History | |||||||||||
|---|---|---|---|---|---|---|---|---|---|---|---|
| Issued | Permit # | Provided by | Bldg # | Description | Est Construction Cost | Status | |||||
| No Building Permit records returned. | |||||||||||
| Click button on building number to access detailed information: | ||||||
|---|---|---|---|---|---|---|
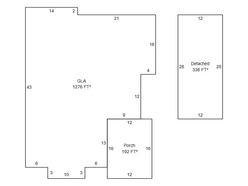
| Bldg # | Vacant/Improved Land | Bldg Description | Year Built | SqFt | # Stories | |
|
1 |
Improved |
Ranch 1 Story |
1928 |
1,276 |
1 Stories |
|