|
|
|
| Larry Stein Oklahoma County Assessor (405) 713-1200 - Public Access System |
|
|
|
|
|
|
| Real Property Display - Screen Produced 4/12/2026 4:13:18 PM | ||||
|---|---|---|---|---|
| Account: R063586800 | Type: Residential | Location: |
1909 N VILLA AVE |
|
| Building Name/Occupant: |
|
OKLAHOMA CITY |
||
| Owner Name 1: | WEST ALEXANDRIA M |
Parcel PIN#: |
2720-06-358-6800 |
|
| Owner Name 2: | 1/4 section #: |
2720 |
||
| Owner Name 3: | Parent Acct: |
|
||
| Billing Address: | 1909 N VILLA AVE | Tax District: |
|
|
| City, State, Zip | OKLAHOMA CITY, OK 73107-4050 | School System: |
Oklahoma City #89 |
|
|
Country: (If noted) |
Land Size: |
0.1033 Acres |
||
|
Land Value: 21,150 |
|
|||
|
Sect 30-T12N-R3W Qtr NW |
CRESTWOOD ADDITION
Block
014
Lot
000
|
|||
| Full Legal Description: CRESTWOOD ADDITION 014 000 N60FT OF LOTS 60 61 & 62 |
| Photo & Sketch (if available) | Comp Sales (ordered by relevancy) |
|
||||||||||||||||||
|
||||||||||||||||||||
| Value History (*The County Treasurer 405-713-1300 posts & collects actual tax amounts. Contact information HERE) | |||||||||||||
|---|---|---|---|---|---|---|---|---|---|---|---|---|---|
| Year | Market Value | Taxable Mkt Value | Gross Assessed | Exemption | Net Assessed | Millage | Est. Tax | Tax Savings | |||||
|
2026 |
198,500 |
198,500 |
21,835 |
0 |
21,835 |
122.90 |
$2,684 |
$0 |
|||||
|
2025 |
202,500 |
202,500 |
22,275 |
0 |
22,275 |
122.90 |
$2,738 |
$0 |
|||||
|
2024 |
198,500 |
198,500 |
21,835 |
0 |
21,835 |
123.89 |
$2,705 |
$0 |
|||||
|
2023 |
193,500 |
164,285 |
18,071 |
1,000 |
17,071 |
122.82 |
$2,097 |
$518 |
|||||
|
2022 |
159,500 |
159,500 |
17,545 |
1,000 |
16,545 |
117.63 |
$1,946 |
$118 |
|||||
| Property Account Status/Adjustments/Exemptions | ||
|---|---|---|
| Account # | Exemption Description | Amount |
|
R063586800 |
5% Capped Account |
0 |
| Property Deed Transaction History (Recorded in the County Clerk's Office) | ||||||||||
|---|---|---|---|---|---|---|---|---|---|---|
| Date | Type | Book | Page | Price | Grantor | Grantee | ||||
|
11/21/2023 |
|
Deeds |
$220,000 |
HYDEN AMANDA R |
WEST ALEXANDRIA M |
|||||
|
7/2/2020 |
|
Deeds |
$177,000 |
ADVANCED CONSTRUCTION LLC |
HYDEN AMANDA R |
|||||
|
10/16/2019 |
|
Deeds |
$125,000 |
RIEMER MICHAEL STEVEN |
ADVANCED CONSTRUCTION LLC |
|||||
|
7/24/2012 |
|
Deeds |
$103,000 |
MYERS JONATHAN E & ALISHA R |
RIEMER MICHAEL STEVEN |
|||||
|
9/23/2010 |
|
Deeds |
$92,500 |
CUATRO LLC |
MYERS JONATHAN E & ALISHA R |
|||||
| Last Mailed Notice of Value (N.O.V.) Information/History | ||||||||
|---|---|---|---|---|---|---|---|---|
| Year | Date | Market Value | Taxable Market Value | Gross Assessed | Exemption | Net Assessed | ||
|
2025 |
02/14/2025 |
202,500 |
202,500 |
22,275 |
0 |
22,275 |
||
|
2024 |
02/13/2024 |
198,500 |
198,500 |
21,835 |
0 |
21,835 |
||
|
2023 |
02/14/2023 |
193,500 |
164,285 |
18,071 |
1,000 |
17,071 |
||
|
2021 |
03/19/2021 |
175,000 |
175,000 |
19,250 |
0 |
19,250 |
||
|
2020 |
03/10/2020 |
127,500 |
127,500 |
14,025 |
0 |
14,025 |
||
| Property Building Permit History | |||||||||||
|---|---|---|---|---|---|---|---|---|---|---|---|
| Issued | Permit # | Provided by | Bldg # | Description | Est Construction Cost | Status | |||||
| No Building Permit records returned. | |||||||||||
| Click button on building number to access detailed information: | ||||||
|---|---|---|---|---|---|---|
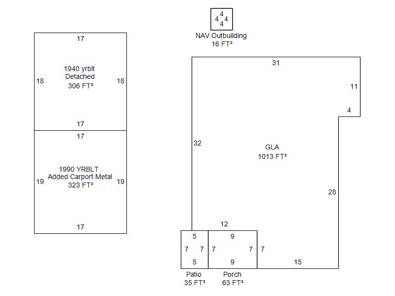
| Bldg # | Vacant/Improved Land | Bldg Description | Year Built | SqFt | # Stories | |
|
1 |
Improved |
Ranch 1 Story |
1934 |
1,013 |
1 Stories |
|