|
|
|
| Larry Stein Oklahoma County Assessor (405) 713-1200 - Public Access System |
|
|
|
|
|
|
| Real Property Display - Screen Produced 4/14/2026 4:32:28 AM | ||||
|---|---|---|---|---|
| Account: R064141240 | Type: Residential | Location: |
2529 NW 11TH ST |
|
| Building Name/Occupant: |
|
OKLAHOMA CITY |
||
| Owner Name 1: | HASKIN COLTON WADE |
Parcel PIN#: |
2719-06-414-1240 |
|
| Owner Name 2: | HASKIN LISA | 1/4 section #: |
2719 |
|
| Owner Name 3: | Parent Acct: |
|
||
| Billing Address: | 2529 NW 11TH ST | Tax District: |
|
|
| City, State, Zip | OKLAHOMA CITY, OK 73107 | School System: |
Oklahoma City #89 |
|
|
Country: (If noted) |
Land Size: |
0.1722 Acres |
||
|
Land Value: 32,625 |
|
|||
|
Sect 30-T12N-R3W Qtr SW |
MILLERS BOULEVARD
Block
005
Lot
000
|
|||
| Full Legal Description: MILLERS BOULEVARD 005 000 E25FT LOT 11 & W25FT LOT 12 |
| Photo & Sketch (if available) | Comp Sales (ordered by relevancy) |
|
||||||||||||||||||
|
||||||||||||||||||||
| Value History (*The County Treasurer 405-713-1300 posts & collects actual tax amounts. Contact information HERE) | |||||||||||||
|---|---|---|---|---|---|---|---|---|---|---|---|---|---|
| Year | Market Value | Taxable Mkt Value | Gross Assessed | Exemption | Net Assessed | Millage | Est. Tax | Tax Savings | |||||
|
2026 |
359,500 |
359,500 |
39,545 |
0 |
39,545 |
122.90 |
$4,860 |
$0 |
|||||
|
2025 |
368,000 |
357,705 |
39,346 |
0 |
39,346 |
122.90 |
$4,836 |
$139 |
|||||
|
2024 |
361,500 |
340,672 |
37,473 |
0 |
37,473 |
123.89 |
$4,643 |
$284 |
|||||
|
2023 |
337,500 |
324,450 |
35,689 |
0 |
35,689 |
122.82 |
$4,383 |
$176 |
|||||
|
2022 |
309,000 |
309,000 |
33,990 |
0 |
33,990 |
117.63 |
$3,998 |
$0 |
|||||
| Property Account Status/Adjustments/Exemptions | ||
|---|---|---|
| Account # | Exemption Description | Amount |
|
R064141240 |
5% Capped Account |
0 |
| Property Deed Transaction History (Recorded in the County Clerk's Office) | ||||||||||
|---|---|---|---|---|---|---|---|---|---|---|
| Date | Type | Book | Page | Price | Grantor | Grantee | ||||
|
9/15/2021 |
|
Deeds |
$312,500 |
TRAN HOANG VIET & HOA LE |
HASKIN COLTON WADE |
|||||
|
9/2/2021 |
|
Hmstd Off & |
$0 |
TRAN HOANG VIET & HOA LE |
TRAN HOANG VIET & HOA LE |
|||||
|
8/31/2020 |
|
Deeds |
$110,000 |
HOANG LEA THUY |
TRAN HOANG VIET & HOA LE |
|||||
|
2/12/2018 |
|
Hmstd Off & |
$0 |
TRAN HOANG VIET |
HOANG LEA THUY |
|||||
|
8/22/1997 |
|
Historical |
$0 |
HIET VIET TRAN & QUIT T LUON |
TRAN HOANG VIET |
|||||
| Last Mailed Notice of Value (N.O.V.) Information/History | ||||||||
|---|---|---|---|---|---|---|---|---|
| Year | Date | Market Value | Taxable Market Value | Gross Assessed | Exemption | Net Assessed | ||
|
2026 |
02/23/2026 |
359,500 |
359,500 |
39,545 |
0 |
39,545 |
||
|
2025 |
02/14/2025 |
368,000 |
357,705 |
39,346 |
0 |
39,346 |
||
|
2024 |
02/13/2024 |
361,500 |
340,672 |
37,473 |
0 |
37,473 |
||
|
2023 |
02/14/2023 |
337,500 |
324,450 |
35,689 |
0 |
35,689 |
||
|
2022 |
03/15/2022 |
309,000 |
309,000 |
33,990 |
0 |
33,990 |
||
| Property Building Permit History | |||||||||||
|---|---|---|---|---|---|---|---|---|---|---|---|
| Issued | Permit # | Provided by | Bldg # | Description | Est Construction Cost | Status | |||||
| No Building Permit records returned. | |||||||||||
| Click button on building number to access detailed information: | ||||||
|---|---|---|---|---|---|---|
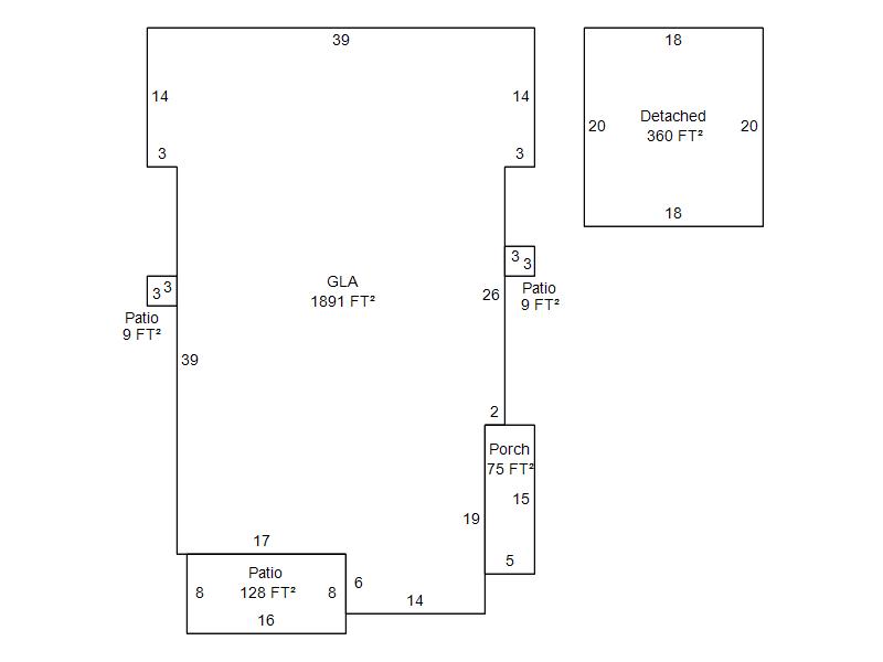
| Bldg # | Vacant/Improved Land | Bldg Description | Year Built | SqFt | # Stories | |
|
1 |
Improved |
Duplex One Story |
1930 |
1,891 |
1 Stories |
|