|
|
|
| Larry Stein Oklahoma County Assessor (405) 713-1200 - Public Access System |
|
|
|
|
|
|
| Real Property Display - Screen Produced 4/12/2026 6:10:02 PM | ||||
|---|---|---|---|---|
| Account: R064141970 | Type: Residential | Location: |
2648 NW 11TH ST |
|
| Building Name/Occupant: |
|
OKLAHOMA CITY |
||
| Owner Name 1: | DECKER LINDA M |
Parcel PIN#: |
2719-06-414-1970 |
|
| Owner Name 2: | 1/4 section #: |
2719 |
||
| Owner Name 3: | Parent Acct: |
|
||
| Billing Address: | 2648 NW 11TH ST | Tax District: |
|
|
| City, State, Zip | OKLAHOMA CITY, OK 73107-5414 | School System: |
Oklahoma City #89 |
|
|
Country: (If noted) |
Land Size: |
0.1435 Acres |
||
|
Land Value: 27,188 |
|
|||
|
Sect 30-T12N-R3W Qtr SW |
MILLERS BOULEVARD
Block
009
Lot
000
|
|||
| Full Legal Description: MILLERS BOULEVARD 009 000 W50FT LOT 8 & W50FT OF N 1/2 LOT 9 |
| Photo & Sketch (if available) | Comp Sales (ordered by relevancy) |
|
||||||||||||||||||
|
||||||||||||||||||||
| Value History (*The County Treasurer 405-713-1300 posts & collects actual tax amounts. Contact information HERE) | |||||||||||||
|---|---|---|---|---|---|---|---|---|---|---|---|---|---|
| Year | Market Value | Taxable Mkt Value | Gross Assessed | Exemption | Net Assessed | Millage | Est. Tax | Tax Savings | |||||
|
2026 |
172,500 |
84,743 |
9,321 |
1,000 |
8,321 |
122.90 |
$1,023 |
$1,309 |
|||||
|
2025 |
175,000 |
84,743 |
9,321 |
1,000 |
8,321 |
122.90 |
$1,023 |
$1,343 |
|||||
|
2024 |
169,500 |
84,743 |
9,321 |
1,000 |
8,321 |
123.89 |
$1,031 |
$1,279 |
|||||
|
2023 |
163,500 |
84,743 |
9,321 |
1,000 |
8,321 |
122.82 |
$1,022 |
$1,187 |
|||||
|
2022 |
128,500 |
84,743 |
9,321 |
1,000 |
8,321 |
117.63 |
$979 |
$684 |
|||||
| Property Account Status/Adjustments/Exemptions | ||
|---|---|---|
| Account # | Exemption Description | Amount |
|
R064141970 |
Freeze Senior Valuation |
0 |
|
R064141970 |
3% Cap Homestead |
0 |
|
R064141970 |
Homestead |
1,000 |
| Property Deed Transaction History (Recorded in the County Clerk's Office) | |||||||
|---|---|---|---|---|---|---|---|
| Date | Type | Book | Page | Price | Grantor | Grantee | |
|
6/25/1993 |
|
Historical |
$28,000 |
WILSON BEELER |
DECKER LINDA M |
||
|
2/24/1993 |
|
Historical |
$17,150 |
SECRETARY OF HOUSING |
WILSON BEELER |
||
|
11/17/1992 |
|
Historical |
$0 |
NOVOTNY TIMOTHY MICHAEL |
SECRETARY OF HOUSING |
||
|
10/3/1990 |
|
Historical |
$30,000 |
MOORE R J & GRACE |
NOVOTNY TIMOTHY MICHAEL |
||
|
11/11/1911 |
|
Historical |
$0 |
|
MOORE R J & GRACE |
||
| Last Mailed Notice of Value (N.O.V.) Information/History | ||||||||
|---|---|---|---|---|---|---|---|---|
| Year | Date | Market Value | Taxable Market Value | Gross Assessed | Exemption | Net Assessed | ||
|
2025 |
02/14/2025 |
175,000 |
84,743 |
9,321 |
1,000 |
8,321 |
||
|
2024 |
02/13/2024 |
169,500 |
84,743 |
9,321 |
1,000 |
8,321 |
||
|
2023 |
02/14/2023 |
163,500 |
84,743 |
9,321 |
1,000 |
8,321 |
||
|
2022 |
03/15/2022 |
128,500 |
84,743 |
9,321 |
1,000 |
8,321 |
||
|
2021 |
03/19/2021 |
117,000 |
84,743 |
9,321 |
1,000 |
8,321 |
||
| Property Building Permit History | |||||||||||
|---|---|---|---|---|---|---|---|---|---|---|---|
| Issued | Permit # | Provided by | Bldg # | Description | Est Construction Cost | Status | |||||
| No Building Permit records returned. | |||||||||||
| Click button on building number to access detailed information: | ||||||
|---|---|---|---|---|---|---|
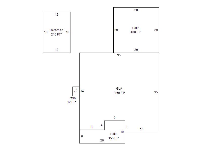
| Bldg # | Vacant/Improved Land | Bldg Description | Year Built | SqFt | # Stories | |
|
1 |
Improved |
Ranch 1 Story |
1928 |
1,169 |
1 Stories |
|