|
|
|
| Larry Stein Oklahoma County Assessor (405) 713-1200 - Public Access System |
|
|
|
|
|
|
| Real Property Display - Screen Produced 4/12/2026 2:24:33 PM | ||||
|---|---|---|---|---|
| Account: R063746210 | Type: Residential | Location: |
2428 NW 18TH ST |
|
| Building Name/Occupant: |
|
OKLAHOMA CITY |
||
| Owner Name 1: | BRUNGARDT DAVIS ZAYIN RENE |
Parcel PIN#: |
2717-06-374-6210 |
|
| Owner Name 2: | 1/4 section #: |
2717 |
||
| Owner Name 3: | Parent Acct: |
|
||
| Billing Address: | 2428 NW 18TH ST | Tax District: |
|
|
| City, State, Zip | OKLAHOMA CITY, OK 73107-4027 | School System: |
Oklahoma City #89 |
|
|
Country: (If noted) |
Land Size: |
0.1148 Acres |
||
|
Land Value: 21,750 |
|
|||
|
Sect 30-T12N-R3W Qtr NE |
AURORA ADDITION
Block
016
Lot
001
|
|||
| Full Legal Description: AURORA ADDITION 016 001 BEG AT A PT ON N LINE LOT 1 50FT E OF NW/C LT 1 TH S & PAR WITH W LINE LOT 1 100FT E50FT N100FT W50FT TO BEG |
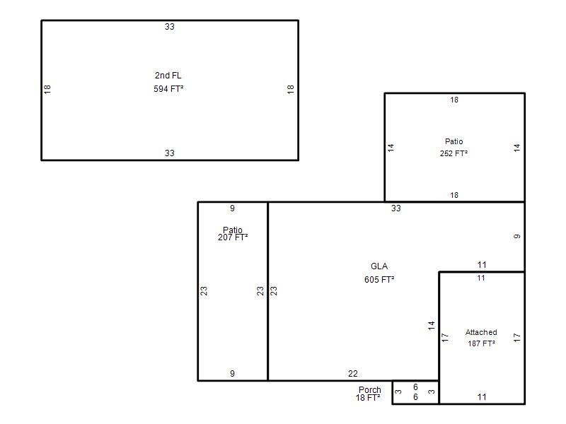
| Photo & Sketch (if available) | Comp Sales (ordered by relevancy) |
|
||||||||||||||||||
|
||||||||||||||||||||
| Value History (*The County Treasurer 405-713-1300 posts & collects actual tax amounts. Contact information HERE) | |||||||||||||
|---|---|---|---|---|---|---|---|---|---|---|---|---|---|
| Year | Market Value | Taxable Mkt Value | Gross Assessed | Exemption | Net Assessed | Millage | Est. Tax | Tax Savings | |||||
|
2026 |
217,500 |
217,500 |
23,925 |
0 |
23,925 |
122.90 |
$2,940 |
$0 |
|||||
|
2025 |
221,500 |
202,583 |
22,284 |
0 |
22,284 |
122.90 |
$2,739 |
$256 |
|||||
|
2024 |
225,000 |
192,937 |
21,222 |
0 |
21,222 |
123.89 |
$2,629 |
$437 |
|||||
|
2023 |
221,000 |
183,750 |
20,212 |
0 |
20,212 |
122.82 |
$2,482 |
$503 |
|||||
|
2022 |
175,000 |
175,000 |
19,250 |
0 |
19,250 |
117.63 |
$2,264 |
$0 |
|||||
| Property Account Status/Adjustments/Exemptions | ||||||
|---|---|---|---|---|---|---|
| Account # | Exemption Description | Amount | ||||
| No adjustment/exemption records returned. | ||||||
| Property Deed Transaction History (Recorded in the County Clerk's Office) | ||||||||||
|---|---|---|---|---|---|---|---|---|---|---|
| Date | Type | Book | Page | Price | Grantor | Grantee | ||||
|
11/20/2025 |
|
Deeds |
$199,000 |
KEEGAN JOSHUA DEAN |
BRUNGARDT DAVIS ZAYIN RENE |
|||||
|
7/2/2021 |
|
Deeds |
$180,000 |
NEAL KALYN B |
KEEGAN JOSHUA DEAN |
|||||
|
12/21/2016 |
|
Deeds |
$140,000 |
OCONNOR AMANDA N |
NEAL KALYN B |
|||||
|
12/30/2010 |
|
Deeds |
$105,000 |
CORNERSTONE ACQUISTIONS LLC |
OCONNOR AMANDA N |
|||||
|
6/9/2010 |
|
Mult Parcel |
$95,000 |
GRAHAM PROPERTIES INC |
CORNERSTONE ACQUISTIONS LLC |
|||||
| Last Mailed Notice of Value (N.O.V.) Information/History | ||||||||
|---|---|---|---|---|---|---|---|---|
| Year | Date | Market Value | Taxable Market Value | Gross Assessed | Exemption | Net Assessed | ||
|
2026 |
02/23/2026 |
217,500 |
217,500 |
23,925 |
0 |
23,925 |
||
|
2025 |
02/14/2025 |
221,500 |
202,583 |
22,284 |
0 |
22,284 |
||
|
2024 |
02/13/2024 |
225,000 |
192,937 |
21,222 |
0 |
21,222 |
||
|
2023 |
02/14/2023 |
221,000 |
183,750 |
20,212 |
0 |
20,212 |
||
|
2022 |
03/15/2022 |
175,000 |
175,000 |
19,250 |
0 |
19,250 |
||
| Property Building Permit History | |||||||||||
|---|---|---|---|---|---|---|---|---|---|---|---|
| Issued | Permit # | Provided by | Bldg # | Description | Est Construction Cost | Status | |||||
| No Building Permit records returned. | |||||||||||
| Click button on building number to access detailed information: | ||||||
|---|---|---|---|---|---|---|
| Bldg # | Vacant/Improved Land | Bldg Description | Year Built | SqFt | # Stories | |
|
1 |
Improved |
2 Story |
1938 |
1,199 |
2 Stories |
|