|
|
|
| Larry Stein Oklahoma County Assessor (405) 713-1200 - Public Access System |
|
|
|
|
|
|
| Real Property Display - Screen Produced 4/12/2026 6:08:44 PM | ||||
|---|---|---|---|---|
| Account: R064142190 | Type: Residential | Location: |
2629 NW 11TH ST |
|
| Building Name/Occupant: |
|
OKLAHOMA CITY |
||
| Owner Name 1: | ELROD CALEB |
Parcel PIN#: |
2719-06-414-2190 |
|
| Owner Name 2: | ELROD TAMARA | 1/4 section #: |
2719 |
|
| Owner Name 3: | Parent Acct: |
|
||
| Billing Address: | 2740 E 13TH ST | Tax District: |
|
|
| City, State, Zip | TULSA, OK 74104-4324 | School System: |
Oklahoma City #89 |
|
|
Country: (If noted) |
Land Size: |
0.1722 Acres |
||
|
Land Value: 32,625 |
|
|||
|
Sect 30-T12N-R3W Qtr SW |
MILLERS BOULEVARD
Block
010
Lot
000
|
|||
| Full Legal Description: MILLERS BOULEVARD 010 000 E45FT OF LOT 12 & W5FT LOT 13 |
| Photo & Sketch (if available) | Comp Sales (ordered by relevancy) |
|
||||||||||||||||||
|
||||||||||||||||||||
| Value History (*The County Treasurer 405-713-1300 posts & collects actual tax amounts. Contact information HERE) | |||||||||||||
|---|---|---|---|---|---|---|---|---|---|---|---|---|---|
| Year | Market Value | Taxable Mkt Value | Gross Assessed | Exemption | Net Assessed | Millage | Est. Tax | Tax Savings | |||||
|
2026 |
218,500 |
218,500 |
24,035 |
0 |
24,035 |
122.90 |
$2,954 |
$0 |
|||||
|
2025 |
224,500 |
224,500 |
24,695 |
0 |
24,695 |
122.90 |
$3,035 |
$0 |
|||||
|
2024 |
220,500 |
220,500 |
24,255 |
0 |
24,255 |
123.89 |
$3,005 |
$0 |
|||||
|
2023 |
214,000 |
214,000 |
23,540 |
0 |
23,540 |
122.82 |
$2,891 |
$0 |
|||||
|
2022 |
214,500 |
214,500 |
23,595 |
0 |
23,595 |
117.63 |
$2,775 |
$0 |
|||||
| Property Account Status/Adjustments/Exemptions | ||||||
|---|---|---|---|---|---|---|
| Account # | Exemption Description | Amount | ||||
| No adjustment/exemption records returned. | ||||||
| Property Deed Transaction History (Recorded in the County Clerk's Office) | ||||||||||
|---|---|---|---|---|---|---|---|---|---|---|
| Date | Type | Book | Page | Price | Grantor | Grantee | ||||
|
11/24/2025 |
|
Deeds |
$229,000 |
BYRNE WILLIAM O |
ELROD CALEB |
|||||
|
6/30/2021 |
|
Deeds |
$206,000 |
BYRNE RONALD JOSEPH |
BYRNE WILLIAM O |
|||||
|
6/7/2021 |
|
Deeds |
$217,000 |
SHEPHERD MATTHEW |
BYRNE RONALD JOSEPH |
|||||
|
2/5/2008 |
|
Deeds |
$89,000 |
WATSON TONY D |
SHEPHERD MATTHEW |
|||||
|
1/31/2008 |
|
Deeds |
$0 |
WATSON CURTIS R |
WATSON TONY D |
|||||
| Last Mailed Notice of Value (N.O.V.) Information/History | ||||||||
|---|---|---|---|---|---|---|---|---|
| Year | Date | Market Value | Taxable Market Value | Gross Assessed | Exemption | Net Assessed | ||
|
2025 |
02/14/2025 |
224,500 |
224,500 |
24,695 |
0 |
24,695 |
||
|
2024 |
02/13/2024 |
220,500 |
220,500 |
24,255 |
0 |
24,255 |
||
|
2022 |
03/15/2022 |
214,500 |
214,500 |
23,595 |
0 |
23,595 |
||
|
2021 |
03/19/2021 |
116,000 |
103,606 |
11,396 |
0 |
11,396 |
||
|
2020 |
03/10/2020 |
105,000 |
98,673 |
10,854 |
0 |
10,854 |
||
| Property Building Permit History | |||||||||||
|---|---|---|---|---|---|---|---|---|---|---|---|
| Issued | Permit # | Provided by | Bldg # | Description | Est Construction Cost | Status | |||||
| No Building Permit records returned. | |||||||||||
| Click button on building number to access detailed information: | ||||||
|---|---|---|---|---|---|---|
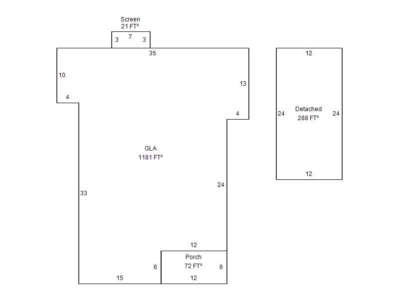
| Bldg # | Vacant/Improved Land | Bldg Description | Year Built | SqFt | # Stories | |
|
1 |
Improved |
Ranch 1 Story |
1930 |
1,181 |
1 Stories |
|