|
|
|
| Larry Stein Oklahoma County Assessor (405) 713-1200 - Public Access System |
|
|
|
|
|
|
| Real Property Display - Screen Produced 4/12/2026 6:10:02 PM | ||||
|---|---|---|---|---|
| Account: R064142250 | Type: Residential | Location: |
1209 N LINN AVE |
|
| Building Name/Occupant: |
|
OKLAHOMA CITY |
||
| Owner Name 1: | KNOX KEELAN |
Parcel PIN#: |
2719-06-414-2250 |
|
| Owner Name 2: | 1/4 section #: |
2719 |
||
| Owner Name 3: | Parent Acct: |
|
||
| Billing Address: | 1209 N LINN AVE | Tax District: |
|
|
| City, State, Zip | OKLAHOMA CITY, OK 73107 | School System: |
Oklahoma City #89 |
|
|
Country: (If noted) |
Land Size: |
0.0837 Acres |
||
|
Land Value: 15,862 |
|
|||
|
Sect 30-T12N-R3W Qtr SW |
MILLERS BOULEVARD
Block
010
Lot
000
|
|||
| Full Legal Description: MILLERS BOULEVARD 010 000 N44FT OF E4FT OF LOT 16 & N44FT OF LOT 17 & S7FT OF E50FT OF LOT 1 |
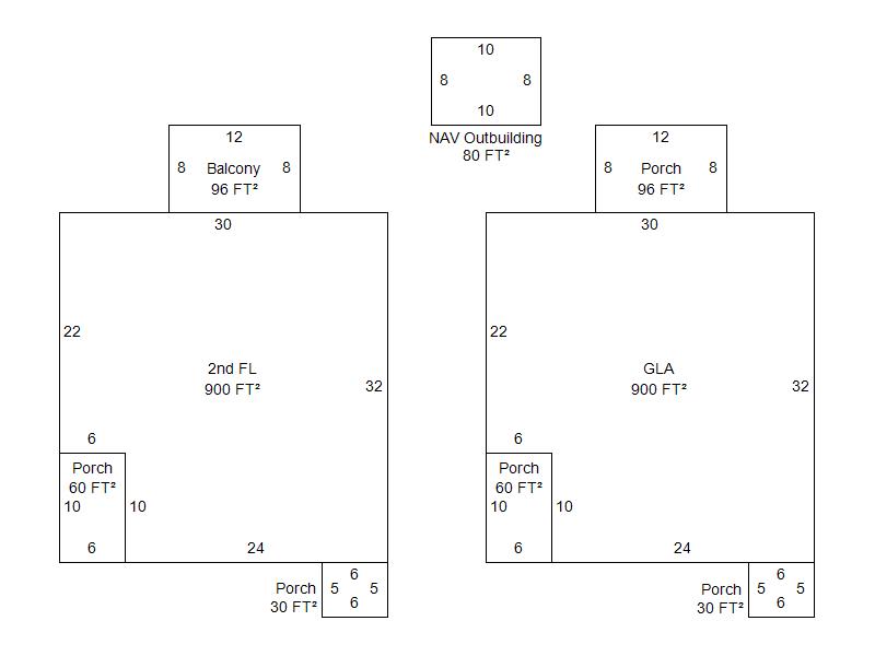
| Photo & Sketch (if available) | Comp Sales (ordered by relevancy) |
|
||||||||||||||||||
|
||||||||||||||||||||
| Value History (*The County Treasurer 405-713-1300 posts & collects actual tax amounts. Contact information HERE) | |||||||||||||
|---|---|---|---|---|---|---|---|---|---|---|---|---|---|
| Year | Market Value | Taxable Mkt Value | Gross Assessed | Exemption | Net Assessed | Millage | Est. Tax | Tax Savings | |||||
|
2026 |
228,000 |
209,066 |
22,997 |
0 |
22,997 |
122.90 |
$2,826 |
$256 |
|||||
|
2025 |
226,500 |
199,111 |
21,901 |
0 |
21,901 |
122.90 |
$2,692 |
$370 |
|||||
|
2024 |
218,500 |
189,630 |
20,859 |
0 |
20,859 |
123.89 |
$2,584 |
$393 |
|||||
|
2023 |
213,000 |
180,600 |
19,866 |
0 |
19,866 |
122.82 |
$2,440 |
$438 |
|||||
|
2022 |
172,000 |
172,000 |
18,920 |
0 |
18,920 |
117.63 |
$2,226 |
$0 |
|||||
| Property Account Status/Adjustments/Exemptions | ||
|---|---|---|
| Account # | Exemption Description | Amount |
|
R064142250 |
5% Capped Account |
0 |
| Property Deed Transaction History (Recorded in the County Clerk's Office) | ||||||||||
|---|---|---|---|---|---|---|---|---|---|---|
| Date | Type | Book | Page | Price | Grantor | Grantee | ||||
|
9/18/2019 |
|
Deeds |
$157,000 |
KING SETH C |
KNOX KEELAN |
|||||
|
9/30/2013 |
|
Deeds |
$0 |
KING LADONNA KING SETH C |
KING SETH C |
|||||
|
8/13/2013 |
|
Deeds |
$0 |
KING LADONA |
KING LADONA KING SETH C |
|||||
|
3/20/2013 |
|
Hmstd Off & |
$0 |
NEW MILLENIUM REALTY CORP |
KING LADONA |
|||||
|
8/13/2012 |
|
Deeds |
$0 |
KING LADONA |
NEW MILLENIUM REALTY CORP |
|||||
| Last Mailed Notice of Value (N.O.V.) Information/History | ||||||||
|---|---|---|---|---|---|---|---|---|
| Year | Date | Market Value | Taxable Market Value | Gross Assessed | Exemption | Net Assessed | ||
|
2026 |
02/23/2026 |
228,000 |
209,066 |
22,997 |
0 |
22,997 |
||
|
2025 |
02/14/2025 |
226,500 |
199,111 |
21,901 |
0 |
21,901 |
||
|
2024 |
02/13/2024 |
218,500 |
189,630 |
20,859 |
0 |
20,859 |
||
|
2023 |
02/14/2023 |
213,000 |
180,600 |
19,866 |
0 |
19,866 |
||
|
2022 |
03/15/2022 |
172,000 |
172,000 |
18,920 |
0 |
18,920 |
||
| Property Building Permit History | |||||||||||
|---|---|---|---|---|---|---|---|---|---|---|---|
| Issued | Permit # | Provided by | Bldg # | Description | Est Construction Cost | Status | |||||
| No Building Permit records returned. | |||||||||||
| Click button on building number to access detailed information: | ||||||
|---|---|---|---|---|---|---|
| Bldg # | Vacant/Improved Land | Bldg Description | Year Built | SqFt | # Stories | |
|
1 |
Improved |
2 Story |
1930 |
1,800 |
2 Stories |
|