|
|
|
| Larry Stein Oklahoma County Assessor (405) 713-1200 - Public Access System |
|
|
|
|
|
|
| Real Property Display - Screen Produced 4/14/2026 4:43:13 AM | ||||
|---|---|---|---|---|
| Account: R064142290 | Type: Residential | Location: |
2612 NW 13TH ST |
|
| Building Name/Occupant: |
|
OKLAHOMA CITY |
||
| Owner Name 1: | KENNEDYE CHARLES BENTON |
Parcel PIN#: |
2719-06-414-2290 |
|
| Owner Name 2: | 1/4 section #: |
2719 |
||
| Owner Name 3: | Parent Acct: |
|
||
| Billing Address: | 2612 NW 13TH ST | Tax District: |
|
|
| City, State, Zip | OKLAHOMA CITY, OK 73107 | School System: |
Oklahoma City #89 |
|
|
Country: (If noted) |
UNITED STATES |
Land Size: |
0.1722 Acres |
|
|
Land Value: 32,625 |
|
|||
|
Sect 30-T12N-R3W Qtr SW |
MILLERS BOULEVARD
Block
011
Lot
003
|
|||
| Full Legal Description: MILLERS BOULEVARD 011 003 W50FT OF E58FT |
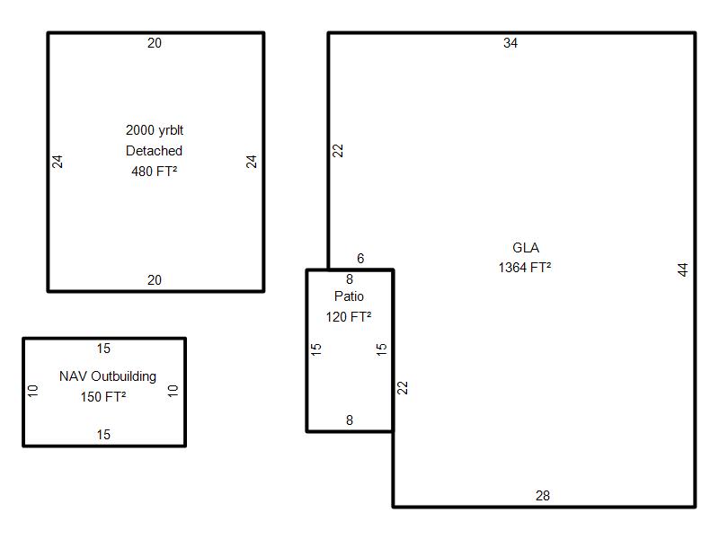
| Photo & Sketch (if available) | Comp Sales (ordered by relevancy) |
|
||||||||||||||||||
|
||||||||||||||||||||
| Value History (*The County Treasurer 405-713-1300 posts & collects actual tax amounts. Contact information HERE) | |||||||||||||
|---|---|---|---|---|---|---|---|---|---|---|---|---|---|
| Year | Market Value | Taxable Mkt Value | Gross Assessed | Exemption | Net Assessed | Millage | Est. Tax | Tax Savings | |||||
|
2026 |
259,000 |
223,830 |
24,620 |
0 |
24,620 |
122.90 |
$3,026 |
$475 |
|||||
|
2025 |
266,000 |
213,172 |
23,448 |
0 |
23,448 |
122.90 |
$2,882 |
$714 |
|||||
|
2024 |
262,500 |
203,021 |
22,331 |
0 |
22,331 |
123.89 |
$2,767 |
$811 |
|||||
|
2023 |
254,000 |
193,354 |
21,268 |
0 |
21,268 |
122.82 |
$2,612 |
$819 |
|||||
|
2022 |
210,500 |
184,147 |
20,255 |
0 |
20,255 |
117.63 |
$2,383 |
$341 |
|||||
| Property Account Status/Adjustments/Exemptions | ||
|---|---|---|
| Account # | Exemption Description | Amount |
|
R064142290 |
5% Capped Account |
0 |
| Property Deed Transaction History (Recorded in the County Clerk's Office) | ||||||||||
|---|---|---|---|---|---|---|---|---|---|---|
| Date | Type | Book | Page | Price | Grantor | Grantee | ||||
|
8/10/2012 |
|
Deeds |
$138,000 |
RAINES ALEXANDER R |
KENNEDYE CHARLES BENTON |
|||||
|
6/1/2009 |
|
Deeds |
$133,500 |
JOHNSON JEFFREY HARRIS NETA & GARY GENE |
RAINES ALEXANDER R |
|||||
|
10/27/2008 |
|
Deeds |
$75,000 |
WELLS FARGO BANK |
JOHNSON JEFFREY HARRIS NETA & GARY GENE |
|||||
|
6/23/2008 |
|
Hmstd Off & |
$0 |
KING DOROTHY |
WELLS FARGO BANK |
|||||
|
5/21/2004 |
|
Deeds |
$0 |
GILLETTE JESSICA HICKMAN KING DOROTHY |
KING DOROTHY |
|||||
| Last Mailed Notice of Value (N.O.V.) Information/History | ||||||||
|---|---|---|---|---|---|---|---|---|
| Year | Date | Market Value | Taxable Market Value | Gross Assessed | Exemption | Net Assessed | ||
|
2026 |
02/23/2026 |
259,000 |
223,830 |
24,620 |
0 |
24,620 |
||
|
2025 |
02/14/2025 |
266,000 |
213,172 |
23,448 |
0 |
23,448 |
||
|
2024 |
02/13/2024 |
262,500 |
203,021 |
22,331 |
0 |
22,331 |
||
|
2023 |
02/14/2023 |
254,000 |
193,354 |
21,268 |
0 |
21,268 |
||
|
2022 |
03/15/2022 |
210,500 |
184,147 |
20,255 |
0 |
20,255 |
||
| Property Building Permit History | ||||||
|---|---|---|---|---|---|---|
| Issued | Permit # | Provided by | Bldg # | Description | Est Construction Cost | Status |
|
9/28/2000 |
10194086 |
OKLAHOMA CITY |
1 |
Garage |
12,500 |
Inactive |
| Click button on building number to access detailed information: | ||||||
|---|---|---|---|---|---|---|
| Bldg # | Vacant/Improved Land | Bldg Description | Year Built | SqFt | # Stories | |
|
1 |
Improved |
Ranch 1 Story |
1931 |
1,364 |
1 Stories |
|