|
|
|
| Larry Stein Oklahoma County Assessor (405) 713-1200 - Public Access System |
|
|
|
|
|
|
| Real Property Display - Screen Produced 4/12/2026 6:07:41 PM | ||||
|---|---|---|---|---|
| Account: R064142360 | Type: Residential | Location: |
2642 NW 13TH ST |
|
| Building Name/Occupant: |
|
OKLAHOMA CITY |
||
| Owner Name 1: | MID AMERICA INDUSTRIES OPERATING LLC |
Parcel PIN#: |
2719-06-414-2360 |
|
| Owner Name 2: | 1/4 section #: |
2719 |
||
| Owner Name 3: | Parent Acct: |
|
||
| Billing Address: | 1409 N MILLER BLVD | Tax District: |
|
|
| City, State, Zip | OKLAHOMA CITY, OK 73107 | School System: |
Oklahoma City #89 |
|
|
Country: (If noted) |
UNITED STATES |
Land Size: |
0.1722 Acres |
|
|
Land Value: 32,625 |
|
|||
|
Sect 30-T12N-R3W Qtr SW |
MILLERS BOULEVARD
Block
011
Lot
000
|
|||
| Full Legal Description: MILLERS BOULEVARD 011 000 E50FT OF LOT 8 & E50FT OF N50FT OF LOT 9 |
| Photo & Sketch (if available) | Comp Sales (ordered by relevancy) |
|
||||||||||||||||||
|
||||||||||||||||||||
| Value History (*The County Treasurer 405-713-1300 posts & collects actual tax amounts. Contact information HERE) | |||||||||||||
|---|---|---|---|---|---|---|---|---|---|---|---|---|---|
| Year | Market Value | Taxable Mkt Value | Gross Assessed | Exemption | Net Assessed | Millage | Est. Tax | Tax Savings | |||||
|
2026 |
241,000 |
208,317 |
22,914 |
0 |
22,914 |
122.90 |
$2,816 |
$442 |
|||||
|
2025 |
247,500 |
198,398 |
21,823 |
0 |
21,823 |
122.90 |
$2,682 |
$664 |
|||||
|
2024 |
243,000 |
188,951 |
20,783 |
0 |
20,783 |
123.89 |
$2,575 |
$737 |
|||||
|
2023 |
236,000 |
179,954 |
19,794 |
0 |
19,794 |
122.82 |
$2,431 |
$757 |
|||||
|
2022 |
194,000 |
171,385 |
18,850 |
0 |
18,850 |
117.63 |
$2,218 |
$293 |
|||||
| Property Account Status/Adjustments/Exemptions | ||
|---|---|---|
| Account # | Exemption Description | Amount |
|
R064142360 |
5% Capped Account |
0 |
| Property Deed Transaction History (Recorded in the County Clerk's Office) | ||||||||||
|---|---|---|---|---|---|---|---|---|---|---|
| Date | Type | Book | Page | Price | Grantor | Grantee | ||||
|
6/12/2018 |
|
Hmstd Off & |
$0 |
HELTZEN ROLF |
MID AMERICA INDUSTRIES OPERATING LLC |
|||||
|
9/7/2016 |
|
Deeds |
$145,000 |
ROSS KIRK B |
HELTZEN ROLF |
|||||
|
4/10/2012 |
|
Deeds |
$130,000 |
HALL KIMBERLYN |
ROSS KIRK B |
|||||
|
10/1/2007 |
|
Deeds |
$112,000 |
OBRIEN ELIZABETH A |
HALL KIMBERLYN |
|||||
|
6/28/2002 |
|
Deeds |
$78,000 |
RICHARDSON ROBERT D TRS RICHARDSON ROBERT D FAMILY TRUST |
OBRIEN ELIZABETH A |
|||||
| Last Mailed Notice of Value (N.O.V.) Information/History | ||||||||
|---|---|---|---|---|---|---|---|---|
| Year | Date | Market Value | Taxable Market Value | Gross Assessed | Exemption | Net Assessed | ||
|
2026 |
02/23/2026 |
241,000 |
208,317 |
22,914 |
0 |
22,914 |
||
|
2025 |
02/14/2025 |
247,500 |
198,398 |
21,823 |
0 |
21,823 |
||
|
2024 |
02/13/2024 |
243,000 |
188,951 |
20,783 |
0 |
20,783 |
||
|
2023 |
02/14/2023 |
236,000 |
179,954 |
19,794 |
0 |
19,794 |
||
|
2022 |
03/15/2022 |
194,000 |
171,385 |
18,850 |
0 |
18,850 |
||
| Property Building Permit History | |||||||||||
|---|---|---|---|---|---|---|---|---|---|---|---|
| Issued | Permit # | Provided by | Bldg # | Description | Est Construction Cost | Status | |||||
| No Building Permit records returned. | |||||||||||
| Click button on building number to access detailed information: | ||||||
|---|---|---|---|---|---|---|
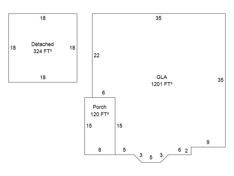
| Bldg # | Vacant/Improved Land | Bldg Description | Year Built | SqFt | # Stories | |
|
1 |
Improved |
Ranch 1 Story |
1930 |
1,201 |
1 Stories |
|