|
|
|
| Larry Stein Oklahoma County Assessor (405) 713-1200 - Public Access System |
|
|
|
|
|
|
| Real Property Display - Screen Produced 4/12/2026 8:06:57 PM | ||||
|---|---|---|---|---|
| Account: R064142400 | Type: Residential | Location: |
2647 NW 12TH ST |
|
| Building Name/Occupant: |
|
OKLAHOMA CITY |
||
| Owner Name 1: | MCNAUGHT JACOBY J |
Parcel PIN#: |
2719-06-414-2400 |
|
| Owner Name 2: | 1/4 section #: |
2719 |
||
| Owner Name 3: | Parent Acct: |
|
||
| Billing Address: | 2647 NW 12TH ST | Tax District: |
|
|
| City, State, Zip | OKLAHOMA CITY, OK 73107-5419 | School System: |
Oklahoma City #89 |
|
|
Country: (If noted) |
Land Size: |
0.1722 Acres |
||
|
Land Value: 32,625 |
|
|||
|
Sect 30-T12N-R3W Qtr SW |
MILLERS BOULEVARD
Block
011
Lot
000
|
|||
| Full Legal Description: MILLERS BOULEVARD 011 000 E50FT OF W100FT OF S 1/2 OF LOT 9 E50FT OF W100FT LOT 10 |
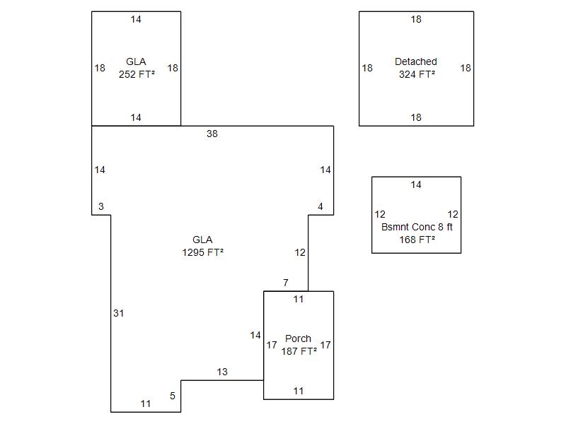
| Photo & Sketch (if available) | Comp Sales (ordered by relevancy) |
|
||||||||||||||||||
|
||||||||||||||||||||
| Value History (*The County Treasurer 405-713-1300 posts & collects actual tax amounts. Contact information HERE) | |||||||||||||
|---|---|---|---|---|---|---|---|---|---|---|---|---|---|
| Year | Market Value | Taxable Mkt Value | Gross Assessed | Exemption | Net Assessed | Millage | Est. Tax | Tax Savings | |||||
|
2026 |
295,000 |
210,518 |
23,156 |
1,000 |
22,156 |
122.90 |
$2,723 |
$1,265 |
|||||
|
2025 |
301,500 |
204,387 |
22,481 |
1,000 |
21,481 |
122.90 |
$2,640 |
$1,436 |
|||||
|
2024 |
296,000 |
198,434 |
21,827 |
1,000 |
20,827 |
123.89 |
$2,580 |
$1,454 |
|||||
|
2023 |
285,500 |
192,655 |
21,191 |
1,000 |
20,191 |
122.82 |
$2,480 |
$1,377 |
|||||
|
2022 |
235,500 |
187,044 |
20,573 |
1,000 |
19,573 |
117.63 |
$2,303 |
$745 |
|||||
| Property Account Status/Adjustments/Exemptions | ||
|---|---|---|
| Account # | Exemption Description | Amount |
|
R064142400 |
3% Cap Homestead |
0 |
|
R064142400 |
Homestead |
1,000 |
| Property Deed Transaction History (Recorded in the County Clerk's Office) | |||||||
|---|---|---|---|---|---|---|---|
| Date | Type | Book | Page | Price | Grantor | Grantee | |
|
8/5/2005 |
|
Deeds |
$119,500 |
KRAFT MEGAN A |
MCNAUGHT JACOBY J |
||
|
5/24/2004 |
|
Deeds |
$83,000 |
STUBBLEFIELD MARK W |
KRAFT MEGAN A |
||
|
6/26/1997 |
|
Historical |
$45,500 |
SAVAGE ALTON G |
STUBBLEFIELD MARK W |
||
|
6/6/1994 |
|
Historical |
$0 |
SAVAGE ALTON G & MARY C |
SAVAGE ALTON G |
||
|
7/1/1979 |
|
Historical |
$0 |
|
SAVAGE ALTON G & MARY C |
||
| Last Mailed Notice of Value (N.O.V.) Information/History | ||||||||
|---|---|---|---|---|---|---|---|---|
| Year | Date | Market Value | Taxable Market Value | Gross Assessed | Exemption | Net Assessed | ||
|
2026 |
02/23/2026 |
295,000 |
210,518 |
23,156 |
1,000 |
22,156 |
||
|
2025 |
02/14/2025 |
301,500 |
204,387 |
22,481 |
1,000 |
21,481 |
||
|
2024 |
02/13/2024 |
296,000 |
198,434 |
21,827 |
1,000 |
20,827 |
||
|
2023 |
02/14/2023 |
285,500 |
192,655 |
21,191 |
1,000 |
20,191 |
||
|
2022 |
03/15/2022 |
235,500 |
187,044 |
20,573 |
1,000 |
19,573 |
||
| Property Building Permit History | |||||||||||
|---|---|---|---|---|---|---|---|---|---|---|---|
| Issued | Permit # | Provided by | Bldg # | Description | Est Construction Cost | Status | |||||
| No Building Permit records returned. | |||||||||||
| Click button on building number to access detailed information: | ||||||
|---|---|---|---|---|---|---|
| Bldg # | Vacant/Improved Land | Bldg Description | Year Built | SqFt | # Stories | |
|
1 |
Improved |
Ranch 1 Story |
1928 |
1,547 |
1 Stories |
|