|
|
|
| Larry Stein Oklahoma County Assessor (405) 713-1200 - Public Access System |
|
|
|
|
|
|
| Real Property Display - Screen Produced 4/12/2026 4:39:32 PM | ||||
|---|---|---|---|---|
| Account: R060042850 | Type: Residential | Location: |
2624 NW 15TH ST |
|
| Building Name/Occupant: |
|
OKLAHOMA CITY |
||
| Owner Name 1: | ROMERO JESSCIA M |
Parcel PIN#: |
2719-06-004-2850 |
|
| Owner Name 2: | GOLDSBERRY KOLE D | 1/4 section #: |
2719 |
|
| Owner Name 3: | Parent Acct: |
|
||
| Billing Address: | 2624 NW 15TH ST | Tax District: |
|
|
| City, State, Zip | OKLAHOMA CITY, OK 73107-4824 | School System: |
Oklahoma City #89 |
|
|
Country: (If noted) |
Land Size: |
0.1722 Acres |
||
|
Land Value: 32,625 |
|
|||
|
Sect 30-T12N-R3W Qtr SW |
MILLERS BOULEVARD AMD
Block
013
Lot
007
|
|||
| Full Legal Description: MILLERS BOULEVARD AMD 013 007 |
| Photo & Sketch (if available) | Comp Sales (ordered by relevancy) |
|
||||||||||||||||||
|
||||||||||||||||||||
| Value History (*The County Treasurer 405-713-1300 posts & collects actual tax amounts. Contact information HERE) | |||||||||||||
|---|---|---|---|---|---|---|---|---|---|---|---|---|---|
| Year | Market Value | Taxable Mkt Value | Gross Assessed | Exemption | Net Assessed | Millage | Est. Tax | Tax Savings | |||||
|
2026 |
318,000 |
318,000 |
34,980 |
0 |
34,980 |
122.90 |
$4,299 |
$0 |
|||||
|
2025 |
327,000 |
327,000 |
35,970 |
0 |
35,970 |
122.90 |
$4,421 |
$0 |
|||||
|
2024 |
320,500 |
320,500 |
35,255 |
0 |
35,255 |
123.89 |
$4,368 |
$0 |
|||||
|
2023 |
386,000 |
386,000 |
42,460 |
0 |
42,460 |
122.82 |
$5,215 |
$0 |
|||||
|
2022 |
252,500 |
211,447 |
23,258 |
1,000 |
22,258 |
117.63 |
$2,618 |
$649 |
|||||
| Property Account Status/Adjustments/Exemptions | ||
|---|---|---|
| Account # | Exemption Description | Amount |
|
R060042850 |
5% Capped Account |
0 |
| Property Deed Transaction History (Recorded in the County Clerk's Office) | ||||||||||
|---|---|---|---|---|---|---|---|---|---|---|
| Date | Type | Book | Page | Price | Grantor | Grantee | ||||
|
4/24/2024 |
|
Deeds |
$360,000 |
IREY SARAH |
ROMERO JESSCIA M |
|||||
|
7/29/2022 |
|
Deeds |
$385,000 |
MIMS MICHAEL R II |
IREY SARAH |
|||||
|
1/6/2012 |
|
Deeds |
$162,500 |
WASSINK CHAD J & WHITNEY A |
MIMS MICHAEL R II |
|||||
|
6/17/2005 |
|
Deeds |
$0 |
WASSINK CHAD J & WHITNEY A WASSINK JAN L & DARLENE M |
WASSINK CHAD J & WHITNEY A |
|||||
|
5/31/2005 |
|
Deeds |
$105,000 |
TERRELL RICKEY D |
WASSINK CHAD J & WHITNEY A WASSINK JAN L & DARLENE M |
|||||
| Last Mailed Notice of Value (N.O.V.) Information/History | ||||||||
|---|---|---|---|---|---|---|---|---|
| Year | Date | Market Value | Taxable Market Value | Gross Assessed | Exemption | Net Assessed | ||
|
2025 |
02/14/2025 |
327,000 |
327,000 |
35,970 |
0 |
35,970 |
||
|
2023 |
02/14/2023 |
386,000 |
386,000 |
42,460 |
0 |
42,460 |
||
|
2022 |
03/15/2022 |
252,500 |
211,447 |
23,258 |
1,000 |
22,258 |
||
|
2021 |
03/19/2021 |
234,000 |
205,289 |
22,581 |
1,000 |
21,581 |
||
|
2020 |
03/10/2020 |
213,500 |
199,310 |
21,924 |
1,000 |
20,924 |
||
| Property Building Permit History | ||||||
|---|---|---|---|---|---|---|
| Issued | Permit # | Provided by | Bldg # | Description | Est Construction Cost | Status |
|
3/28/2018 |
|
|
1 |
Remodeled |
40,000 |
Inactive |
|
5/31/2007 |
10339481 |
OKLAHOMA CITY |
1 |
Add On |
14,000 |
Inactive |
| Click button on building number to access detailed information: | ||||||
|---|---|---|---|---|---|---|
| Bldg # | Vacant/Improved Land | Bldg Description | Year Built | SqFt | # Stories | |
|
1 |
Improved |
1½ Story Fin |
1928 |
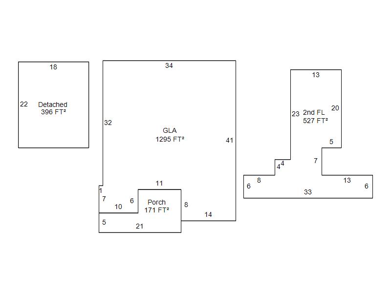
1,822 |
1.5 Stories |
|