|
|
|
| Larry Stein Oklahoma County Assessor (405) 713-1200 - Public Access System |
|
|
|
|
|
|
| Real Property Display - Screen Produced 4/14/2026 5:50:21 AM | ||||
|---|---|---|---|---|
| Account: R064144370 | Type: Residential | Location: |
1615 N MILLER BLVD |
|
| Building Name/Occupant: |
|
OKLAHOMA CITY |
||
| Owner Name 1: | STOBAUGH BOBBY |
Parcel PIN#: |
2719-06-414-4370 |
|
| Owner Name 2: | STOBAUGH KAREN | 1/4 section #: |
2719 |
|
| Owner Name 3: | Parent Acct: |
|
||
| Billing Address: | 16 COLONIAL CIR | Tax District: |
|
|
| City, State, Zip | MCALESTER, OK 74501 | School System: |
Oklahoma City #89 |
|
|
Country: (If noted) |
Land Size: |
0.1722 Acres |
||
|
Land Value: 32,625 |
|
|||
|
Sect 30-T12N-R3W Qtr SW |
MILLERS BOULEVARD
Block
015
Lot
002
|
|||
| Full Legal Description: MILLERS BOULEVARD 015 002 N50FT |
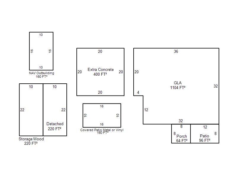
| Photo & Sketch (if available) | Comp Sales (ordered by relevancy) |
|
||||||||||||||||||
|
||||||||||||||||||||
| Value History (*The County Treasurer 405-713-1300 posts & collects actual tax amounts. Contact information HERE) | |||||||||||||
|---|---|---|---|---|---|---|---|---|---|---|---|---|---|
| Year | Market Value | Taxable Mkt Value | Gross Assessed | Exemption | Net Assessed | Millage | Est. Tax | Tax Savings | |||||
|
2026 |
241,000 |
200,931 |
22,101 |
0 |
22,101 |
122.90 |
$2,716 |
$542 |
|||||
|
2025 |
246,500 |
191,363 |
21,049 |
0 |
21,049 |
122.90 |
$2,587 |
$745 |
|||||
|
2024 |
236,500 |
182,251 |
20,047 |
0 |
20,047 |
123.89 |
$2,484 |
$739 |
|||||
|
2023 |
231,000 |
173,573 |
19,092 |
0 |
19,092 |
122.82 |
$2,345 |
$776 |
|||||
|
2022 |
188,500 |
165,308 |
18,182 |
0 |
18,182 |
117.63 |
$2,139 |
$300 |
|||||
| Property Account Status/Adjustments/Exemptions | ||||||
|---|---|---|---|---|---|---|
| Account # | Exemption Description | Amount | ||||
| No adjustment/exemption records returned. | ||||||
| Property Deed Transaction History (Recorded in the County Clerk's Office) | ||||||||||
|---|---|---|---|---|---|---|---|---|---|---|
| Date | Type | Book | Page | Price | Grantor | Grantee | ||||
|
2/3/2021 |
|
Hmstd Off & |
$ |
STOBAUGH WINE GROUP LLC |
STOBAUGH BOBBY |
|||||
|
2/24/2014 |
|
Deeds |
$119,000 |
HIGGINS JEFF IRVIN JORDAN |
STOBAUGH WINE GROUP LLC |
|||||
|
1/31/2006 |
|
Deeds |
$106,000 |
WHITAKER JULIE MARIE |
HIGGINS JEFF IRVIN JORDAN |
|||||
|
7/15/2005 |
|
Deeds |
$70,000 |
DAVISSON JERRY & MELANIE L |
WHITAKER JULIE MARIE |
|||||
|
9/30/2002 |
|
Deeds |
$75,000 |
GARNER KIMBERLEY D & JAIME M JIMINEZ |
DAVISSON JERRY & MELANIE L |
|||||
| Last Mailed Notice of Value (N.O.V.) Information/History | ||||||||
|---|---|---|---|---|---|---|---|---|
| Year | Date | Market Value | Taxable Market Value | Gross Assessed | Exemption | Net Assessed | ||
|
2026 |
02/23/2026 |
241,000 |
200,931 |
22,101 |
0 |
22,101 |
||
|
2025 |
02/14/2025 |
246,500 |
191,363 |
21,049 |
0 |
21,049 |
||
|
2024 |
02/13/2024 |
236,500 |
182,251 |
20,047 |
0 |
20,047 |
||
|
2023 |
02/14/2023 |
231,000 |
173,573 |
19,092 |
0 |
19,092 |
||
|
2022 |
03/15/2022 |
188,500 |
165,308 |
18,182 |
0 |
18,182 |
||
| Property Building Permit History | |||||||||||
|---|---|---|---|---|---|---|---|---|---|---|---|
| Issued | Permit # | Provided by | Bldg # | Description | Est Construction Cost | Status | |||||
| No Building Permit records returned. | |||||||||||
| Click button on building number to access detailed information: | ||||||
|---|---|---|---|---|---|---|
| Bldg # | Vacant/Improved Land | Bldg Description | Year Built | SqFt | # Stories | |
|
1 |
Improved |
Ranch 1 Story |
1926 |
1,104 |
1 Stories |
|