|
|
|
| Larry Stein Oklahoma County Assessor (405) 713-1200 - Public Access System |
|
|
|
|
|
|
| Real Property Display - Screen Produced 4/12/2026 8:02:45 PM | ||||
|---|---|---|---|---|
| Account: R064144760 | Type: Residential | Location: |
2727 NW 13TH ST |
|
| Building Name/Occupant: |
|
OKLAHOMA CITY |
||
| Owner Name 1: | ELDER C B TRS |
Parcel PIN#: |
2719-06-414-4760 |
|
| Owner Name 2: | ELDER C B LIV TRUST | 1/4 section #: |
2719 |
|
| Owner Name 3: | Parent Acct: |
|
||
| Billing Address: | 2727 NW 13TH ST | Tax District: |
|
|
| City, State, Zip | OKLAHOMA CITY, OK 73107-4813 | School System: |
Oklahoma City #89 |
|
|
Country: (If noted) |
Land Size: |
0.2583 Acres |
||
|
Land Value: 48,938 |
|
|||
|
Sect 30-T12N-R3W Qtr SW |
MILLERS BOULEVARD
Block
017
Lot
006
|
|||
| Full Legal Description: MILLERS BOULEVARD 017 006 |
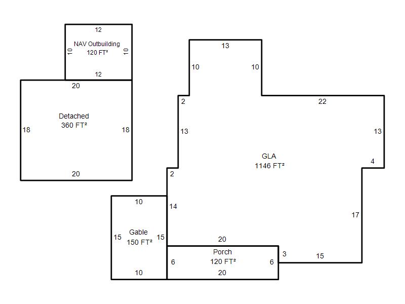
| Photo & Sketch (if available) | Comp Sales (ordered by relevancy) |
|
||||||||||||||||||
|
||||||||||||||||||||
| Value History (*The County Treasurer 405-713-1300 posts & collects actual tax amounts. Contact information HERE) | |||||||||||||
|---|---|---|---|---|---|---|---|---|---|---|---|---|---|
| Year | Market Value | Taxable Mkt Value | Gross Assessed | Exemption | Net Assessed | Millage | Est. Tax | Tax Savings | |||||
|
2026 |
213,000 |
183,201 |
20,151 |
0 |
20,151 |
122.90 |
$2,477 |
$403 |
|||||
|
2025 |
218,500 |
174,478 |
19,191 |
0 |
19,191 |
122.90 |
$2,359 |
$595 |
|||||
|
2024 |
212,500 |
166,170 |
18,278 |
0 |
18,278 |
123.89 |
$2,265 |
$631 |
|||||
|
2023 |
206,500 |
158,258 |
17,407 |
0 |
17,407 |
122.82 |
$2,138 |
$652 |
|||||
|
2022 |
168,000 |
150,722 |
16,578 |
0 |
16,578 |
117.63 |
$1,950 |
$224 |
|||||
| Property Account Status/Adjustments/Exemptions | ||
|---|---|---|
| Account # | Exemption Description | Amount |
|
R064144760 |
5% Capped Account |
0 |
| Property Deed Transaction History (Recorded in the County Clerk's Office) | ||||||||||
|---|---|---|---|---|---|---|---|---|---|---|
| Date | Type | Book | Page | Price | Grantor | Grantee | ||||
|
7/8/2025 |
|
Hmstd Off & |
$0 |
ELDER CHARLES B |
ELDER C B TRS |
|||||
|
3/28/2013 |
|
Deeds |
$117,500 |
PEMBERTON TREVOR S |
ELDER CHARLES B |
|||||
|
5/29/2009 |
|
Deeds |
$200,000 |
STACY KATRINA M |
PEMBERTON TREVOR S |
|||||
|
5/29/2009 |
|
Deeds |
$120,000 |
STACY KATRINA M |
PEMBERTON TREVOR S |
|||||
|
9/6/2006 |
|
Deeds |
$107,500 |
ERNST JAMES A |
STACY KATRINA M |
|||||
| Last Mailed Notice of Value (N.O.V.) Information/History | ||||||||
|---|---|---|---|---|---|---|---|---|
| Year | Date | Market Value | Taxable Market Value | Gross Assessed | Exemption | Net Assessed | ||
|
2026 |
02/23/2026 |
213,000 |
183,201 |
20,151 |
0 |
20,151 |
||
|
2025 |
02/14/2025 |
218,500 |
174,478 |
19,191 |
0 |
19,191 |
||
|
2024 |
02/13/2024 |
212,500 |
166,170 |
18,278 |
0 |
18,278 |
||
|
2023 |
02/14/2023 |
206,500 |
158,258 |
17,407 |
0 |
17,407 |
||
|
2022 |
03/15/2022 |
168,000 |
150,722 |
16,578 |
0 |
16,578 |
||
| Property Building Permit History | ||||||
|---|---|---|---|---|---|---|
| Issued | Permit # | Provided by | Bldg # | Description | Est Construction Cost | Status |
|
8/23/1996 |
10194094 |
OKLAHOMA CITY |
1 |
Add On |
10,000 |
Inactive |
| Click button on building number to access detailed information: | ||||||
|---|---|---|---|---|---|---|
| Bldg # | Vacant/Improved Land | Bldg Description | Year Built | SqFt | # Stories | |
|
1 |
Improved |
Ranch 1 Story |
1930 |
1,146 |
1 Stories |
|