|
|
|
| Larry Stein Oklahoma County Assessor (405) 713-1200 - Public Access System |
|
|
|
|
|
|
| Real Property Display - Screen Produced 4/14/2026 5:40:59 AM | ||||
|---|---|---|---|---|
| Account: R064144850 | Type: Residential | Location: |
2708 NW 13TH ST |
|
| Building Name/Occupant: |
|
OKLAHOMA CITY |
||
| Owner Name 1: | BRANDON SWEARINGEN RENOVATIONS LLC |
Parcel PIN#: |
2719-06-414-4850 |
|
| Owner Name 2: | 1/4 section #: |
2719 |
||
| Owner Name 3: | Parent Acct: |
|
||
| Billing Address: | 3413 S HIWASSEE RD | Tax District: |
|
|
| City, State, Zip | CHOCTAW, OK 73020-6125 | School System: |
Oklahoma City #89 |
|
|
Country: (If noted) |
Land Size: |
0.2583 Acres |
||
|
Land Value: 48,938 |
|
|||
|
Sect 30-T12N-R3W Qtr SW |
MILLERS BOULEVARD
Block
018
Lot
000
|
|||
| Full Legal Description: MILLERS BOULEVARD 018 000 W75FT LOT 1 & W75FT OF N 1/2FT LOT 2 |
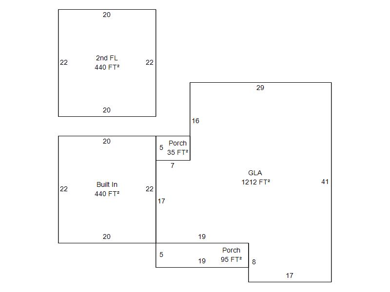
| Photo & Sketch (if available) | Comp Sales (ordered by relevancy) |
|
||||||||||||||||||
|
||||||||||||||||||||
| Value History (*The County Treasurer 405-713-1300 posts & collects actual tax amounts. Contact information HERE) | |||||||||||||
|---|---|---|---|---|---|---|---|---|---|---|---|---|---|
| Year | Market Value | Taxable Mkt Value | Gross Assessed | Exemption | Net Assessed | Millage | Est. Tax | Tax Savings | |||||
|
2026 |
225,000 |
225,000 |
24,750 |
0 |
24,750 |
122.90 |
$3,042 |
$0 |
|||||
|
2025 |
226,500 |
178,374 |
19,620 |
0 |
19,620 |
122.90 |
$2,411 |
$651 |
|||||
|
2024 |
221,000 |
169,880 |
18,686 |
0 |
18,686 |
123.89 |
$2,315 |
$697 |
|||||
|
2023 |
210,000 |
161,791 |
17,796 |
0 |
17,796 |
122.82 |
$2,186 |
$651 |
|||||
|
2022 |
163,000 |
154,087 |
16,948 |
0 |
16,948 |
117.63 |
$1,994 |
$115 |
|||||
| Property Account Status/Adjustments/Exemptions | ||||||
|---|---|---|---|---|---|---|
| Account # | Exemption Description | Amount | ||||
| No adjustment/exemption records returned. | ||||||
| Property Deed Transaction History (Recorded in the County Clerk's Office) | |||||||
|---|---|---|---|---|---|---|---|
| Date | Type | Book | Page | Price | Grantor | Grantee | |
|
9/18/2025 |
|
Deeds |
$190,000 |
HEIDEBRECHT ANNA E |
BRANDON SWEARINGEN RENOVATIONS LLC |
||
|
10/20/2022 |
|
Deeds |
$0 |
ROLLINS JACKIE H |
ROLLINS JACKIE H |
||
|
7/1/1985 |
|
Historical |
$62,900 |
|
ROLLINS JACKIE H |
||
| Last Mailed Notice of Value (N.O.V.) Information/History | ||||||||
|---|---|---|---|---|---|---|---|---|
| Year | Date | Market Value | Taxable Market Value | Gross Assessed | Exemption | Net Assessed | ||
|
2026 |
02/23/2026 |
225,000 |
225,000 |
24,750 |
0 |
24,750 |
||
|
2025 |
02/14/2025 |
226,500 |
178,374 |
19,620 |
0 |
19,620 |
||
|
2024 |
02/13/2024 |
221,000 |
169,880 |
18,686 |
0 |
18,686 |
||
|
2023 |
02/14/2023 |
210,000 |
161,791 |
17,796 |
0 |
17,796 |
||
|
2022 |
03/15/2022 |
163,000 |
154,087 |
16,948 |
0 |
16,948 |
||
| Property Building Permit History | |||||||||||
|---|---|---|---|---|---|---|---|---|---|---|---|
| Issued | Permit # | Provided by | Bldg # | Description | Est Construction Cost | Status | |||||
| No Building Permit records returned. | |||||||||||
| Click button on building number to access detailed information: | ||||||
|---|---|---|---|---|---|---|
| Bldg # | Vacant/Improved Land | Bldg Description | Year Built | SqFt | # Stories | |
|
1 |
Improved |
1½ Story Fin |
1952 |
1,652 |
1.5 Stories |
|