|
|
|
| Larry Stein Oklahoma County Assessor (405) 713-1200 - Public Access System |
|
|
|
|
|
|
| Real Property Display - Screen Produced 4/14/2026 6:16:22 AM | ||||
|---|---|---|---|---|
| Account: R064144900 | Type: Residential | Location: |
2727 NW 12TH ST |
|
| Building Name/Occupant: |
|
OKLAHOMA CITY |
||
| Owner Name 1: | WALLS TRACY & KEVIN |
Parcel PIN#: |
2719-06-414-4900 |
|
| Owner Name 2: | 1/4 section #: |
2719 |
||
| Owner Name 3: | Parent Acct: |
|
||
| Billing Address: | 3324 NW 172ND TER | Tax District: |
|
|
| City, State, Zip | EDMOND, OK 73012 | School System: |
Oklahoma City #89 |
|
|
Country: (If noted) |
Land Size: |
0.2583 Acres |
||
|
Land Value: 48,938 |
|
|||
|
Sect 30-T12N-R3W Qtr SW |
MILLERS BOULEVARD
Block
018
Lot
006
|
|||
| Full Legal Description: MILLERS BOULEVARD 018 006 |
| Photo & Sketch (if available) | Comp Sales (ordered by relevancy) |
|
||||||||||||||||||
|
||||||||||||||||||||
| Value History (*The County Treasurer 405-713-1300 posts & collects actual tax amounts. Contact information HERE) | |||||||||||||
|---|---|---|---|---|---|---|---|---|---|---|---|---|---|
| Year | Market Value | Taxable Mkt Value | Gross Assessed | Exemption | Net Assessed | Millage | Est. Tax | Tax Savings | |||||
|
2026 |
264,500 |
187,317 |
20,604 |
0 |
20,604 |
122.90 |
$2,532 |
$1,043 |
|||||
|
2025 |
271,000 |
178,398 |
19,623 |
0 |
19,623 |
122.90 |
$2,412 |
$1,252 |
|||||
|
2024 |
266,000 |
169,903 |
18,688 |
0 |
18,688 |
123.89 |
$2,315 |
$1,310 |
|||||
|
2023 |
257,000 |
161,813 |
17,798 |
0 |
17,798 |
122.82 |
$2,186 |
$1,286 |
|||||
|
2022 |
205,000 |
154,108 |
16,950 |
0 |
16,950 |
117.63 |
$1,994 |
$659 |
|||||
| Property Account Status/Adjustments/Exemptions | ||
|---|---|---|
| Account # | Exemption Description | Amount |
|
R064144900 |
5% Capped Account |
0 |
| Property Deed Transaction History (Recorded in the County Clerk's Office) | ||||||||||
|---|---|---|---|---|---|---|---|---|---|---|
| Date | Type | Book | Page | Price | Grantor | Grantee | ||||
|
6/22/2015 |
|
Deeds |
$0 |
JENNINGS TINA T JENNINGS ROBERT A |
JENNING TINA T |
|||||
|
6/22/2015 |
|
Deeds |
$110,000 |
JENNING TINA T |
WALLS TRACY & KEVIN |
|||||
|
7/23/2007 |
|
Deeds |
$111,000 |
JACKSON PAUL D |
JENNINGS TINA T JENNINGS ROBERT A |
|||||
|
10/25/2002 |
|
Deeds |
$75,000 |
RAK PROPERTIES |
JACKSON PAUL D |
|||||
|
7/29/2002 |
|
Deeds |
$62,000 |
PRICE JACKIE & LOLLIE K |
RAK PROPERTIES |
|||||
| Last Mailed Notice of Value (N.O.V.) Information/History | ||||||||
|---|---|---|---|---|---|---|---|---|
| Year | Date | Market Value | Taxable Market Value | Gross Assessed | Exemption | Net Assessed | ||
|
2026 |
02/23/2026 |
264,500 |
187,317 |
20,604 |
0 |
20,604 |
||
|
2025 |
02/14/2025 |
271,000 |
178,398 |
19,623 |
0 |
19,623 |
||
|
2024 |
02/13/2024 |
266,000 |
169,903 |
18,688 |
0 |
18,688 |
||
|
2023 |
02/14/2023 |
257,000 |
161,813 |
17,798 |
0 |
17,798 |
||
|
2022 |
03/15/2022 |
205,000 |
154,108 |
16,950 |
0 |
16,950 |
||
| Property Building Permit History | |||||||||||
|---|---|---|---|---|---|---|---|---|---|---|---|
| Issued | Permit # | Provided by | Bldg # | Description | Est Construction Cost | Status | |||||
| No Building Permit records returned. | |||||||||||
| Click button on building number to access detailed information: | ||||||
|---|---|---|---|---|---|---|
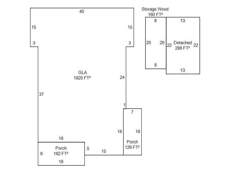
| Bldg # | Vacant/Improved Land | Bldg Description | Year Built | SqFt | # Stories | |
|
1 |
Improved |
Ranch 1 Story |
1935 |
1,920 |
1 Stories |
|