|
|
|
| Larry Stein Oklahoma County Assessor (405) 713-1200 - Public Access System |
|
|
|
|
|
|
| Real Property Display - Screen Produced 4/15/2026 4:26:00 AM | ||||
|---|---|---|---|---|
| Account: R064145220 | Type: Residential | Location: |
2733 W PARK PL |
|
| Building Name/Occupant: |
|
OKLAHOMA CITY |
||
| Owner Name 1: | GRAMAJO JUAN E |
Parcel PIN#: |
2719-06-414-5220 |
|
| Owner Name 2: | 1/4 section #: |
2719 |
||
| Owner Name 3: | Parent Acct: |
|
||
| Billing Address: | 5008 NW 19TH TER | Tax District: |
|
|
| City, State, Zip | OKLAHOMA CITY, OK 73127-2304 | School System: |
Oklahoma City #89 |
|
|
Country: (If noted) |
Land Size: |
0.1722 Acres |
||
|
Land Value: 32,625 |
|
|||
|
Sect 30-T12N-R3W Qtr SW |
MILLERS BOULEVARD
Block
020
Lot
007
|
|||
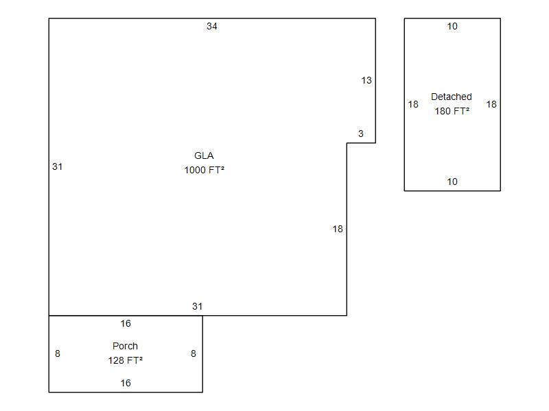
| Full Legal Description: MILLERS BOULEVARD 020 007 W50FT |
| Photo & Sketch (if available) | Comp Sales (ordered by relevancy) |
|
||||||||||||||||||
|
||||||||||||||||||||
| Value History (*The County Treasurer 405-713-1300 posts & collects actual tax amounts. Contact information HERE) | |||||||||||||
|---|---|---|---|---|---|---|---|---|---|---|---|---|---|
| Year | Market Value | Taxable Mkt Value | Gross Assessed | Exemption | Net Assessed | Millage | Est. Tax | Tax Savings | |||||
|
2026 |
142,000 |
107,811 |
11,858 |
0 |
11,858 |
122.90 |
$1,457 |
$462 |
|||||
|
2025 |
138,500 |
102,678 |
11,293 |
0 |
11,293 |
122.90 |
$1,388 |
$484 |
|||||
|
2024 |
134,000 |
97,789 |
10,756 |
0 |
10,756 |
123.89 |
$1,333 |
$493 |
|||||
|
2023 |
132,000 |
93,133 |
10,243 |
0 |
10,243 |
122.82 |
$1,258 |
$525 |
|||||
|
2022 |
102,500 |
88,699 |
9,755 |
0 |
9,755 |
117.63 |
$1,148 |
$179 |
|||||
| Property Account Status/Adjustments/Exemptions | ||
|---|---|---|
| Account # | Exemption Description | Amount |
|
R064145220 |
5% Capped Account |
0 |
| Property Deed Transaction History (Recorded in the County Clerk's Office) | |||||||
|---|---|---|---|---|---|---|---|
| Date | Type | Book | Page | Price | Grantor | Grantee | |
|
4/24/1991 |
|
Historical |
$18,777 |
SECRETARY OF HOUSING |
GRAMAJO JUAN E |
||
|
9/13/1989 |
|
Historical |
$0 |
FAIRBANK DEBBIE E |
SECRETARY OF HOUSING |
||
|
4/21/1987 |
|
Historical |
$32,000 |
DENTON WILLIAM O |
FAIRBANK DEBBIE E |
||
|
12/1/1985 |
|
Historical |
$0 |
|
DENTON WILLIAM O |
||
| Last Mailed Notice of Value (N.O.V.) Information/History | ||||||||
|---|---|---|---|---|---|---|---|---|
| Year | Date | Market Value | Taxable Market Value | Gross Assessed | Exemption | Net Assessed | ||
|
2026 |
02/23/2026 |
142,000 |
107,811 |
11,858 |
0 |
11,858 |
||
|
2025 |
02/14/2025 |
138,500 |
102,678 |
11,293 |
0 |
11,293 |
||
|
2024 |
02/13/2024 |
134,000 |
97,789 |
10,756 |
0 |
10,756 |
||
|
2023 |
02/14/2023 |
132,000 |
93,133 |
10,243 |
0 |
10,243 |
||
|
2022 |
03/15/2022 |
102,500 |
88,699 |
9,755 |
0 |
9,755 |
||
| Property Building Permit History | |||||||||||
|---|---|---|---|---|---|---|---|---|---|---|---|
| Issued | Permit # | Provided by | Bldg # | Description | Est Construction Cost | Status | |||||
| No Building Permit records returned. | |||||||||||
| Click button on building number to access detailed information: | ||||||
|---|---|---|---|---|---|---|
| Bldg # | Vacant/Improved Land | Bldg Description | Year Built | SqFt | # Stories | |
|
1 |
Improved |
Ranch 1 Story |
1938 |
1,000 |
1 Stories |
|