|
|
|
| Larry Stein Oklahoma County Assessor (405) 713-1200 - Public Access System |
|
|
|
|
|
|
| Real Property Display - Screen Produced 4/12/2026 6:18:26 PM | ||||
|---|---|---|---|---|
| Account: R064145940 | Type: Residential | Location: |
2812 NW 12TH ST |
|
| Building Name/Occupant: |
|
OKLAHOMA CITY |
||
| Owner Name 1: | REYES GREGORIO M |
Parcel PIN#: |
2719-06-414-5940 |
|
| Owner Name 2: | 1/4 section #: |
2719 |
||
| Owner Name 3: | Parent Acct: |
|
||
| Billing Address: | 2812 NW 12TH ST | Tax District: |
|
|
| City, State, Zip | OKLAHOMA CITY, OK 73107-5322 | School System: |
Oklahoma City #89 |
|
|
Country: (If noted) |
Land Size: |
0.1607 Acres |
||
|
Land Value: 30,450 |
|
|||
|
Sect 30-T12N-R3W Qtr SW |
MILLERS BOULEVARD
Block
024
Lot
000
|
|||
| Full Legal Description: MILLERS BOULEVARD 024 000 LOTS 7 & 8 |
| Photo & Sketch (if available) | Comp Sales (ordered by relevancy) |
|
||||||||||||||||||
|
||||||||||||||||||||
| Value History (*The County Treasurer 405-713-1300 posts & collects actual tax amounts. Contact information HERE) | |||||||||||||
|---|---|---|---|---|---|---|---|---|---|---|---|---|---|
| Year | Market Value | Taxable Mkt Value | Gross Assessed | Exemption | Net Assessed | Millage | Est. Tax | Tax Savings | |||||
|
2026 |
160,000 |
113,565 |
12,491 |
0 |
12,491 |
122.90 |
$1,535 |
$628 |
|||||
|
2025 |
155,000 |
108,158 |
11,896 |
0 |
11,896 |
122.90 |
$1,462 |
$633 |
|||||
|
2024 |
150,500 |
103,008 |
11,330 |
0 |
11,330 |
123.89 |
$1,404 |
$647 |
|||||
|
2023 |
146,000 |
98,103 |
10,790 |
0 |
10,790 |
122.82 |
$1,325 |
$647 |
|||||
|
2022 |
113,000 |
93,432 |
10,277 |
0 |
10,277 |
117.63 |
$1,209 |
$253 |
|||||
| Property Account Status/Adjustments/Exemptions | ||
|---|---|---|
| Account # | Exemption Description | Amount |
|
R064145940 |
5% Capped Account |
0 |
| Property Deed Transaction History (Recorded in the County Clerk's Office) | ||||||||||
|---|---|---|---|---|---|---|---|---|---|---|
| Date | Type | Book | Page | Price | Grantor | Grantee | ||||
|
2/14/2007 |
|
Deeds |
$0 |
REYES GERGORIO M |
REYES GREGORIO M |
|||||
|
4/23/2004 |
|
Deeds |
$57,000 |
GANNAWAY JEFFERY L |
REYES GERGORIO M |
|||||
|
4/30/1999 |
|
Deeds |
$46,000 |
RAY JEFFREY MARK |
GANNAWAY JEFFERY L |
|||||
|
1/19/1994 |
|
Historical |
$5,000 |
CAMPBELL RAY DELLA LEA |
RAY JEFFREY MARK |
|||||
|
1/25/1993 |
|
Historical |
$0 |
WILLIS PRENTIS RAY |
CAMPBELL RAY DELLA LEA |
|||||
| Last Mailed Notice of Value (N.O.V.) Information/History | ||||||||
|---|---|---|---|---|---|---|---|---|
| Year | Date | Market Value | Taxable Market Value | Gross Assessed | Exemption | Net Assessed | ||
|
2026 |
02/23/2026 |
160,000 |
113,565 |
12,491 |
0 |
12,491 |
||
|
2025 |
02/14/2025 |
155,000 |
108,158 |
11,896 |
0 |
11,896 |
||
|
2024 |
02/13/2024 |
150,500 |
103,008 |
11,330 |
0 |
11,330 |
||
|
2023 |
02/14/2023 |
146,000 |
98,103 |
10,790 |
0 |
10,790 |
||
|
2022 |
03/15/2022 |
113,000 |
93,432 |
10,277 |
0 |
10,277 |
||
| Property Building Permit History | |||||||||||
|---|---|---|---|---|---|---|---|---|---|---|---|
| Issued | Permit # | Provided by | Bldg # | Description | Est Construction Cost | Status | |||||
| No Building Permit records returned. | |||||||||||
| Click button on building number to access detailed information: | ||||||
|---|---|---|---|---|---|---|
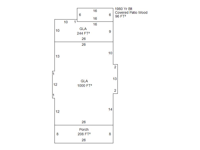
| Bldg # | Vacant/Improved Land | Bldg Description | Year Built | SqFt | # Stories | |
|
1 |
Improved |
Ranch 1 Story |
1922 |
1,244 |
1 Stories |
|