|
|
|
| Larry Stein Oklahoma County Assessor (405) 713-1200 - Public Access System |
|
|
|
|
|
|
| Real Property Display - Screen Produced 4/14/2026 5:50:22 AM | ||||
|---|---|---|---|---|
| Account: R064146080 | Type: Residential | Location: |
2825 NW 11TH ST |
|
| Building Name/Occupant: |
|
OKLAHOMA CITY |
||
| Owner Name 1: | BELLINGAR KYLE |
Parcel PIN#: |
2719-06-414-6080 |
|
| Owner Name 2: | 1/4 section #: |
2719 |
||
| Owner Name 3: | Parent Acct: |
|
||
| Billing Address: | 2825 NW 11TH ST | Tax District: |
|
|
| City, State, Zip | OKLAHOMA CITY, OK 73107-5317 | School System: |
Oklahoma City #89 |
|
|
Country: (If noted) |
Land Size: |
0.1607 Acres |
||
|
Land Value: 30,450 |
|
|||
|
Sect 30-T12N-R3W Qtr SW |
MILLERS BOULEVARD
Block
024
Lot
000
|
|||
| Full Legal Description: MILLERS BOULEVARD 024 000 LOTS 35 & 36 |
| Photo & Sketch (if available) | Comp Sales (ordered by relevancy) |
|
||||||||||||||||||
|
||||||||||||||||||||
| Value History (*The County Treasurer 405-713-1300 posts & collects actual tax amounts. Contact information HERE) | |||||||||||||
|---|---|---|---|---|---|---|---|---|---|---|---|---|---|
| Year | Market Value | Taxable Mkt Value | Gross Assessed | Exemption | Net Assessed | Millage | Est. Tax | Tax Savings | |||||
|
2026 |
195,500 |
164,885 |
18,137 |
1,000 |
17,137 |
122.90 |
$2,106 |
$537 |
|||||
|
2025 |
195,000 |
160,083 |
17,608 |
1,000 |
16,608 |
122.90 |
$2,041 |
$595 |
|||||
|
2024 |
190,000 |
155,421 |
17,095 |
1,000 |
16,095 |
123.89 |
$1,994 |
$595 |
|||||
|
2023 |
183,500 |
150,895 |
16,598 |
1,000 |
15,598 |
122.82 |
$1,916 |
$563 |
|||||
|
2022 |
146,500 |
146,500 |
16,115 |
1,000 |
15,115 |
117.63 |
$1,778 |
$118 |
|||||
| Property Account Status/Adjustments/Exemptions | ||
|---|---|---|
| Account # | Exemption Description | Amount |
|
R064146080 |
3% Cap Homestead |
0 |
|
R064146080 |
Homestead |
1,000 |
| Property Deed Transaction History (Recorded in the County Clerk's Office) | |||||||
|---|---|---|---|---|---|---|---|
| Date | Type | Book | Page | Price | Grantor | Grantee | |
|
8/28/2020 |
|
Deeds |
$181,500 |
GOWIN JOHN C |
BELLINGAR KYLE |
||
|
2/27/2017 |
|
Deeds |
$128,000 |
WALLIS CALLIE D SMITH ERIC |
GOWIN JOHN C |
||
|
3/31/2012 |
|
Deeds |
$0 |
WALLIS CALLIE D |
WALLIS CALLIE D SMITH ERIC |
||
|
9/2/2011 |
|
Deeds |
$90,000 |
BULLER LONNEL P & G K |
WALLIS CALLIE D |
||
|
11/11/1911 |
|
Historical |
$0 |
|
BULLER LONNEL P & G K |
||
| Last Mailed Notice of Value (N.O.V.) Information/History | ||||||||
|---|---|---|---|---|---|---|---|---|
| Year | Date | Market Value | Taxable Market Value | Gross Assessed | Exemption | Net Assessed | ||
|
2026 |
02/23/2026 |
195,500 |
164,885 |
18,137 |
1,000 |
17,137 |
||
|
2025 |
02/14/2025 |
195,000 |
160,083 |
17,608 |
1,000 |
16,608 |
||
|
2024 |
02/13/2024 |
190,000 |
155,421 |
17,095 |
1,000 |
16,095 |
||
|
2023 |
02/14/2023 |
183,500 |
150,895 |
16,598 |
1,000 |
15,598 |
||
|
2021 |
03/19/2021 |
179,500 |
179,500 |
19,745 |
0 |
19,745 |
||
| Property Building Permit History | |||||||||||
|---|---|---|---|---|---|---|---|---|---|---|---|
| Issued | Permit # | Provided by | Bldg # | Description | Est Construction Cost | Status | |||||
| No Building Permit records returned. | |||||||||||
| Click button on building number to access detailed information: | ||||||
|---|---|---|---|---|---|---|
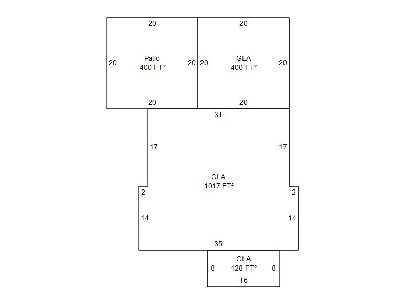
| Bldg # | Vacant/Improved Land | Bldg Description | Year Built | SqFt | # Stories | |
|
1 |
Improved |
Ranch 1 Story |
1924 |
1,545 |
1 Stories |
|