|
|
|
| Larry Stein Oklahoma County Assessor (405) 713-1200 - Public Access System |
|
|
|
|
|
|
| Real Property Display - Screen Produced 4/14/2026 5:21:01 AM | ||||
|---|---|---|---|---|
| Account: R064146170 | Type: Residential | Location: |
2808 NW 13TH ST |
|
| Building Name/Occupant: |
|
OKLAHOMA CITY |
||
| Owner Name 1: | DELEON CLEVI |
Parcel PIN#: |
2719-06-414-6170 |
|
| Owner Name 2: | 1/4 section #: |
2719 |
||
| Owner Name 3: | Parent Acct: |
|
||
| Billing Address: | 2808 NW 13TH ST | Tax District: |
|
|
| City, State, Zip | OKLAHOMA CITY, OK 73107 | School System: |
Oklahoma City #89 |
|
|
Country: (If noted) |
Land Size: |
0.1607 Acres |
||
|
Land Value: 30,450 |
|
|||
|
Sect 30-T12N-R3W Qtr SW |
MILLERS BOULEVARD
Block
025
Lot
000
|
|||
| Full Legal Description: MILLERS BOULEVARD 025 000 LOTS 5 & 6 |
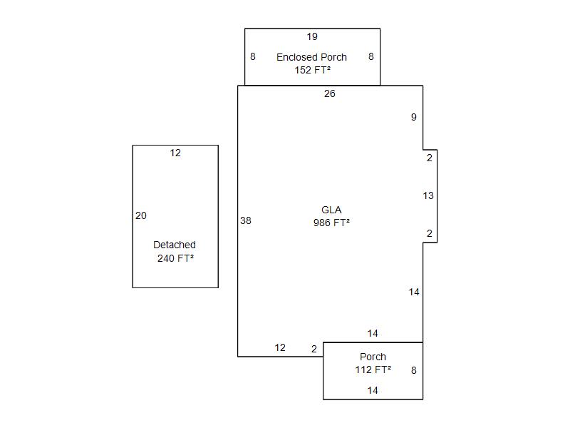
| Photo & Sketch (if available) | Comp Sales (ordered by relevancy) |
|
||||||||||||||||||
|
||||||||||||||||||||
| Value History (*The County Treasurer 405-713-1300 posts & collects actual tax amounts. Contact information HERE) | |||||||||||||
|---|---|---|---|---|---|---|---|---|---|---|---|---|---|
| Year | Market Value | Taxable Mkt Value | Gross Assessed | Exemption | Net Assessed | Millage | Est. Tax | Tax Savings | |||||
|
2026 |
154,500 |
115,976 |
12,756 |
0 |
12,756 |
122.90 |
$1,568 |
$521 |
|||||
|
2025 |
154,500 |
110,454 |
12,149 |
0 |
12,149 |
122.90 |
$1,493 |
$595 |
|||||
|
2024 |
151,500 |
105,195 |
11,571 |
0 |
11,571 |
123.89 |
$1,434 |
$631 |
|||||
|
2023 |
144,000 |
100,186 |
11,019 |
0 |
11,019 |
122.82 |
$1,354 |
$592 |
|||||
|
2022 |
113,000 |
95,416 |
10,495 |
0 |
10,495 |
117.63 |
$1,235 |
$228 |
|||||
| Property Account Status/Adjustments/Exemptions | ||
|---|---|---|
| Account # | Exemption Description | Amount |
|
R064146170 |
5% Capped Account |
0 |
| Property Deed Transaction History (Recorded in the County Clerk's Office) | ||||||||||
|---|---|---|---|---|---|---|---|---|---|---|
| Date | Type | Book | Page | Price | Grantor | Grantee | ||||
|
2/17/2009 |
|
Deeds |
$30,500 |
FEDERAL NATIONAL MTG ASSOCIATION |
DELEON CLEVI |
|||||
|
12/8/2008 |
|
Hmstd Off & |
$0 |
MIDWEST CONTRACTING GROUP INC |
FEDERAL NATIONAL MTG ASSOCIATION |
|||||
|
7/31/2006 |
|
|
$0 |
MILLER CLAUDE E & ELENA |
MIDWEST CONTRACTING GROUP INC |
|||||
|
4/10/2003 |
|
Deeds |
$50,000 |
METTENBRINK TODD M & CATHERINE |
MILLER CLAUDE |
|||||
|
4/10/2003 |
|
Deeds |
$0 |
MILLER CLAUDE |
MILLER CLAUDE & ELENA L |
|||||
| Last Mailed Notice of Value (N.O.V.) Information/History | ||||||||
|---|---|---|---|---|---|---|---|---|
| Year | Date | Market Value | Taxable Market Value | Gross Assessed | Exemption | Net Assessed | ||
|
2026 |
02/23/2026 |
154,500 |
115,976 |
12,756 |
0 |
12,756 |
||
|
2025 |
02/14/2025 |
154,500 |
110,454 |
12,149 |
0 |
12,149 |
||
|
2024 |
02/13/2024 |
151,500 |
105,195 |
11,571 |
0 |
11,571 |
||
|
2023 |
02/14/2023 |
144,000 |
100,186 |
11,019 |
0 |
11,019 |
||
|
2022 |
03/15/2022 |
113,000 |
95,416 |
10,495 |
0 |
10,495 |
||
| Property Building Permit History | |||||||||||
|---|---|---|---|---|---|---|---|---|---|---|---|
| Issued | Permit # | Provided by | Bldg # | Description | Est Construction Cost | Status | |||||
| No Building Permit records returned. | |||||||||||
| Click button on building number to access detailed information: | ||||||
|---|---|---|---|---|---|---|
| Bldg # | Vacant/Improved Land | Bldg Description | Year Built | SqFt | # Stories | |
|
1 |
Improved |
Ranch 1 Story |
1910 |
986 |
1 Stories |
|