|
|
|
| Larry Stein Oklahoma County Assessor (405) 713-1200 - Public Access System |
|
|
|
|
|
|
| Real Property Display - Screen Produced 4/12/2026 8:04:21 PM | ||||
|---|---|---|---|---|
| Account: R064146680 | Type: Residential | Location: |
2836 NW 15TH ST |
|
| Building Name/Occupant: |
|
OKLAHOMA CITY |
||
| Owner Name 1: | SALAZAR MARY LOUISE |
Parcel PIN#: |
2719-06-414-6680 |
|
| Owner Name 2: | SANDERS KRISTI KAY | 1/4 section #: |
2719 |
|
| Owner Name 3: | Parent Acct: |
|
||
| Billing Address: | 2836 NW 15TH ST | Tax District: |
|
|
| City, State, Zip | OKLAHOMA CITY, OK 73107-4713 | School System: |
Oklahoma City #89 |
|
|
Country: (If noted) |
Land Size: |
0.1607 Acres |
||
|
Land Value: 30,450 |
|
|||
|
Sect 30-T12N-R3W Qtr SW |
MILLERS BOULEVARD
Block
027
Lot
000
|
|||
| Full Legal Description: MILLERS BOULEVARD 027 000 LOTS 19 & 20 |
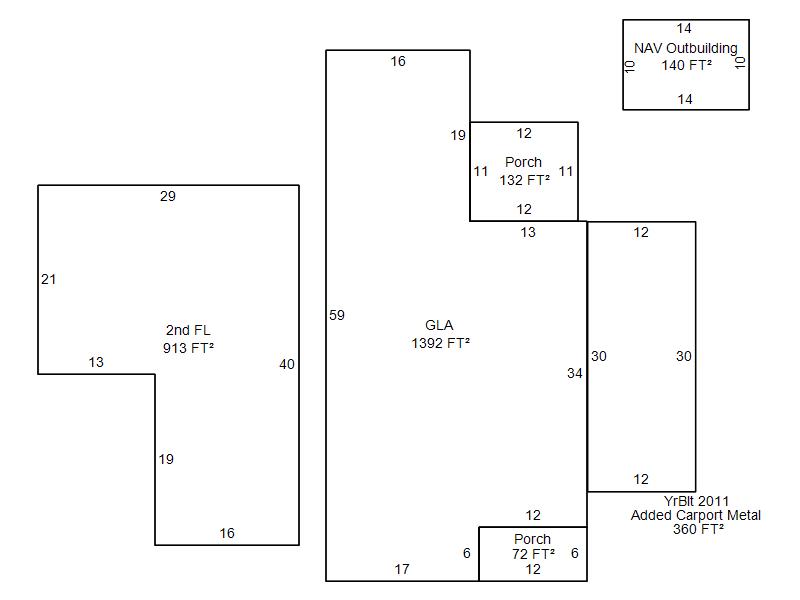
| Photo & Sketch (if available) | Comp Sales (ordered by relevancy) |
|
||||||||||||||||||
|
||||||||||||||||||||
| Value History (*The County Treasurer 405-713-1300 posts & collects actual tax amounts. Contact information HERE) | |||||||||||||
|---|---|---|---|---|---|---|---|---|---|---|---|---|---|
| Year | Market Value | Taxable Mkt Value | Gross Assessed | Exemption | Net Assessed | Millage | Est. Tax | Tax Savings | |||||
|
2026 |
257,500 |
145,754 |
16,031 |
1,000 |
15,031 |
122.90 |
$1,848 |
$1,634 |
|||||
|
2025 |
253,500 |
141,509 |
15,565 |
1,000 |
14,565 |
122.90 |
$1,790 |
$1,637 |
|||||
|
2024 |
248,000 |
137,388 |
15,112 |
1,000 |
14,112 |
123.89 |
$1,748 |
$1,631 |
|||||
|
2023 |
232,000 |
133,387 |
14,672 |
1,000 |
13,672 |
122.82 |
$1,679 |
$1,455 |
|||||
|
2022 |
182,000 |
129,502 |
14,243 |
1,000 |
13,243 |
117.63 |
$1,558 |
$797 |
|||||
| Property Account Status/Adjustments/Exemptions | ||
|---|---|---|
| Account # | Exemption Description | Amount |
|
R064146680 |
3% Cap Homestead |
0 |
|
R064146680 |
Homestead |
1,000 |
| Property Deed Transaction History (Recorded in the County Clerk's Office) | |||||||
|---|---|---|---|---|---|---|---|
| Date | Type | Book | Page | Price | Grantor | Grantee | |
|
7/6/1989 |
|
Historical |
$0 |
CARMICHAEL KRISTI K |
SALAZAR MARY LOUISE |
||
|
3/24/1988 |
|
Historical |
$45,000 |
GMAC MORTGAGE CORPORATION |
CARMICHAEL KRISTI K |
||
|
9/1/1986 |
|
Historical |
$0 |
KEY JOE F & SANDRA G |
GMAC MORTGAGE CORPORATION |
||
|
8/1/1984 |
|
Historical |
$79,500 |
|
KEY JOE F & SANDRA G |
||
| Last Mailed Notice of Value (N.O.V.) Information/History | ||||||||
|---|---|---|---|---|---|---|---|---|
| Year | Date | Market Value | Taxable Market Value | Gross Assessed | Exemption | Net Assessed | ||
|
2026 |
02/23/2026 |
257,500 |
145,754 |
16,031 |
1,000 |
15,031 |
||
|
2025 |
02/14/2025 |
253,500 |
141,509 |
15,565 |
1,000 |
14,565 |
||
|
2024 |
02/13/2024 |
248,000 |
137,388 |
15,112 |
1,000 |
14,112 |
||
|
2023 |
02/14/2023 |
232,000 |
133,387 |
14,672 |
1,000 |
13,672 |
||
|
2022 |
03/15/2022 |
182,000 |
129,502 |
14,243 |
1,000 |
13,243 |
||
| Property Building Permit History | ||||||
|---|---|---|---|---|---|---|
| Issued | Permit # | Provided by | Bldg # | Description | Est Construction Cost | Status |
|
9/13/2010 |
10412612 |
OKLAHOMA CITY |
1 |
Carport |
2,000 |
Inactive |
|
7/16/1993 |
10194133 |
OKLAHOMA CITY |
1 |
Swimming Pool |
7,200 |
Inactive |
| Click button on building number to access detailed information: | ||||||
|---|---|---|---|---|---|---|
| Bldg # | Vacant/Improved Land | Bldg Description | Year Built | SqFt | # Stories | |
|
1 |
Improved |
2 Story |
1927 |
2,305 |
2 Stories |
|