|
|
|
| Larry Stein Oklahoma County Assessor (405) 713-1200 - Public Access System |
|
|
|
|
|
|
| Real Property Display - Screen Produced 4/12/2026 6:21:28 PM | ||||
|---|---|---|---|---|
| Account: R064146770 | Type: Residential | Location: |
2821 NW 14TH ST |
|
| Building Name/Occupant: |
|
OKLAHOMA CITY |
||
| Owner Name 1: | CRUZ JAVIER |
Parcel PIN#: |
2719-06-414-6770 |
|
| Owner Name 2: | 1/4 section #: |
2719 |
||
| Owner Name 3: | Parent Acct: |
|
||
| Billing Address: | 2821 NW 14TH ST | Tax District: |
|
|
| City, State, Zip | OKLAHOMA CITY, OK 73107-4749 | School System: |
Oklahoma City #89 |
|
|
Country: (If noted) |
Land Size: |
0.1607 Acres |
||
|
Land Value: 30,450 |
|
|||
|
Sect 30-T12N-R3W Qtr SW |
MILLERS BOULEVARD
Block
027
Lot
000
|
|||
| Full Legal Description: MILLERS BOULEVARD 027 000 LOTS 37 & 38 |
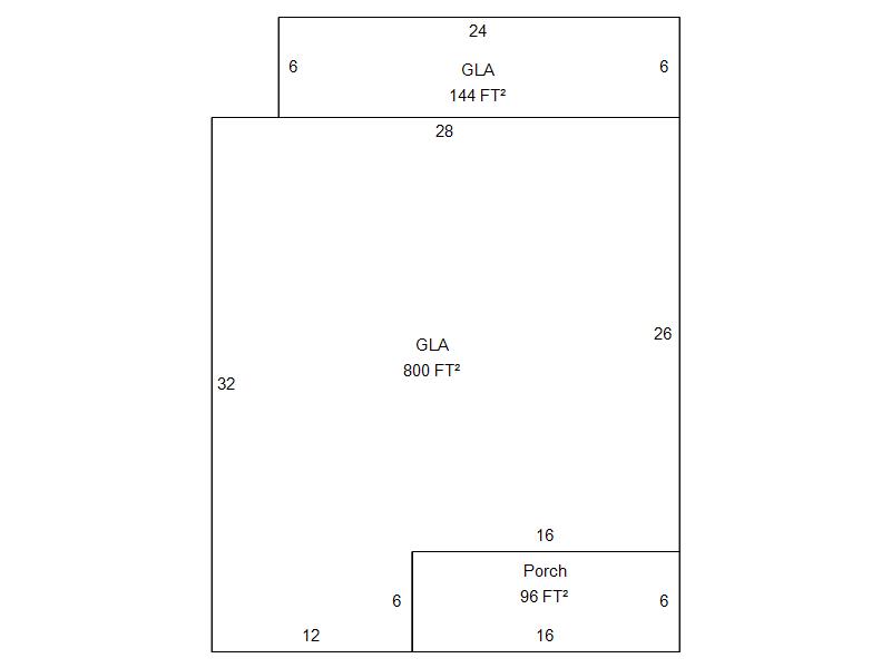
| Photo & Sketch (if available) | Comp Sales (ordered by relevancy) |
|
||||||||||||||||||
|
||||||||||||||||||||
| Value History (*The County Treasurer 405-713-1300 posts & collects actual tax amounts. Contact information HERE) | |||||||||||||
|---|---|---|---|---|---|---|---|---|---|---|---|---|---|
| Year | Market Value | Taxable Mkt Value | Gross Assessed | Exemption | Net Assessed | Millage | Est. Tax | Tax Savings | |||||
|
2026 |
138,500 |
104,895 |
11,538 |
0 |
11,538 |
122.90 |
$1,418 |
$454 |
|||||
|
2025 |
138,500 |
99,900 |
10,988 |
0 |
10,988 |
122.90 |
$1,351 |
$522 |
|||||
|
2024 |
134,000 |
95,143 |
10,465 |
0 |
10,465 |
123.89 |
$1,297 |
$530 |
|||||
|
2023 |
129,000 |
90,613 |
9,966 |
0 |
9,966 |
122.82 |
$1,224 |
$519 |
|||||
|
2022 |
100,500 |
86,299 |
9,492 |
0 |
9,492 |
117.63 |
$1,117 |
$184 |
|||||
| Property Account Status/Adjustments/Exemptions | ||
|---|---|---|
| Account # | Exemption Description | Amount |
|
R064146770 |
5% Capped Account |
0 |
| Property Deed Transaction History (Recorded in the County Clerk's Office) | ||||||||||
|---|---|---|---|---|---|---|---|---|---|---|
| Date | Type | Book | Page | Price | Grantor | Grantee | ||||
|
8/18/2017 |
|
Hmstd Off & |
$0 |
CRUZ JUAN |
CRUZ JAVIER |
|||||
|
6/25/2017 |
|
Deeds |
$65,000 |
POUND MORIS & LORETTA |
CRUZ JUAN |
|||||
|
2/8/2006 |
|
Deeds |
$0 |
POUND MORRIS & LORETTA |
POUND MORIS & LORETTA |
|||||
|
6/7/1993 |
|
Historical |
$17,000 |
SECRETARY OF VETERANS AFFAIRS |
POUND MORRIS & LORETTA |
|||||
|
4/23/1993 |
|
Historical |
$0 |
CHARLES F CURRY COMPANY |
SECRETARY OF VETERANS AFFAIRS |
|||||
| Last Mailed Notice of Value (N.O.V.) Information/History | ||||||||
|---|---|---|---|---|---|---|---|---|
| Year | Date | Market Value | Taxable Market Value | Gross Assessed | Exemption | Net Assessed | ||
|
2026 |
02/23/2026 |
138,500 |
104,895 |
11,538 |
0 |
11,538 |
||
|
2025 |
02/14/2025 |
138,500 |
99,900 |
10,988 |
0 |
10,988 |
||
|
2024 |
02/13/2024 |
134,000 |
95,143 |
10,465 |
0 |
10,465 |
||
|
2023 |
02/14/2023 |
129,000 |
90,613 |
9,966 |
0 |
9,966 |
||
|
2022 |
03/15/2022 |
100,500 |
86,299 |
9,492 |
0 |
9,492 |
||
| Property Building Permit History | |||||||||||
|---|---|---|---|---|---|---|---|---|---|---|---|
| Issued | Permit # | Provided by | Bldg # | Description | Est Construction Cost | Status | |||||
| No Building Permit records returned. | |||||||||||
| Click button on building number to access detailed information: | ||||||
|---|---|---|---|---|---|---|
| Bldg # | Vacant/Improved Land | Bldg Description | Year Built | SqFt | # Stories | |
|
1 |
Improved |
Ranch 1 Story |
1921 |
944 |
1 Stories |
|