|
|
|
| Larry Stein Oklahoma County Assessor (405) 713-1200 - Public Access System |
|
|
|
|
|
|
| Real Property Display - Screen Produced 4/15/2026 4:26:02 AM | ||||
|---|---|---|---|---|
| Account: R064146880 | Type: Residential | Location: |
2824 NW 16TH ST |
|
| Building Name/Occupant: |
|
OKLAHOMA CITY |
||
| Owner Name 1: | CIFUENTES JENNIFER JOAN ECHEVERRIA |
Parcel PIN#: |
2719-06-414-6880 |
|
| Owner Name 2: | 1/4 section #: |
2719 |
||
| Owner Name 3: | Parent Acct: |
|
||
| Billing Address: | 303 W KIMBALL AVE, Unit 16A | Tax District: |
|
|
| City, State, Zip | VISALIA, CA 93277-6539 | School System: |
Oklahoma City #89 |
|
|
Country: (If noted) |
Land Size: |
0.1607 Acres |
||
|
Land Value: 30,450 |
|
|||
|
Sect 30-T12N-R3W Qtr SW |
MILLERS BOULEVARD
Block
028
Lot
000
|
|||
| Full Legal Description: MILLERS BOULEVARD 028 000 LOTS 13 & 14 |
| Photo & Sketch (if available) | Comp Sales (ordered by relevancy) |
|
||||||||||||||||||
|
||||||||||||||||||||
| Value History (*The County Treasurer 405-713-1300 posts & collects actual tax amounts. Contact information HERE) | |||||||||||||
|---|---|---|---|---|---|---|---|---|---|---|---|---|---|
| Year | Market Value | Taxable Mkt Value | Gross Assessed | Exemption | Net Assessed | Millage | Est. Tax | Tax Savings | |||||
|
2026 |
166,000 |
123,823 |
13,619 |
0 |
13,619 |
122.90 |
$1,674 |
$570 |
|||||
|
2025 |
168,000 |
117,927 |
12,971 |
0 |
12,971 |
122.90 |
$1,594 |
$677 |
|||||
|
2024 |
162,500 |
112,312 |
12,354 |
0 |
12,354 |
123.89 |
$1,531 |
$684 |
|||||
|
2023 |
154,500 |
106,964 |
11,765 |
0 |
11,765 |
122.82 |
$1,445 |
$642 |
|||||
|
2022 |
121,500 |
101,871 |
11,205 |
0 |
11,205 |
117.63 |
$1,318 |
$254 |
|||||
| Property Account Status/Adjustments/Exemptions | ||
|---|---|---|
| Account # | Exemption Description | Amount |
|
R064146880 |
5% Capped Account |
0 |
| Property Deed Transaction History (Recorded in the County Clerk's Office) | ||||||||||
|---|---|---|---|---|---|---|---|---|---|---|
| Date | Type | Book | Page | Price | Grantor | Grantee | ||||
|
12/22/2024 |
|
Hmstd Off & |
$0 |
ARREAGA VIOLETA |
CIFUENTES JENNIFER JOAN ECHEVERRIA |
|||||
|
8/22/2017 |
|
Deeds |
$85,000 |
MCGAHAN ENTERPRISES LLC |
ARREAGA VIOLETA |
|||||
|
6/7/2017 |
|
Hmstd Off & |
$0 |
JOURNAL ENTRY OF DEFAULT JUDGMENT |
MCGAHAN ENTERPRISES LLC |
|||||
|
6/13/2016 |
|
Other |
$0 |
ARREAGA ADAN |
MCGAHAN ENTERPRISES LLC |
|||||
|
1/25/1994 |
|
Historical |
$18,500 |
CHRISTIAN IAN |
ARREAGA ADAN |
|||||
| Last Mailed Notice of Value (N.O.V.) Information/History | ||||||||
|---|---|---|---|---|---|---|---|---|
| Year | Date | Market Value | Taxable Market Value | Gross Assessed | Exemption | Net Assessed | ||
|
2026 |
02/23/2026 |
166,000 |
123,823 |
13,619 |
0 |
13,619 |
||
|
2025 |
02/14/2025 |
168,000 |
117,927 |
12,971 |
0 |
12,971 |
||
|
2024 |
02/13/2024 |
162,500 |
112,312 |
12,354 |
0 |
12,354 |
||
|
2023 |
02/14/2023 |
154,500 |
106,964 |
11,765 |
0 |
11,765 |
||
|
2022 |
03/15/2022 |
121,500 |
101,871 |
11,205 |
0 |
11,205 |
||
| Property Building Permit History | |||||||||||
|---|---|---|---|---|---|---|---|---|---|---|---|
| Issued | Permit # | Provided by | Bldg # | Description | Est Construction Cost | Status | |||||
| No Building Permit records returned. | |||||||||||
| Click button on building number to access detailed information: | ||||||
|---|---|---|---|---|---|---|
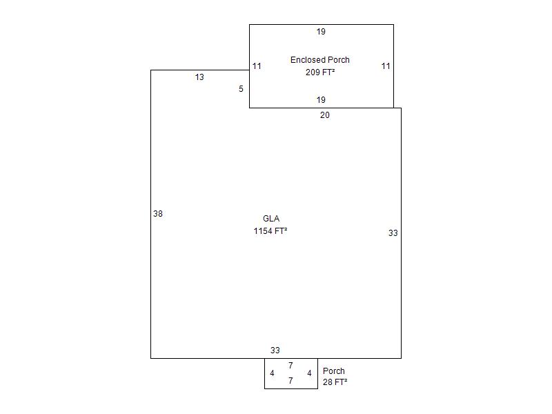
| Bldg # | Vacant/Improved Land | Bldg Description | Year Built | SqFt | # Stories | |
|
1 |
Improved |
Ranch 1 Story |
1925 |
1,154 |
1 Stories |
|