|
|
|
| Larry Stein Oklahoma County Assessor (405) 713-1200 - Public Access System |
|
|
|
|
|
|
| Real Property Display - Screen Produced 4/5/2026 8:43:07 AM | ||||
|---|---|---|---|---|
| Account: R142761485 | Type: Residential | Location: |
3729 NW 59TH TER |
|
| Building Name/Occupant: |
|
OKLAHOMA CITY |
||
| Owner Name 1: | LINDLEY JEFFREY & NATALIE |
Parcel PIN#: |
2841-14-276-1485 |
|
| Owner Name 2: | 1/4 section #: |
2841 |
||
| Owner Name 3: | Parent Acct: |
|
||
| Billing Address: | PO BOX 21431 | Tax District: |
|
|
| City, State, Zip | OKLAHOMA CITY, OK 73156 | School System: |
Putnam City #1 |
|
|
Country: (If noted) |
Land Size: |
0.2507 Acres |
||
|
Land Value: 38,220 |
|
|||
|
Sect 11-T12N-R4W Qtr NE |
CORONADO HEIGHTS ADD
Block
002
Lot
039
|
|||
| Full Legal Description: CORONADO HEIGHTS ADD 002 039 |
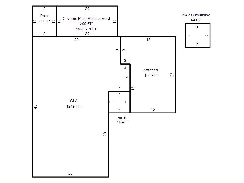
| Photo & Sketch (if available) | Comp Sales (ordered by relevancy) |
|
||||||||||||||||||
|
||||||||||||||||||||
| Value History (*The County Treasurer 405-713-1300 posts & collects actual tax amounts. Contact information HERE) | |||||||||||||
|---|---|---|---|---|---|---|---|---|---|---|---|---|---|
| Year | Market Value | Taxable Mkt Value | Gross Assessed | Exemption | Net Assessed | Millage | Est. Tax | Tax Savings | |||||
|
2026 |
164,500 |
164,500 |
18,095 |
0 |
18,095 |
123.17 |
$2,229 |
$0 |
|||||
|
2025 |
169,500 |
169,500 |
18,645 |
0 |
18,645 |
123.17 |
$2,297 |
$0 |
|||||
|
2024 |
168,000 |
165,900 |
18,249 |
0 |
18,249 |
122.30 |
$2,232 |
$28 |
|||||
|
2023 |
158,000 |
158,000 |
17,380 |
0 |
17,380 |
121.91 |
$2,119 |
$0 |
|||||
|
2022 |
139,000 |
127,338 |
14,007 |
0 |
14,007 |
123.41 |
$1,729 |
$158 |
|||||
| Property Account Status/Adjustments/Exemptions | ||
|---|---|---|
| Account # | Exemption Description | Amount |
|
R142761485 |
5% Capped Account |
0 |
| Property Deed Transaction History (Recorded in the County Clerk's Office) | ||||||||||
|---|---|---|---|---|---|---|---|---|---|---|
| Date | Type | Book | Page | Price | Grantor | Grantee | ||||
|
1/4/2022 |
|
Deeds |
$165,000 |
BECK JEFFREY |
LINDLEY JEFFREY & NATALIE |
|||||
|
12/12/2012 |
|
Deeds |
$105,000 |
LAWSON ALICE F |
BECK JEFFREY |
|||||
|
6/10/2011 |
|
Deeds |
$100,000 |
LAWSON JEFF |
LAWSON ALICE F |
|||||
|
4/8/1994 |
|
Historical |
$45,000 |
LAWSON ALICE F |
LAWSON JEFF |
|||||
|
2/22/1989 |
|
Historical |
$38,000 |
LOCAL FEDERAL SAVINGS |
LAWSON ALICE F |
|||||
| Last Mailed Notice of Value (N.O.V.) Information/History | ||||||||
|---|---|---|---|---|---|---|---|---|
| Year | Date | Market Value | Taxable Market Value | Gross Assessed | Exemption | Net Assessed | ||
|
2025 |
02/14/2025 |
169,500 |
169,500 |
18,645 |
0 |
18,645 |
||
|
2024 |
02/13/2024 |
168,000 |
165,900 |
18,249 |
0 |
18,249 |
||
|
2023 |
02/14/2023 |
158,000 |
158,000 |
17,380 |
0 |
17,380 |
||
|
2022 |
03/15/2022 |
139,000 |
127,338 |
14,007 |
0 |
14,007 |
||
|
2021 |
03/19/2021 |
123,500 |
121,275 |
13,340 |
0 |
13,340 |
||
| Property Building Permit History | |||||||||||
|---|---|---|---|---|---|---|---|---|---|---|---|
| Issued | Permit # | Provided by | Bldg # | Description | Est Construction Cost | Status | |||||
| No Building Permit records returned. | |||||||||||
| Click button on building number to access detailed information: | ||||||
|---|---|---|---|---|---|---|
| Bldg # | Vacant/Improved Land | Bldg Description | Year Built | SqFt | # Stories | |
|
1 |
Improved |
Ranch 1 Story |
1955 |
1,249 |
1 Stories |
|