|
|
|
| Larry Stein Oklahoma County Assessor (405) 713-1200 - Public Access System |
|
|
|
|
|
|
| Real Property Display - Screen Produced 4/9/2026 5:41:50 AM | ||||
|---|---|---|---|---|
| Account: R175351375 | Type: Residential | Location: |
3233 N SHANNON AVE |
|
| Building Name/Occupant: |
|
BETHANY |
||
| Owner Name 1: | GILLEY DEAN & BEVERLY |
Parcel PIN#: |
2873-17-535-1375 |
|
| Owner Name 2: | 1/4 section #: |
2873 |
||
| Owner Name 3: | Parent Acct: |
|
||
| Billing Address: | 3233 N SHANNON AVE | Tax District: |
|
|
| City, State, Zip | BETHANY, OK 73008-4366 | School System: |
Putnam City #1 |
|
|
Country: (If noted) |
Land Size: |
0.1653 Acres |
||
|
Land Value: 29,160 |
|
|||
|
Sect 19-T12N-R4W Qtr NE |
LAKE PARK 2ND
Block
005
Lot
012
|
|||
| Full Legal Description: LAKE PARK 2ND 005 012 |
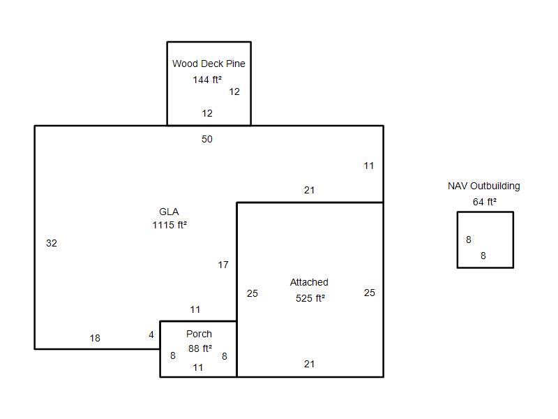
| Photo & Sketch (if available) | Comp Sales (ordered by relevancy) |
|
||||||||||||||||||
|
||||||||||||||||||||
| Value History (*The County Treasurer 405-713-1300 posts & collects actual tax amounts. Contact information HERE) | |||||||||||||
|---|---|---|---|---|---|---|---|---|---|---|---|---|---|
| Year | Market Value | Taxable Mkt Value | Gross Assessed | Exemption | Net Assessed | Millage | Est. Tax | Tax Savings | |||||
|
2026 |
167,500 |
145,399 |
15,993 |
0 |
15,993 |
122.14 |
$1,953 |
$297 |
|||||
|
2025 |
170,500 |
138,476 |
15,232 |
0 |
15,232 |
122.14 |
$1,860 |
$430 |
|||||
|
2024 |
166,000 |
131,882 |
14,506 |
0 |
14,506 |
120.52 |
$1,748 |
$452 |
|||||
|
2023 |
157,500 |
125,602 |
13,815 |
0 |
13,815 |
123.06 |
$1,700 |
$432 |
|||||
|
2022 |
138,000 |
119,621 |
13,157 |
0 |
13,157 |
112.54 |
$1,481 |
$228 |
|||||
| Property Account Status/Adjustments/Exemptions | ||
|---|---|---|
| Account # | Exemption Description | Amount |
|
R175351375 |
5% Capped Account |
0 |
| Property Deed Transaction History (Recorded in the County Clerk's Office) | ||||||||||
|---|---|---|---|---|---|---|---|---|---|---|
| Date | Type | Book | Page | Price | Grantor | Grantee | ||||
|
6/28/2002 |
|
Deeds |
$75,000 |
JACKSON DONNA J TRS JACKSON DONNA J REV TRUST |
GILLEY DEAN & BEVERLY |
|||||
|
1/21/2002 |
|
Deeds |
$0 |
JACKSON DONNA J |
JACKSON DONNA J TRS JACKSON DONNA J REV TRUST |
|||||
|
12/10/2001 |
|
Deeds |
$0 |
JACKSON DONNA J TRS JACKSON DONNA J REV TRUST |
JACKSON DONNA J |
|||||
|
6/20/1997 |
|
Historical |
$0 |
JACKSON DONNA J |
JACKSON DONNA J TRS |
|||||
|
9/10/1992 |
|
Historical |
$57,000 |
BOYD WILLIAM S |
JACKSON DONNA J |
|||||
| Last Mailed Notice of Value (N.O.V.) Information/History | ||||||||
|---|---|---|---|---|---|---|---|---|
| Year | Date | Market Value | Taxable Market Value | Gross Assessed | Exemption | Net Assessed | ||
|
2026 |
02/23/2026 |
167,500 |
145,399 |
15,993 |
0 |
15,993 |
||
|
2025 |
02/14/2025 |
170,500 |
138,476 |
15,232 |
0 |
15,232 |
||
|
2024 |
02/13/2024 |
166,000 |
131,882 |
14,506 |
0 |
14,506 |
||
|
2023 |
02/14/2023 |
157,500 |
125,602 |
13,815 |
0 |
13,815 |
||
|
2022 |
03/15/2022 |
138,000 |
119,621 |
13,157 |
0 |
13,157 |
||
| Property Building Permit History | |||||||||||
|---|---|---|---|---|---|---|---|---|---|---|---|
| Issued | Permit # | Provided by | Bldg # | Description | Est Construction Cost | Status | |||||
| No Building Permit records returned. | |||||||||||
| Click button on building number to access detailed information: | ||||||
|---|---|---|---|---|---|---|
| Bldg # | Vacant/Improved Land | Bldg Description | Year Built | SqFt | # Stories | |
|
1 |
Improved |
Ranch 1 Story |
1969 |
1,115 |
1 Stories |
|