|
|
|
| Larry Stein Oklahoma County Assessor (405) 713-1200 - Public Access System |
|
|
|
|
|
|
| Real Property Display - Screen Produced 4/2/2026 6:28:15 AM | ||||
|---|---|---|---|---|
| Account: R148111440 | Type: Residential | Location: |
621 TIMBER LN |
|
| Building Name/Occupant: |
|
OKLAHOMA CITY |
||
| Owner Name 1: | SCOTT HARRIS PROPERTIES LLC |
Parcel PIN#: |
2925-14-811-1440 |
|
| Owner Name 2: | 1/4 section #: |
2925 |
||
| Owner Name 3: | Parent Acct: |
|
||
| Billing Address: | PO BOX 7132 | Tax District: |
|
|
| City, State, Zip | EDMOND, OK 73083-7132 | School System: |
Western Heights #41 |
|
|
Country: (If noted) |
Land Size: |
0.1570 Acres |
||
|
Land Value: 19,152 |
|
|||
|
Sect 32-T12N-R4W Qtr NE |
WEST OAKS 3RD
Block
008
Lot
006
|
|||
| Full Legal Description: WEST OAKS 3RD 008 006 |
| Photo & Sketch (if available) | Comp Sales (ordered by relevancy) |
|
||||||||||||||||||
|
||||||||||||||||||||
| Value History (*The County Treasurer 405-713-1300 posts & collects actual tax amounts. Contact information HERE) | |||||||||||||
|---|---|---|---|---|---|---|---|---|---|---|---|---|---|
| Year | Market Value | Taxable Mkt Value | Gross Assessed | Exemption | Net Assessed | Millage | Est. Tax | Tax Savings | |||||
|
2026 |
145,000 |
122,414 |
13,465 |
0 |
13,465 |
118.35 |
$1,594 |
$294 |
|||||
|
2025 |
145,500 |
116,585 |
12,823 |
0 |
12,823 |
118.35 |
$1,518 |
$376 |
|||||
|
2024 |
141,000 |
111,034 |
12,213 |
0 |
12,213 |
118.83 |
$1,451 |
$392 |
|||||
|
2023 |
130,500 |
105,747 |
11,631 |
0 |
11,631 |
116.69 |
$1,357 |
$318 |
|||||
|
2022 |
115,000 |
100,712 |
11,077 |
0 |
11,077 |
118.05 |
$1,308 |
$186 |
|||||
| Property Account Status/Adjustments/Exemptions | ||
|---|---|---|
| Account # | Exemption Description | Amount |
|
R148111440 |
5% Capped Account |
0 |
| Property Deed Transaction History (Recorded in the County Clerk's Office) | |||||||
|---|---|---|---|---|---|---|---|
| Date | Type | Book | Page | Price | Grantor | Grantee | |
|
2/19/2016 |
|
Hmstd Off & |
$0 |
THOMPSON CLIFTON N & REBECCA |
THOMPSON CLIFTON N |
||
|
2/19/2016 |
|
Mult Parcel |
$346,000 |
THOMPSON CLIFTON NEIL |
SCOTT HARRIS PROPERTIES LLC |
||
|
11/14/2013 |
|
Deeds |
$70,000 |
THOMPSON CLIFTON & HELEN C REV LIVING TRUST |
THOMPSON CLIFTON N & REBECCA |
||
|
6/4/2008 |
|
Deeds |
$0 |
THOMPSON CLIFTON R & H CAROL |
THOMPSON CLIFTON & HELEN C REV LIVING TRUST |
||
|
11/1/1981 |
|
Historical |
$0 |
|
THOMPSON CLIFTON R & H CAROL |
||
| Last Mailed Notice of Value (N.O.V.) Information/History | ||||||||
|---|---|---|---|---|---|---|---|---|
| Year | Date | Market Value | Taxable Market Value | Gross Assessed | Exemption | Net Assessed | ||
|
2026 |
02/23/2026 |
145,000 |
122,414 |
13,465 |
0 |
13,465 |
||
|
2025 |
02/14/2025 |
145,500 |
116,585 |
12,823 |
0 |
12,823 |
||
|
2024 |
02/13/2024 |
141,000 |
111,034 |
12,213 |
0 |
12,213 |
||
|
2023 |
02/14/2023 |
130,500 |
105,747 |
11,631 |
0 |
11,631 |
||
|
2022 |
03/15/2022 |
115,000 |
100,712 |
11,077 |
0 |
11,077 |
||
| Property Building Permit History | |||||||||||
|---|---|---|---|---|---|---|---|---|---|---|---|
| Issued | Permit # | Provided by | Bldg # | Description | Est Construction Cost | Status | |||||
| No Building Permit records returned. | |||||||||||
| Click button on building number to access detailed information: | ||||||
|---|---|---|---|---|---|---|
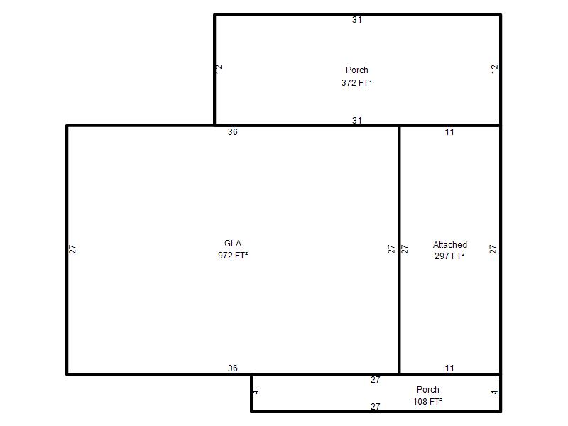
| Bldg # | Vacant/Improved Land | Bldg Description | Year Built | SqFt | # Stories | |
|
1 |
Improved |
Ranch 1 Story |
1966 |
972 |
1 Stories |
|