|
|
|
| Larry Stein Oklahoma County Assessor (405) 713-1200 - Public Access System |
|
|
|
|
|
|
| Real Property Display - Screen Produced 4/3/2026 5:59:03 AM | ||||
|---|---|---|---|---|
| Account: R141221200 | Type: Residential | Location: |
10025 E WILSHIRE BLVD |
|
| Building Name/Occupant: |
|
OKLAHOMA CITY |
||
| Owner Name 1: | RUSSELL AMBER J |
Parcel PIN#: |
3323-14-122-1200 |
|
| Owner Name 2: | RUSSELL BERDENIA M | 1/4 section #: |
3323 |
|
| Owner Name 3: | SHAW CHRISTOPHER | Parent Acct: |
|
|
| Billing Address: | 2801 JUSTIN PL | Tax District: |
|
|
| City, State, Zip | SPENCER, OK 73084-3515 | School System: |
Oklahoma City #89 |
|
|
Country: (If noted) |
Land Size: |
4.4270 Acres |
||
|
Land Value: 15,499 |
|
|||
|
Sect 31-T13N-R1W Qtr SW |
HILLWOOD FARMS ADD
Block
000
Lot
000
|
|||
| Full Legal Description: HILLWOOD FARMS ADD 000 000 BLKS 36 & 37 |
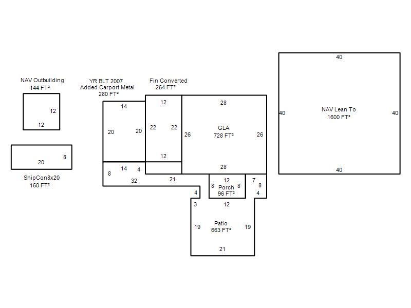
| Photo & Sketch (if available) | Comp Sales (ordered by relevancy) |
|
||||||||||||||||||
|
||||||||||||||||||||
| Value History (*The County Treasurer 405-713-1300 posts & collects actual tax amounts. Contact information HERE) | |||||||||||||
|---|---|---|---|---|---|---|---|---|---|---|---|---|---|
| Year | Market Value | Taxable Mkt Value | Gross Assessed | Exemption | Net Assessed | Millage | Est. Tax | Tax Savings | |||||
|
2026 |
84,500 |
19,126 |
2,103 |
1,000 |
1,103 |
122.90 |
$136 |
$1,007 |
|||||
|
2025 |
82,500 |
18,569 |
2,042 |
1,000 |
1,042 |
122.90 |
$128 |
$987 |
|||||
|
2024 |
75,500 |
18,029 |
1,982 |
1,000 |
982 |
123.89 |
$122 |
$907 |
|||||
|
2023 |
70,000 |
17,504 |
1,925 |
1,000 |
925 |
122.82 |
$114 |
$832 |
|||||
|
2022 |
53,500 |
16,995 |
1,869 |
1,000 |
869 |
117.63 |
$102 |
$590 |
|||||
| Property Account Status/Adjustments/Exemptions | ||
|---|---|---|
| Account # | Exemption Description | Amount |
|
R141221200 |
Homestead |
1,000 |
|
R141221200 |
3% Cap Homestead |
0 |
| Property Deed Transaction History (Recorded in the County Clerk's Office) | |||||||
|---|---|---|---|---|---|---|---|
| Date | Type | Book | Page | Price | Grantor | Grantee | |
|
4/30/2024 |
|
Deeds |
$0 |
RUSSELL BERDENIA M |
RUSSELL AMBER J |
||
|
12/30/2009 |
|
Deeds |
$0 |
RUSSELL BERDENIA M |
SHAW CHRISTOPHER |
||
|
12/9/1994 |
|
Historical |
$0 |
SHAW CURTIS M & MARZELLIA |
RUSSELL BERDENIA M |
||
|
11/11/1911 |
|
Historical |
$0 |
|
SHAW CURTIS M & MARZELLIA |
||
| Last Mailed Notice of Value (N.O.V.) Information/History | ||||||||
|---|---|---|---|---|---|---|---|---|
| Year | Date | Market Value | Taxable Market Value | Gross Assessed | Exemption | Net Assessed | ||
|
2026 |
02/06/2026 |
84,500 |
19,126 |
2,103 |
1,000 |
1,103 |
||
|
2025 |
01/31/2025 |
82,500 |
18,569 |
2,042 |
1,000 |
1,042 |
||
|
2024 |
01/22/2024 |
75,500 |
18,029 |
1,982 |
1,000 |
982 |
||
|
2023 |
01/23/2023 |
70,000 |
17,504 |
1,925 |
1,000 |
925 |
||
|
2022 |
02/22/2022 |
53,500 |
16,995 |
1,868 |
1,000 |
868 |
||
| Property Building Permit History | ||||||
|---|---|---|---|---|---|---|
| Issued | Permit # | Provided by | Bldg # | Description | Est Construction Cost | Status |
|
7/1/2021 |
|
|
1 |
Carport |
|
Inactive |
|
7/7/2006 |
10325051 |
JONES |
1 |
Main Dwellin |
0 |
Inactive |
|
9/29/1992 |
10234175 |
OKLAHOMA CITY |
1 |
Demolish |
0 |
Inactive |
| Click button on building number to access detailed information: | ||||||
|---|---|---|---|---|---|---|
| Bldg # | Vacant/Improved Land | Bldg Description | Year Built | SqFt | # Stories | |
|
1 |
Improved |
Ranch 1 Story |
1950 |
728 |
1 Stories |
|