|
|
|
| Larry Stein Oklahoma County Assessor (405) 713-1200 - Public Access System |
|
|
|
|
|
|
| Real Property Display - Screen Produced 4/13/2026 3:55:28 AM | ||||
|---|---|---|---|---|
| Account: R188353010 | Type: Residential | Location: |
2324 RED ELM CT |
|
| Building Name/Occupant: |
|
OKLAHOMA CITY |
||
| Owner Name 1: | HOLMES ROBIN |
Parcel PIN#: |
3652-18-835-3010 |
|
| Owner Name 2: | 1/4 section #: |
3652 |
||
| Owner Name 3: | Parent Acct: |
|
||
| Billing Address: | 2324 RED ELM CT | Tax District: |
|
|
| City, State, Zip | EDMOND, OK 73013-5672 | School System: |
Edmond #12 |
|
|
Country: (If noted) |
Land Size: |
0.1771 Acres |
||
|
Land Value: 35,103 |
|
|||
|
Sect 13-T13N-R3W Qtr NW |
NORTHWOOD
Block
003
Lot
002
|
|||
| Full Legal Description: NORTHWOOD 003 002 |
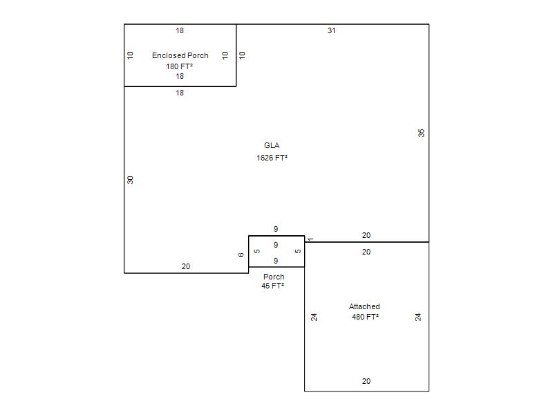
| Photo & Sketch (if available) | Comp Sales (ordered by relevancy) |
|
||||||||||||||||||
|
||||||||||||||||||||
| Value History (*The County Treasurer 405-713-1300 posts & collects actual tax amounts. Contact information HERE) | |||||||||||||
|---|---|---|---|---|---|---|---|---|---|---|---|---|---|
| Year | Market Value | Taxable Mkt Value | Gross Assessed | Exemption | Net Assessed | Millage | Est. Tax | Tax Savings | |||||
|
2026 |
230,000 |
181,145 |
19,925 |
1,000 |
18,925 |
120.32 |
$2,277 |
$767 |
|||||
|
2025 |
223,500 |
175,869 |
19,345 |
1,000 |
18,345 |
120.32 |
$2,207 |
$751 |
|||||
|
2024 |
217,000 |
170,747 |
18,782 |
1,000 |
17,782 |
119.96 |
$2,133 |
$730 |
|||||
|
2023 |
209,000 |
165,774 |
18,235 |
1,000 |
17,235 |
119.02 |
$2,051 |
$685 |
|||||
|
2022 |
188,000 |
160,946 |
17,702 |
1,000 |
16,702 |
120.10 |
$2,006 |
$478 |
|||||
| Property Account Status/Adjustments/Exemptions | ||
|---|---|---|
| Account # | Exemption Description | Amount |
|
R188353010 |
3% Cap Homestead |
0 |
|
R188353010 |
Homestead |
1,000 |
| Property Deed Transaction History (Recorded in the County Clerk's Office) | |||||||
|---|---|---|---|---|---|---|---|
| Date | Type | Book | Page | Price | Grantor | Grantee | |
|
12/28/2016 |
|
Deeds |
$139,000 |
SHIRAZI G A DBA SHIRAZI & ASSOCIATES INC |
HOLMES ROBIN |
||
|
5/28/1993 |
|
Historical |
$73,500 |
HYDE GORDON L & BARBARA L |
SHIRAZI G A |
||
|
3/1/1986 |
|
Historical |
$68,000 |
|
HYDE GORDON L & BARBARA L |
||
| Last Mailed Notice of Value (N.O.V.) Information/History | ||||||||
|---|---|---|---|---|---|---|---|---|
| Year | Date | Market Value | Taxable Market Value | Gross Assessed | Exemption | Net Assessed | ||
|
2026 |
02/23/2026 |
230,000 |
181,145 |
19,925 |
1,000 |
18,925 |
||
|
2025 |
02/14/2025 |
223,500 |
175,869 |
19,345 |
1,000 |
18,345 |
||
|
2024 |
02/13/2024 |
217,000 |
170,747 |
18,782 |
1,000 |
17,782 |
||
|
2023 |
02/14/2023 |
209,000 |
165,774 |
18,235 |
1,000 |
17,235 |
||
|
2022 |
03/15/2022 |
188,000 |
160,946 |
17,702 |
1,000 |
16,702 |
||
| Property Building Permit History | |||||||||||
|---|---|---|---|---|---|---|---|---|---|---|---|
| Issued | Permit # | Provided by | Bldg # | Description | Est Construction Cost | Status | |||||
| No Building Permit records returned. | |||||||||||
| Click button on building number to access detailed information: | ||||||
|---|---|---|---|---|---|---|
| Bldg # | Vacant/Improved Land | Bldg Description | Year Built | SqFt | # Stories | |
|
1 |
Improved |
Ranch 1 Story |
1980 |
1,626 |
1 Stories |
|