|
|
|
| Larry Stein Oklahoma County Assessor (405) 713-1200 - Public Access System |
|
|
|
|
|
|
| Real Property Display - Screen Produced 4/4/2026 12:53:26 AM | ||||
|---|---|---|---|---|
| Account: R109801615 | Type: Residential | Location: |
2521 NW 117TH ST |
|
| Building Name/Occupant: |
|
OKLAHOMA CITY |
||
| Owner Name 1: | VAEZ MALIHEH |
Parcel PIN#: |
3676-10-980-1615 |
|
| Owner Name 2: | 1/4 section #: |
3676 |
||
| Owner Name 3: | Parent Acct: |
|
||
| Billing Address: | 2521 NW 117TH ST | Tax District: |
|
|
| City, State, Zip | OKLAHOMA CITY, OK 73120-6905 | School System: |
Oklahoma City #89 |
|
|
Country: (If noted) |
Land Size: |
0.2179 Acres |
||
|
Land Value: 35,588 |
|
|||
|
Sect 19-T13N-R3W Qtr NW |
BEL AIR SECTION STONEGATE
Block
026
Lot
006
|
|||
| Full Legal Description: BEL AIR SECTION STONEGATE 026 006 |
| Photo & Sketch (if available) | Comp Sales (ordered by relevancy) |
|
||||||||||||||||||
|
||||||||||||||||||||
| Value History (*The County Treasurer 405-713-1300 posts & collects actual tax amounts. Contact information HERE) | |||||||||||||
|---|---|---|---|---|---|---|---|---|---|---|---|---|---|
| Year | Market Value | Taxable Mkt Value | Gross Assessed | Exemption | Net Assessed | Millage | Est. Tax | Tax Savings | |||||
|
2026 |
229,500 |
171,345 |
18,847 |
1,000 |
17,847 |
122.90 |
$2,194 |
$909 |
|||||
|
2025 |
224,000 |
166,355 |
18,298 |
1,000 |
17,298 |
122.90 |
$2,126 |
$902 |
|||||
|
2024 |
218,500 |
161,510 |
17,765 |
1,000 |
16,765 |
123.89 |
$2,077 |
$901 |
|||||
|
2023 |
209,500 |
156,806 |
17,248 |
1,000 |
16,248 |
122.82 |
$1,996 |
$835 |
|||||
|
2022 |
176,500 |
152,239 |
16,745 |
1,000 |
15,745 |
117.63 |
$1,852 |
$432 |
|||||
| Property Account Status/Adjustments/Exemptions | ||
|---|---|---|
| Account # | Exemption Description | Amount |
|
R109801615 |
Homestead |
1,000 |
|
R109801615 |
3% Cap Homestead |
0 |
| Property Deed Transaction History (Recorded in the County Clerk's Office) | |||||||
|---|---|---|---|---|---|---|---|
| Date | Type | Book | Page | Price | Grantor | Grantee | |
|
12/18/2009 |
|
Deeds |
$125,000 |
ELDER JANICE L |
VAEZ MALIHEH |
||
|
10/25/2002 |
|
Deeds |
$105,000 |
WALLER JOHNNY W & CHRISTINE D |
ELDER JANICE L |
||
|
4/1/1992 |
|
Historical |
$0 |
WALLER JOHNNY W & CHRISTINE D |
WALLER JOHNNY W & CHRISTINE D |
||
|
12/1/1988 |
|
Historical |
$60,000 |
STEELMAN GERALD M & BARBARA J |
WALLER JOHNNY W & CHRISTINE D |
||
|
8/1/1979 |
|
Historical |
$0 |
|
STEELMAN GERALD M & BARBARA J |
||
| Last Mailed Notice of Value (N.O.V.) Information/History | ||||||||
|---|---|---|---|---|---|---|---|---|
| Year | Date | Market Value | Taxable Market Value | Gross Assessed | Exemption | Net Assessed | ||
|
2026 |
02/23/2026 |
229,500 |
171,345 |
18,847 |
1,000 |
17,847 |
||
|
2025 |
02/14/2025 |
224,000 |
166,355 |
18,298 |
1,000 |
17,298 |
||
|
2024 |
02/13/2024 |
218,500 |
161,510 |
17,765 |
1,000 |
16,765 |
||
|
2023 |
02/14/2023 |
209,500 |
156,806 |
17,248 |
1,000 |
16,248 |
||
|
2022 |
03/15/2022 |
176,500 |
152,239 |
16,745 |
1,000 |
15,745 |
||
| Property Building Permit History | |||||||||||
|---|---|---|---|---|---|---|---|---|---|---|---|
| Issued | Permit # | Provided by | Bldg # | Description | Est Construction Cost | Status | |||||
| No Building Permit records returned. | |||||||||||
| Click button on building number to access detailed information: | ||||||
|---|---|---|---|---|---|---|
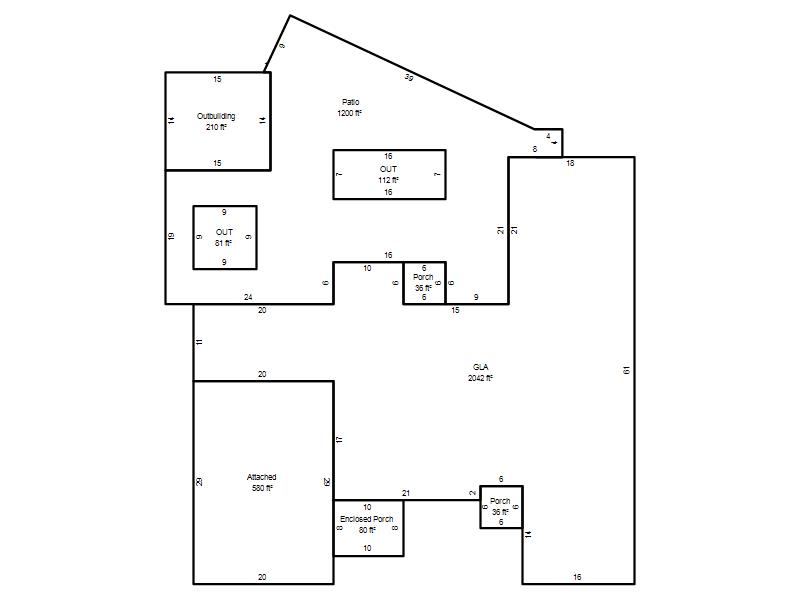
| Bldg # | Vacant/Improved Land | Bldg Description | Year Built | SqFt | # Stories | |
|
1 |
Improved |
Ranch 1 Story |
1965 |
2,042 |
1 Stories |
|