|
|
|
| Larry Stein Oklahoma County Assessor (405) 713-1200 - Public Access System |
|
|
|
|
|
|
| Real Property Display - Screen Produced 4/4/2026 5:41:26 PM | ||||
|---|---|---|---|---|
| Account: R130562100 | Type: Residential | Location: |
1031 NW 99TH ST |
|
| Building Name/Occupant: |
|
OKLAHOMA CITY |
||
| Owner Name 1: | COMPLETE HOME RENTALS LLC |
Parcel PIN#: |
3711-13-056-2100 |
|
| Owner Name 2: | 1/4 section #: |
3711 |
||
| Owner Name 3: | Parent Acct: |
|
||
| Billing Address: | 8801 N WESTERN AVE | Tax District: |
|
|
| City, State, Zip | OKLAHOMA CITY, OK 73114-2408 | School System: |
Oklahoma City #89 |
|
|
Country: (If noted) |
Land Size: |
0.1607 Acres |
||
|
Land Value: 11,900 |
|
|||
|
Sect 28-T13N-R3W Qtr SW |
CENTRAL VIEW HEIGHTS
Block
002
Lot
000
|
|||
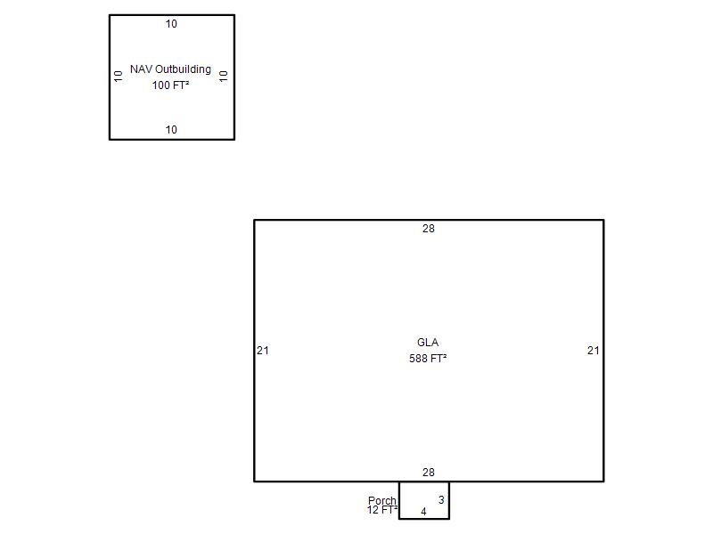
| Full Legal Description: CENTRAL VIEW HEIGHTS 002 000 LOTS 36 & 37 |
| Photo & Sketch (if available) | Comp Sales (ordered by relevancy) |
|
||||||||||||||||||
|
||||||||||||||||||||
| Value History (*The County Treasurer 405-713-1300 posts & collects actual tax amounts. Contact information HERE) | |||||||||||||
|---|---|---|---|---|---|---|---|---|---|---|---|---|---|
| Year | Market Value | Taxable Mkt Value | Gross Assessed | Exemption | Net Assessed | Millage | Est. Tax | Tax Savings | |||||
|
2026 |
57,500 |
41,540 |
4,568 |
0 |
4,568 |
122.90 |
$562 |
$216 |
|||||
|
2025 |
55,500 |
39,562 |
4,351 |
0 |
4,351 |
122.90 |
$535 |
$215 |
|||||
|
2024 |
50,000 |
37,679 |
4,144 |
0 |
4,144 |
123.89 |
$513 |
$168 |
|||||
|
2023 |
49,500 |
35,885 |
3,946 |
0 |
3,946 |
122.82 |
$485 |
$184 |
|||||
|
2022 |
39,500 |
34,177 |
3,759 |
0 |
3,759 |
117.63 |
$442 |
$69 |
|||||
| Property Account Status/Adjustments/Exemptions | ||
|---|---|---|
| Account # | Exemption Description | Amount |
|
R130562100 |
5% Capped Account |
0 |
| Property Deed Transaction History (Recorded in the County Clerk's Office) | ||||||||||
|---|---|---|---|---|---|---|---|---|---|---|
| Date | Type | Book | Page | Price | Grantor | Grantee | ||||
|
9/20/2011 |
|
Deeds |
$0 |
JOURNAL ENTRY OF JUDGMENT QUIETING TITLE |
COMPLETE HOME RENTALS LLC |
|||||
|
6/15/2011 |
|
Other |
$0 |
DOSTALIK ROBERT JOSEF |
COMPLETE HOME RENTALS LLC |
|||||
|
4/30/1990 |
|
Historical |
$0 |
DOSTALIK ROBERT J |
DOSTALIK ROBERT JOSEF |
|||||
|
11/22/1989 |
|
Historical |
$7,700 |
SECRETARY OF HOUSING |
DOSTALIK ROBERT J |
|||||
|
7/14/1989 |
|
Historical |
$0 |
FEDERAL NATIONAL |
SECRETARY OF HOUSING |
|||||
| Last Mailed Notice of Value (N.O.V.) Information/History | ||||||||
|---|---|---|---|---|---|---|---|---|
| Year | Date | Market Value | Taxable Market Value | Gross Assessed | Exemption | Net Assessed | ||
|
2026 |
02/23/2026 |
57,500 |
41,540 |
4,568 |
0 |
4,568 |
||
|
2025 |
02/14/2025 |
55,500 |
39,562 |
4,351 |
0 |
4,351 |
||
|
2024 |
02/13/2024 |
50,000 |
37,679 |
4,144 |
0 |
4,144 |
||
|
2023 |
02/14/2023 |
49,500 |
35,885 |
3,946 |
0 |
3,946 |
||
|
2022 |
03/15/2022 |
39,500 |
34,177 |
3,759 |
0 |
3,759 |
||
| Property Building Permit History | |||||||||||
|---|---|---|---|---|---|---|---|---|---|---|---|
| Issued | Permit # | Provided by | Bldg # | Description | Est Construction Cost | Status | |||||
| No Building Permit records returned. | |||||||||||
| Click button on building number to access detailed information: | ||||||
|---|---|---|---|---|---|---|
| Bldg # | Vacant/Improved Land | Bldg Description | Year Built | SqFt | # Stories | |
|
1 |
Improved |
Ranch 1 Story |
1949 |
588 |
1 Stories |
|