|
|
|
| Larry Stein Oklahoma County Assessor (405) 713-1200 - Public Access System |
|
|
|
|
|
|
| Real Property Display - Screen Produced 4/4/2026 5:42:43 PM | ||||
|---|---|---|---|---|
| Account: R130562700 | Type: Residential | Location: |
1005 NW 99TH ST |
|
| Building Name/Occupant: |
|
OKLAHOMA CITY |
||
| Owner Name 1: | LHK LEGACY 2 LLC |
Parcel PIN#: |
3711-13-056-2700 |
|
| Owner Name 2: | 1/4 section #: |
3711 |
||
| Owner Name 3: | Parent Acct: |
|
||
| Billing Address: | 6011 N ROBINSON AVE | Tax District: |
|
|
| City, State, Zip | OKLAHOMA CITY, OK 73118-7425 | School System: |
Oklahoma City #89 |
|
|
Country: (If noted) |
Land Size: |
0.1607 Acres |
||
|
Land Value: 11,900 |
|
|||
|
Sect 28-T13N-R3W Qtr SW |
CENTRAL VIEW HEIGHTS
Block
002
Lot
000
|
|||
| Full Legal Description: CENTRAL VIEW HEIGHTS 002 000 LOTS 48 & 49 |
| Photo & Sketch (if available) | Comp Sales (ordered by relevancy) |
|
||||||||||||||||||
|
||||||||||||||||||||
| Value History (*The County Treasurer 405-713-1300 posts & collects actual tax amounts. Contact information HERE) | |||||||||||||
|---|---|---|---|---|---|---|---|---|---|---|---|---|---|
| Year | Market Value | Taxable Mkt Value | Gross Assessed | Exemption | Net Assessed | Millage | Est. Tax | Tax Savings | |||||
|
2026 |
76,500 |
66,244 |
7,285 |
0 |
7,285 |
122.90 |
$896 |
$139 |
|||||
|
2025 |
74,000 |
63,090 |
6,939 |
0 |
6,939 |
122.90 |
$853 |
$147 |
|||||
|
2024 |
66,500 |
60,086 |
6,608 |
0 |
6,608 |
123.89 |
$819 |
$87 |
|||||
|
2023 |
65,500 |
57,225 |
6,294 |
0 |
6,294 |
122.82 |
$773 |
$112 |
|||||
|
2022 |
54,500 |
54,500 |
5,995 |
0 |
5,995 |
117.63 |
$705 |
$0 |
|||||
| Property Account Status/Adjustments/Exemptions | ||
|---|---|---|
| Account # | Exemption Description | Amount |
|
R130562700 |
5% Capped Account |
0 |
| Property Deed Transaction History (Recorded in the County Clerk's Office) | ||||||||||
|---|---|---|---|---|---|---|---|---|---|---|
| Date | Type | Book | Page | Price | Grantor | Grantee | ||||
|
7/29/2024 |
|
Hmstd Off & |
$0 |
LEGACY INVESTMENT HOLDINGS LLC |
LHK LEGACY 2 LLC |
|||||
|
7/14/2021 |
|
Deeds |
$55,500 |
PEREZ COBB INVESTMENTS LLC |
LEGACY INVESTMENT HOLDINGS LLC |
|||||
|
4/22/2021 |
|
Deeds |
$52,000 |
7TH STREET PARK PROPERTIES LLC |
PEREZ COBB INVESTMENTS LLC |
|||||
|
3/22/2021 |
|
Deeds |
$33,500 |
MEW THOMAS J |
7TH STREET PARK PROPERTIES LLC |
|||||
|
4/12/2010 |
|
Deeds |
$48,000 |
MARSON JIMMY D MARSON THERSIA |
MEW THOMAS J |
|||||
| Last Mailed Notice of Value (N.O.V.) Information/History | ||||||||
|---|---|---|---|---|---|---|---|---|
| Year | Date | Market Value | Taxable Market Value | Gross Assessed | Exemption | Net Assessed | ||
|
2026 |
02/23/2026 |
76,500 |
66,244 |
7,285 |
0 |
7,285 |
||
|
2025 |
02/14/2025 |
74,000 |
63,090 |
6,939 |
0 |
6,939 |
||
|
2024 |
02/13/2024 |
66,500 |
60,086 |
6,608 |
0 |
6,608 |
||
|
2023 |
02/14/2023 |
65,500 |
57,225 |
6,294 |
0 |
6,294 |
||
|
2022 |
03/15/2022 |
54,500 |
54,500 |
5,995 |
0 |
5,995 |
||
| Property Building Permit History | |||||||||||
|---|---|---|---|---|---|---|---|---|---|---|---|
| Issued | Permit # | Provided by | Bldg # | Description | Est Construction Cost | Status | |||||
| No Building Permit records returned. | |||||||||||
| Click button on building number to access detailed information: | ||||||
|---|---|---|---|---|---|---|
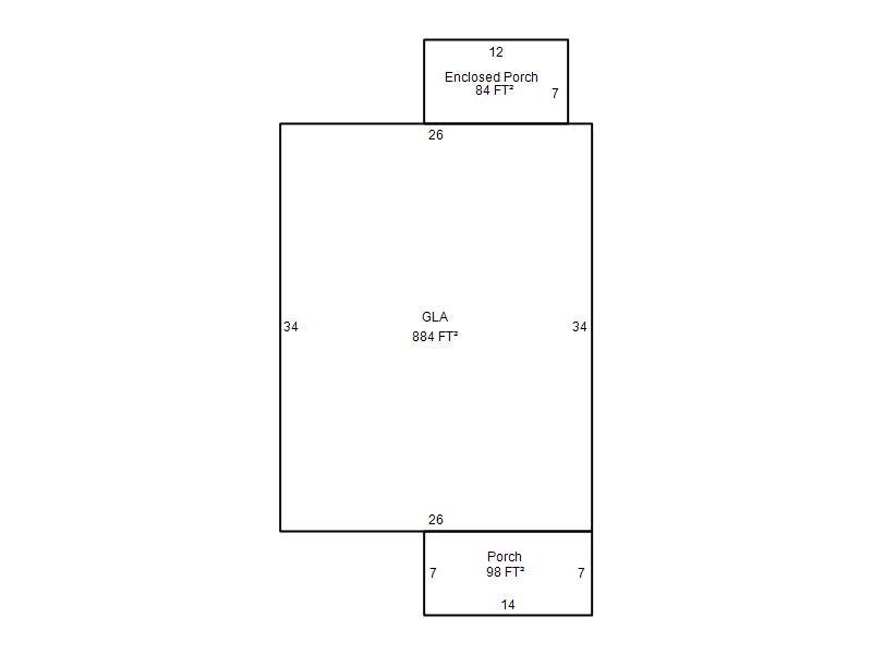
| Bldg # | Vacant/Improved Land | Bldg Description | Year Built | SqFt | # Stories | |
|
1 |
Improved |
Ranch 1 Story |
1948 |
884 |
1 Stories |
|