|
|
|
| Larry Stein Oklahoma County Assessor (405) 713-1200 - Public Access System |
|
|
|
|
|
|
| Real Property Display - Screen Produced 4/4/2026 11:27:20 AM | ||||
|---|---|---|---|---|
| Account: R130644440 | Type: Residential | Location: |
1226 NW 97TH ST |
|
| Building Name/Occupant: |
|
OKLAHOMA CITY |
||
| Owner Name 1: | ANGUIANO ROBERTO JR |
Parcel PIN#: |
3714-13-064-4440 |
|
| Owner Name 2: | 1/4 section #: |
3714 |
||
| Owner Name 3: | Parent Acct: |
|
||
| Billing Address: | 1226 NW 97TH ST | Tax District: |
|
|
| City, State, Zip | OKLAHOMA CITY, OK 73114-4804 | School System: |
Oklahoma City #89 |
|
|
Country: (If noted) |
Land Size: |
0.1894 Acres |
||
|
Land Value: 21,450 |
|
|||
|
Sect 29-T13N-R3W Qtr SE |
ALTAVUE ADDITION
Block
012
Lot
000
|
|||
| Full Legal Description: ALTAVUE ADDITION 012 000 E45FT OF LOTS 13 THRU 18 PLUS 10FT OF VACATED ALLEY ADJ ON E SIDE |
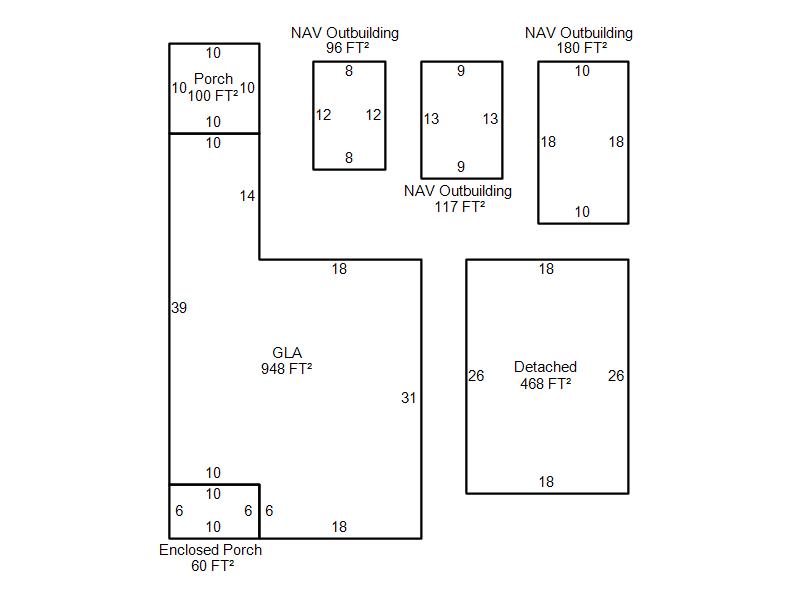
| Photo & Sketch (if available) | Comp Sales (ordered by relevancy) |
|
||||||||||||||||||
|
||||||||||||||||||||
| Value History (*The County Treasurer 405-713-1300 posts & collects actual tax amounts. Contact information HERE) | |||||||||||||
|---|---|---|---|---|---|---|---|---|---|---|---|---|---|
| Year | Market Value | Taxable Mkt Value | Gross Assessed | Exemption | Net Assessed | Millage | Est. Tax | Tax Savings | |||||
|
2026 |
141,500 |
93,104 |
10,241 |
1,000 |
9,241 |
122.90 |
$1,136 |
$777 |
|||||
|
2025 |
143,500 |
90,393 |
9,942 |
1,000 |
8,942 |
122.90 |
$1,099 |
$841 |
|||||
|
2024 |
139,000 |
87,761 |
9,653 |
1,000 |
8,653 |
123.89 |
$1,072 |
$822 |
|||||
|
2023 |
132,500 |
85,205 |
9,371 |
1,000 |
8,371 |
122.82 |
$1,028 |
$762 |
|||||
|
2022 |
104,000 |
82,724 |
9,099 |
1,000 |
8,099 |
117.63 |
$953 |
$393 |
|||||
| Property Account Status/Adjustments/Exemptions | ||
|---|---|---|
| Account # | Exemption Description | Amount |
|
R130644440 |
Homestead |
1,000 |
|
R130644440 |
3% Cap Homestead |
0 |
| Property Deed Transaction History (Recorded in the County Clerk's Office) | ||||||||||
|---|---|---|---|---|---|---|---|---|---|---|
| Date | Type | Book | Page | Price | Grantor | Grantee | ||||
|
2/24/2012 |
|
Hmstd Off & |
$0 |
ANGUIANO ROBERTO |
ANGUIANO ROBERTO JR |
|||||
|
6/15/2007 |
|
Deeds |
$34,500 |
ELDRIDGE DONALD W |
ANGUIANO ROBERTO |
|||||
|
9/10/2002 |
|
Deeds |
$0 |
TEXHOMA LAND & TITLE CO |
ELDRIDGE DONALD W |
|||||
|
12/28/1995 |
|
Historical |
$0 |
CORSAIR CATTLE COMPANY |
TEXHOMA LAND & TITLE CO |
|||||
|
10/20/1989 |
|
Historical |
$1,200 |
SECRETARY OF HOUSING |
CORSAIR CATTLE COMPANY |
|||||
| Last Mailed Notice of Value (N.O.V.) Information/History | ||||||||
|---|---|---|---|---|---|---|---|---|
| Year | Date | Market Value | Taxable Market Value | Gross Assessed | Exemption | Net Assessed | ||
|
2026 |
02/23/2026 |
141,500 |
93,104 |
10,241 |
1,000 |
9,241 |
||
|
2025 |
02/14/2025 |
143,500 |
90,393 |
9,942 |
1,000 |
8,942 |
||
|
2024 |
02/13/2024 |
139,000 |
87,761 |
9,653 |
1,000 |
8,653 |
||
|
2023 |
02/14/2023 |
132,500 |
85,205 |
9,371 |
1,000 |
8,371 |
||
|
2022 |
03/15/2022 |
104,000 |
82,724 |
9,099 |
1,000 |
8,099 |
||
| Property Building Permit History | ||||||
|---|---|---|---|---|---|---|
| Issued | Permit # | Provided by | Bldg # | Description | Est Construction Cost | Status |
|
4/1/2009 |
10379048 |
OKLAHOMA CITY |
1 |
Fire Remodel |
25,000 |
Inactive |
|
2/7/2009 |
10371903 |
OKLAHOMA CITY |
1 |
Burn - Trip |
23,008 |
Inactive |
|
1/14/2004 |
10286898 |
OKLAHOMA CITY |
1 |
Garage |
4,000 |
Inactive |
| Click button on building number to access detailed information: | ||||||
|---|---|---|---|---|---|---|
| Bldg # | Vacant/Improved Land | Bldg Description | Year Built | SqFt | # Stories | |
|
1 |
Improved |
Ranch 1 Story |
1947 |
948 |
1 Stories |
|